👉文末点击设计按钮,get同款设计!
👉底部点击获取更多干货和实景案例,装修不迷路!
212㎡现代简约风
设计师贴合屋主生活习惯
调整结构布局
沿着黑白的经典搭配
将空间铺陈开来
赋予“家”更有意涵的表达
一起欣赏这套212㎡现代简约风平层
设计亮点
原始户型图
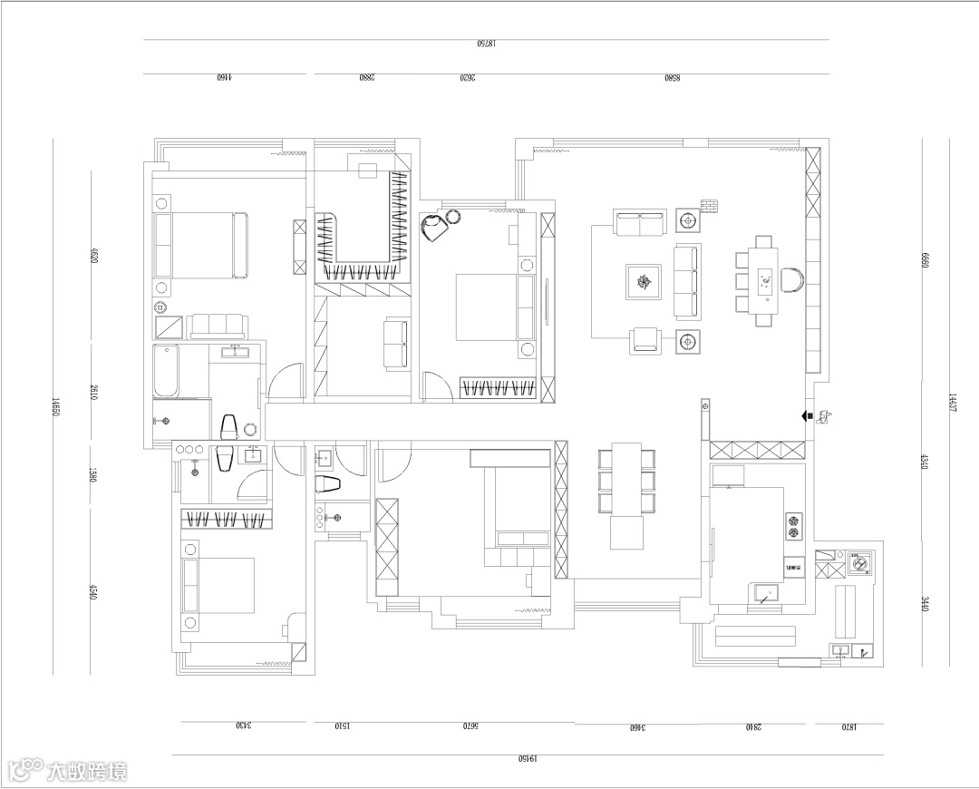
平面设计图
☑️拆除掉入门处隔墙,拉大客厅尺度,打造开放式休闲区;
☑️女孩房舍弃套卫,加大空间进深,预留出柜位做收纳;
☑️小房间拆除隔断分作两区,一区并入主卧做衣帽间便捷日常,一区做休闲室丰富私区功能。
01.
/ 玄关/
玄关尽头墙面延伸
整体化为L型布局
隔绝内外保有空间私密性
暗色栅格做底
射灯浮于其上
枝条摆件穿插其中
成为入门后家的第一方端景
侧边玄关柜无多余装饰
拉手也被一并省去
贴合业主对于简约时尚的热爱
中部留空的黑色背板与灰色柜面
交错出钢琴键般的优雅
02.
/ 客厅/
客厅以大为题
融入黑白经典搭配
在横梁的界定下自成两区
待客区与休闲区并立
承载着屋主一家的生活
阳台并入,竖百叶帘铺满
光影随动,感受日升月落
一道弯弧化解原有梁柱结构
让这一隅呈现出
曲直相融的丰富美感
底部黑色地台与黑色电视机相呼应
切换留白与意趣
丰富着空间的互动性
意式沙发与波普休闲椅
随性围合出会客区
地面以双色线条地毯修饰
用质感柔化硬色
智性浪漫浑然天成
休闲区的定制柜与墙面贴合
桌椅中植入透明亚克力材质
随之增添了悬浮感
台面的熊熊摆件与柜体摆件相得益彰
串联起空间脉络
独特的金属材质幻化出科技感
03.
/ 餐厅/
餐桌尽头延伸出岛台
拓展台面之余
提供多一重的收纳
餐边柜与飘窗边墙平齐
构成对应的块体关系
再与餐桌一道组成洄游动线
六椅双重式样
演绎黑白搭配的经典对话
04.
/ 厨房 /
厨房延续客餐厅的空间气质
以灰黑橱柜组合
搭建起黄金U型布局
优化屋主的烹饪场景
吊柜下方的置物格
墙面的轨道插座、水槽的配件
于细节处充满生活巧思
赋予空间以人居的设计品质
05.
/ 主卧/
卧室在黑白灰色彩互动间
呈现优雅且恢宏的气质
柔软皮床成就视觉中心
温润敦厚的填充造型
让居住者睡梦间被安然包裹
背景墙以L形为尺度进行加厚
同时沿边界嵌入灯带
搭配十分精致的落地灯
以光为媒书写现代艺术
斑马纹毛毯包裹双人位沙发
借由深浅有序的色彩变换
建立起艺术与生活的关联
06.
/ 卫生间/
卫生间沿墙面
安放洗漱区、泡澡区等功能区
围塑出U型布局
提供轻奢的卫浴体验
让屋主在舒适的环境中放松身心
07.
/ 男孩房/
男孩房在黑白灰的氛围中
用一抹蓝色点亮空间
同时将孩子的审美趋向融入之中
米奇状床靠增添空间趣味
与粉蓝的床帐围合出
独属孩子的小天地
借用飘窗延伸出学习区
灰蓝柜体浮于素墙之上
与床头墙色系构成呼应
和谐之美,悄然而生
开放格和玻柜的应用
赋予有序变换
丰富着空间的微观尺度
08.
/ 女孩房/
女孩房以粉为底
打造一处活色生香的梦幻空间
块状床靠带来蓬松柔软的视感
波浪帘幔结合纱帘皱褶
创造出流线型的美感
拆除隔断,由窄变宽
留出足够的空间进深
开辟收纳区和学习区
白粉相间让柜体更加精致通透
小窗用百叶帘结合装饰物
清淡与浓烈并行
光与影的交织
创造空间的艺术美和生活的情趣
辅以简单的单品
在经典配色和时间的流动中
衬托出空间的质感
——
• END •
编辑:轩儿
责编:老蔡
排版:轩儿
拍摄:三
后期:牧之
✦
👇推荐阅读👇
✦



