从混沌老房到极简云端
这套160㎡的空间重生记
拆除冗余结构、没有复杂堆砌
纯净的黑白配色让空间显贵10倍
让整个家如同会呼吸的云朵
在留白与质感中重获新生
设计亮点
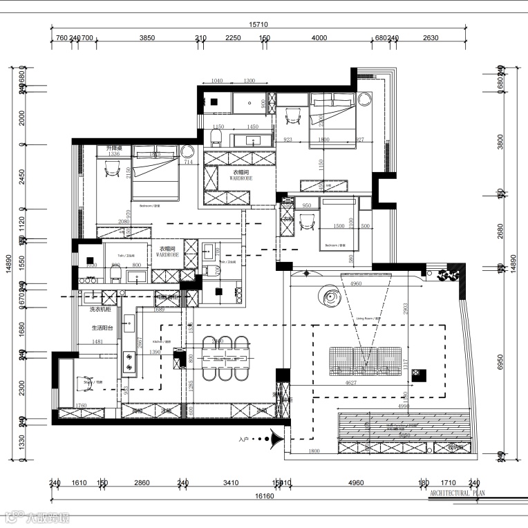
原始户型图
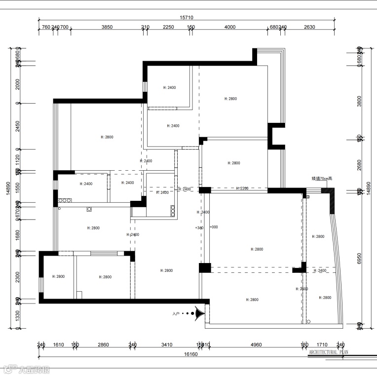
平面设计图
1️⃣ 阳台隔断→全景落地窗,引光入室;
2️⃣ 悬浮地台柜,收纳展示两不误;
3️⃣ 厨房小阳台移位隐形,操作区大升级。
XUANYI
PART. 客厅
ONE
砸墙改窗扩容
Xuanyi home decorationrealcase
客厅变形记:砸掉一堵墙,换来满屋阳光。
改造前:局促的阳台隔断让客厅昏暗压抑,功能分区混乱。
改造后亮点:
✨ 拆除阳台隔断→全景落地窗,采光面积扩大200%。
✨ 悬浮地台柜+隐藏收纳,玩具杂物"隐形"却触手可及。
✨ 对称式沙发围合出双会客区,观影/休闲模式自由切换。
设计师魔法:
▫️ 纯白基底+黑色线性灯,勾勒出美术馆般的光影层次。
▫️ 嵌入式电视墙与延伸地柜,成就教科书级极简收纳。
▫️ 木质暖调地台,中和黑白带来的冷感。
白天是阳光画室,夜晚成家庭影院——这个横厅现在会变魔术。
PART. 餐厨
TWO
移位合二为一
Xuanyi home decorationrealcase
改造前痛点: 厨房操作台面不足,空间有限,大家电无法安放。
改造后亮点:
🔥 阳台移位术:将碍事小阳台隐形化,打造4.2米超长L型操作台。
🔥 黑白交响曲:黑色岩板餐桌×白色橱柜,碰撞出高级料理剧场感。
🔥 收纳魔术:全墙橱柜+双嵌入式冰箱,杂物藏得漂亮。
设计师小心机:
▫️ 鲜切枝桠点缀餐桌,极简空间按下"生机键"。
▫️ 隐形门设计让过道化身"消失的密室"。
从憋屈的过道厨房,到能同时容纳三人共舞的料理空间——这个餐厨会成长。
PART. 主卧
THREE
云端悬浮套房
Xuanyi home decorationrealcase
改造前痛点:让空间显笨重压抑、储物空间不足。
改造后亮点:
🌙 悬浮魔法:离地床体+嵌入式灯带,打造会"呼吸"的睡眠空间。
🌙 光影游戏:黑色线性梳妆台衔接全景窗,捕捉每一缕晨光。
🌙 隐形收纳:极简白推拉门后藏着一个3㎡的步入式衣帽间。
设计师的温柔笔触:
▫️ 木地板中和科技感,光脚踩踏的温度刚刚好。
▫️ 纱帘过滤后的阳光,为黑白空间披上柔光滤镜。
▫️ 所有收纳系统"隐身",连卫生间门都成了墙面艺术。
早上被阳光叫醒,夜晚在灯带星河入眠——这个卧室装着对理想生活的全部想象。
PART. 儿童房
FOUR
成长型治愈空间
Xuanyi home decorationrealcase
▫️ 飘窗变形记:书桌巧妙融合,自然光成为最好的阅读灯。
▫️ 公主堡的秘密:定制柜收纳力堪比衣帽间,从小培养收纳美学。
PART. 次卧
FIVE
高级感留白艺术
Xuanyi home decorationrealcase
改造前:空间局促,划分不合理,动线缺陷很大。
改造后:
▪️ 黑白协奏曲:纯白基底+黑色线性把手,演绎成人式极简。
▪️ 垂直收纳术:通顶衣柜实现"看起来空无一物"的整洁。
▪️ 光影彩蛋:内置感应灯带,夜间取物不扰梦。
• END •

