多孩家庭
最重要的就是收纳空间
在本期116㎡的三居美家中
玄关、客厅、餐厅、卧室
定制收纳柜应有尽有
但如何做到实用但又不显紧凑
不妨一起探访下
设计亮点
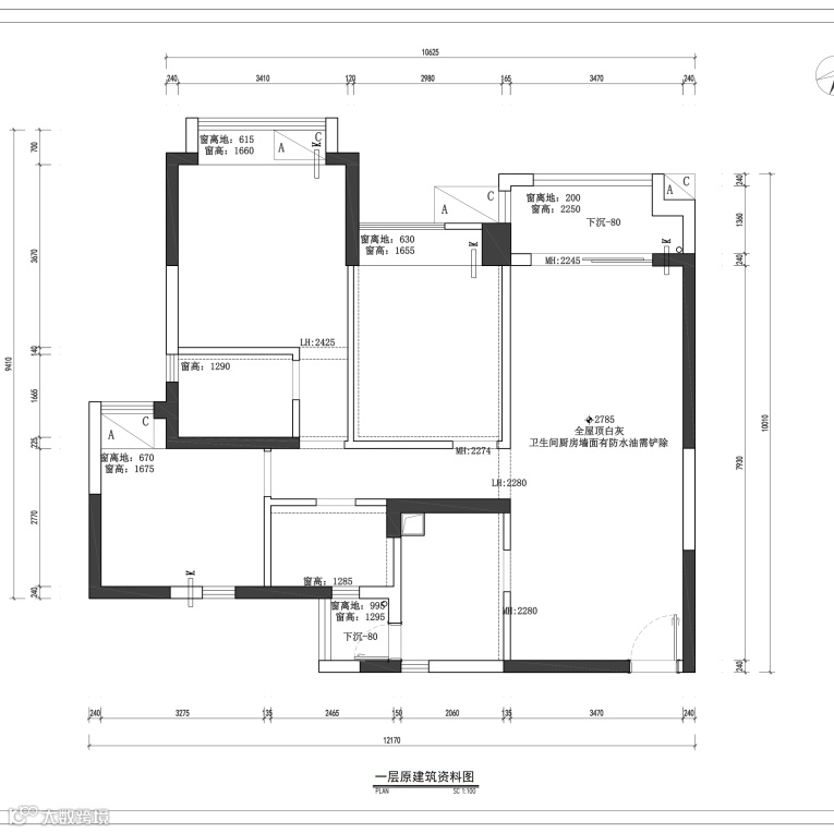
原始结构图
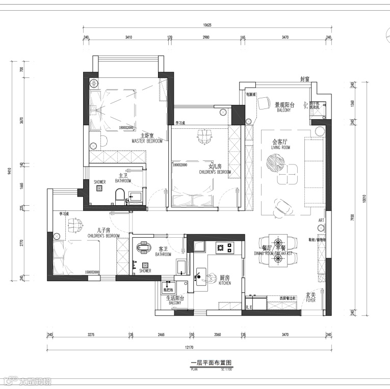
平面布置图
空间原生结构宜居,设计师仅将客厅外探,并入阳台,延展空间。场域功能铺排上,细细琢磨,依托动线做出舒适安排。
XUANYI
PART. 玄关
ONE
淡雅 功能 有序
Xuanyi home decorationrealcase
打开门步入空间,映入眼帘的便是玄关柜。深浅两度色泽排序,引人入胜,将心由外界牵入家。功用细节完善,收纳十足,成就都市生活便利。
PART. 客厅
TWO
收纳 简约 自然
Xuanyi home decorationrealcase
望向客厅,灯带成为第一重迎接,器物成为第二重再会。虽是整墙收纳柜,但并不觉得局促和死板,反而因定制柜的设计美学,让整个空间松弛有度,简约高明。
L型沙发呈现出半包围的自如,既有聚势,又有缓驰。氛围灯光效重叠,映衬绿植,如画景色,不言自明。
舍弃电视,墙面满柜,收纳力自然可观。多重柜体式样,将块体轻盈化,透过材质变迁,也能一瞥设计魅力。
并入后的阳台对客厅做功能性延展,一半工作,一半生活,暗喻两相平衡。
PART. 餐厅
THREE
开阔 简洁 有序
Xuanyi home decorationrealcase
餐厅简约开阔,陈设皆以功用为导向,成就三餐四季便利。餐边柜贴墙而设,纳入冰箱,将散落物件整理妥帖。
PART. 厨房
FOUR
动态 实用 舒适
Xuanyi home decorationrealcase
L型布局将洗切炒盛安放妥当,梳理出舒适烹饪场景。肤感橱柜与墙砖相映,更添质感。小物件的上墙,将生活归于有序。
PART. 主卧
FIVE
诗意 温和 好睡
Xuanyi home decorationrealcase
卧室氛围始终处于一种紧密的流动。中性色为家带来天然做旧感,为居住者保留出一种时光的颗粒度。
台灯与抱枕的花型精巧,带动整体风格向新而去。
通顶衣柜做布局分割,依照收纳需求渐次铺排。拉手上的克制也将造型简化,令优雅游离于生活之内。
PART. 女孩房
SIX
清新 光亮 空间
Xuanyi home decorationrealcase
沿窗沿墙,布局铺排,女孩房浑然天成。衣柜与飘窗结合,将收纳区与学习区相组,提高空间利用率。
PART. 男孩房
SEVEN
双区 兼具 适用
Xuanyi home decorationrealcase
男孩房剔除不必要的装饰,气质沉稳。睡床贴墙放置,为小空间学习区打造留出富余。休憩、收纳、学习,无一不适。
互动有礼
文末点赞、在看、转发互动三连
一起来聊聊你最喜欢哪种风格设计
我们将随机抽取两位友友
为其送上【雪山香薰摆件】
上期获奖用户
Elsa_琦
获奖用户请于7月20日12:00前
私聊公众号后台领取奖品
• END •
编辑:小怡
责编:老蔡
拍摄后期:天佑


