在有限空间打造无限可能
这是装修改造的独有魅力
在本期案例改造中
改造前空间局促、收纳不足
落地后温馨治愈、空间扩容
设计师用什么微调法?
看下文一览全知
设计亮点
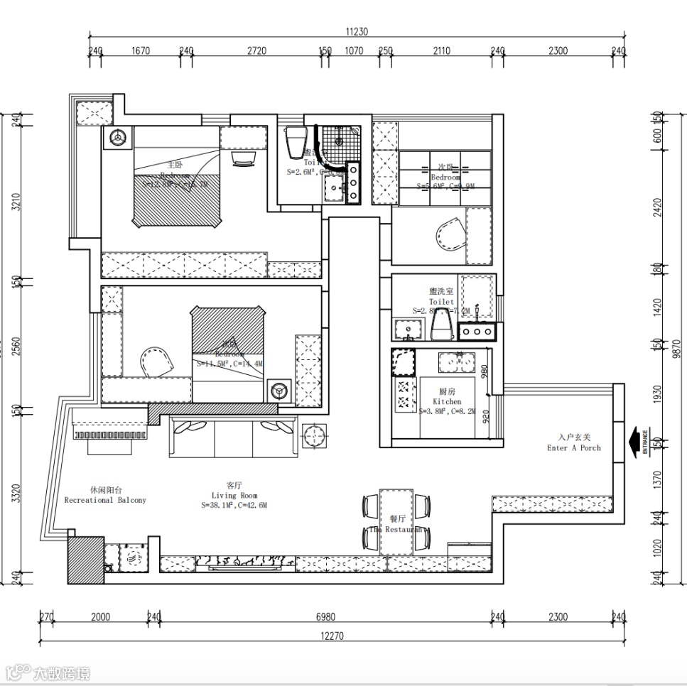
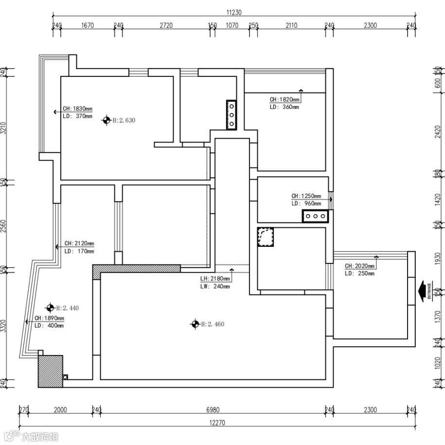
原始结构图
平面布置图
✅开放式厨房连通入户花园和餐厅,加大整体通透;
✅客厅调整沙发位置,餐边柜、电视柜连通;
✅次卧与部分生活阳台打通,增强光线与面积。
XUANYI
PART. 玄关
ONE
打通入户花园
Xuanyi home decorationrealcase
改造前的玄关区在入户花园中,空间虽大但是无规划,实用率并不高,而且餐厅与厨房却十分局促。
改造后将入户花园连接餐厅与开放式厨房,并设立玄关定制柜,让整个家面积实用率得到提升。
↑改造前·↓实景落地
PART. 客厅
TWO
调换位置 得到双赢
Xuanyi home decorationrealcase
将客厅调整沙发位置,餐边柜和电视柜整体连通后,储物空间得到提升,柜体效果让空间更整洁明了。
↑改造前·↓实景落地
电视柜一体化定制,收纳力直线上升,简直是多娃家庭福音。
绿植与木地板呼应,为家营造元气满满的氛围。
打通阳台延伸客厅空间,直接让家扩容三倍。为家中打造惬意的休闲空间。
PART. 餐厅
THREE
打通空间 实用加强
Xuanyi home decorationrealcase
原始户型空间分割不合理,餐厅可用空间较小。
改造后,将入户花园打通增强餐厅的深度,公区空间感得到提升。整面墙的餐边柜设计解决了业主的收纳难题。
↑改造前·↓实景落地
PART. 厨房
FOUR
开放舒适 实用翻倍
Xuanyi home decorationrealcase
改造前厨房为封闭式,面积较小,使用起来十分局促。改造后设计为开放式厨房,与入户花园做贯通,营造舒适宽阔的烹饪环境。
回字型厨房布局,洗-切-炒-出,烹饪所走动线流畅,将空间最大化利用起来。
PART. 主卧
FIVE
微调规划 舒适提升
Xuanyi home decorationrealcase
在不影响主卫面积使用的情况下移墙体后,衣柜空间得到了提升,床的位置不再受飘窗的影响设限位置,房间舒适度得到提升。
↑改造前·↓实景落地
浅色温馨的色彩搭配实现业主的理想屋,顶天立地定制柜收纳能力不输衣帽间。
PART.儿童房
SIX
小空间造新世界
Xuanyi home decorationrealcase
儿童房面积相对比较小,改造前衣柜和书桌空间只能二选一,不利于孩子的成长空间。
↑改造前·↓实景落地
改造后设计为榻榻米,将飘窗利用起来,增强空间使用率、收纳力,孩子在小世界也能井井有条的生活与休息。
PART. 儿童房
SEVEN
打通阳台 视野开阔
Xuanyi home decorationrealcase
改造前生活阳台占据比较大的空间,导致次卧的采光受到阳台的空间影响。
↑改造前·↓实景落地
改造后占用部分生活阳台的空间,增强房间的实用面积。定制书桌柜增加空间收纳功能,房间面朝江边,景观视野更加开阔。
• END •

