四居雅室巧思布局
三代同堂悦享清欢
本套120㎡复古住宅
三代人住得像200㎡大平层
用弧形玄关化解风水难题
以可移动家具创造活动区
打造出既有复古温度
又符合现代功能的三代同堂居所
设计亮点
原始户型图
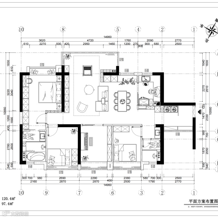
平面设计图
✅ 玄关弧形造型化解风水,弱化横梁压抑感;
✅ 过道改造洗衣区+家政柜,释放厨房空间;
✅ 客厅阳台打通,满墙电视柜+升降书架隐藏承重墙;
✅ 主卧门移位提升隐私,装饰柜隔断实现采光与储物双赢。
XUANYI
PART. 入户
ONE
巧思化解风水
Xuanyi home decorationrealcase
入户玄关增加弧形造型,遮挡看见主卧门的风水问题。
同时降低了入户梁的压抑,结合弧形和木色的跳色,让入户眼前一亮。
PART. 客厅
TWO
通透且有格局
Xuanyi home decorationrealcase
客厅横厅布局,鱼骨拼胡桃木地板奠定复古基调,宽敞大气的自然底色为客厅凝练生活厚度。
黑色皮质沙发沉稳大气,搭配复古抱枕和方块布艺,细节处尽显复古感。
摈弃笨重的茶几,而是用原木移动圆桌代替,通透又高级,家人互动空间也更强。
电视墙采用上白+下胡桃木的满墙柜,电视嵌入其中,整体性强,收纳能力MAX。
不同形态的家具围合出一片自在天地,在材质、肌理与光的修饰下,铺叙温润质感。
PART. 厨房
THREE
动线便捷超实用
Xuanyi home decorationrealcase
厨房以米白色调为主,橱柜、电器全部嵌入式设计,视觉上整洁统一。
拆除厨房墙体,利用空间增加了洗衣机柜及杂物柜、扫地机器人的位置,充分利用过道空间。
PART. 餐厅
FOUR
食光慢享三餐
Xuanyi home decorationrealcase
胡桃木长桌与藤编餐椅的材质碰撞,勾勒出自然温润的用餐场景。
垂坠的吊灯投下光晕,让每一餐都自带慢生活滤镜。
特别设计的多功能餐边柜,巧妙整合了清洗区与收纳系统,咖啡冲泡、茶具清洗等日常需求触手可及,在复古情调中暗藏现代生活的便利哲学。
PART. 书房
FIVE
静界书香雅室
Xuanyi home decorationrealcase
书房以黑框水波纹玻璃为界,将客厅的喧嚣滤作朦胧光影。
满墙书柜采用虚实结合的设计——上部玻璃柜门珍藏翰墨风华,下部柜体收纳生活琐碎。
既可执笔办公,亦能铺纸习字,在静雅空间里,成全两代人的精神栖居。
PART. 主卧
SIX
静谧好入眠
Xuanyi home decorationrealcase
主卧调整了开门方向,增加隐私性和储物量。
水纹玻璃装饰柜作为床与过道的隔断,让光线若隐若现,增添朦胧美感。
奶杏色墙面搭配黑银灯具,营造优雅静谧氛围。
定制床尾柜体将功能与美学完美融合,梳妆、收纳、展示一气呵成,展现精致生活格调。
PART. 长辈房
SEVEN
简约且温馨
Xuanyi home decorationrealcase
长辈房简直把贴心刻在了每个细节里。胡桃木床头搭配复古台灯,沉稳中透着岁月的质感。
房间特意安排在卫生间隔壁,老人家起夜不用摸黑走远路,门一开就到。细节的安排,却是实实在在的孝心。
PART. 儿童房
EIGHT
小空间大能耐
Xuanyi home decorationrealcase
儿童房虽然面积不大,但经过巧妙规划,简直是个小宝藏。
开放式书架、转角书桌、带储物功能的榻榻米一应俱全,收纳、学习、休息全搞定。小空间大能耐,这才是真正懂孩子的设计。
• END •

