没有繁复的雕梁画栋
以弧形、原木、留白写意东方
不见冰冷的科技堆砌
用简洁家具、隐藏收纳注解现代
在这方120㎡的轻古风居所里
烟火与风雅,可共生共荣
设计亮点
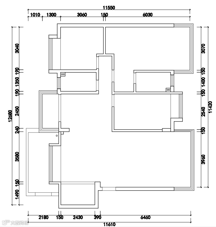
原始户型图
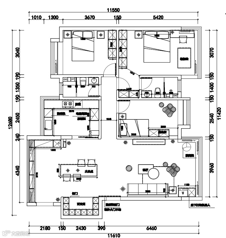
平面设计图
✅ 公区开放布局,阳台入客厅,实用面积秒增10㎡;
✅ 现代与复古元素融合,勾勒传统与现代的平衡美;
✅ 厨房采用玻璃推拉门实现开合自由,阻断油烟。
XUANYI
PART. 玄关
ONE
风景与实用同在
Xuanyi home decorationrealcase
阳光透过窗帘洒下斑驳光影,仿佛一幅天然的画作,为归家的人带来一丝宁静与惬意。
简约的半高柜静静地伫立,收纳着进出的鞋履、钥匙等杂物,将生活的琐碎悄然隐藏,只留下整洁与有序。
这方寸之间,是家与外界的分界,也是诗意与生活的交融。
PART. 客餐厅
TWO
古韵与现代交融
Xuanyi home decorationrealcase
步入公区,客餐厅的景致便如画卷般徐徐展开。
客餐厅开放式布局,一道弧形拱门如画框般将视线引向深处,既隔断空间又保留通透感。
将阳台纳入客厅增加实用面积,延续玄关拱门元素,打造平行双拱门廊,搭配低饱和窗帘,线条落地灯在留白的空间中尽显中古意境。
复古质感皮质沙发+现代懒人椅,搭配中古球形罩灯,是古韵与现代的交融,也是诗意与烟火的碰撞。
电视背景墙没有过多的装饰,仅以一面素墙示人,却更显空间的开阔与通透。
胡桃木长桌搭配高架餐椅, 复古吊灯垂下,暖黄色的灯光洒下,为空间蒙上一层朦胧的诗意。
为实现多重收纳,设计将储物柜嵌入墙内,与墙面平齐,拥有更强大的收纳功能,同时整洁美观。
PART. 厨房
THREE
点亮烹饪的时光
Xuanyi home decorationrealcase
打破封闭式厨房的沉闷,采用玻璃推拉门实现开合自由,同时起到阻断油烟的效果。
阳光肆意洒落,照亮整个空间,也让窗外的景色成为厨房最美的装饰。U型操作台设计,合理动线: “洗-切-炒”动线流畅,让烹饪便捷高效。
PART. 主卧
FOUR
静谧雅致安身心
Xuanyi home decorationrealcase
卧室通铺自然肌理木地板,弧形拱门的造型隔断将睡眠区与休闲区轻柔分隔,营造温馨舒适的氛围。
古色古香床头小台灯、复古精巧收音机,飘窗一处的休闲座椅,细节处延续轻古风脉络。
定制顶天立地衣柜收纳能力一流,柜门一关,杂乱通通隐藏其中,整体干净整洁。
PART. 次卧
FIVE
简约宁静且舒适
Xuanyi home decorationrealcase
两间次卧都没有过多的装饰,大面积白墙搭配温润木质地板,阳光透过纱帘洒进室内,为房间增添了一丝温暖,简约而不简单,宁静而不失雅致。
• END •

