以纯净白墙为画布
通过精准的空间切割与光影调度
让每家中每1㎡都散发高级质感
落地窗引光入室
隐藏式收纳化解复式结构痛点
看似极简的设计里
藏着20处人性化巧思
高级感从不需要过度装饰
设计亮点
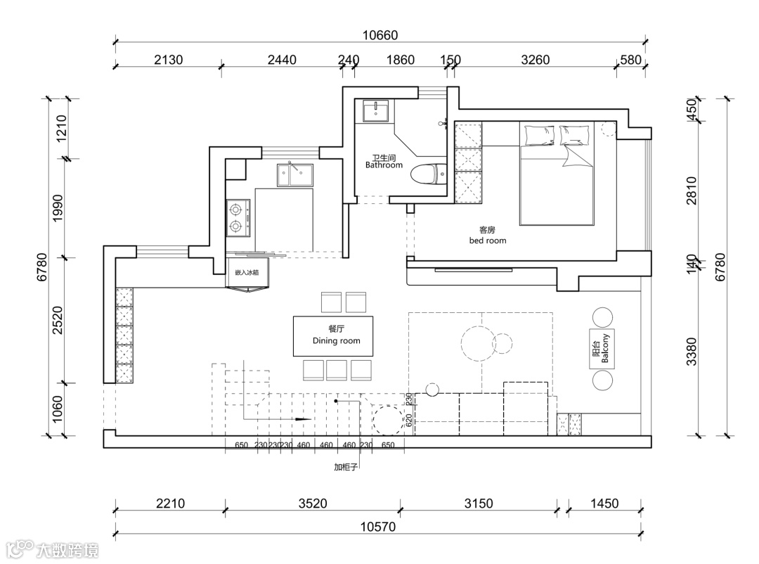
一楼原始户型图
一楼平面设计图
二楼原始户型图
二楼平面设计图
1️⃣ 超长顶天鞋柜+端景,收纳量激增200%;
2️⃣ 冰箱外置+楼梯移位,打造流畅U型操作区;
3️⃣ 主卧牺牲1个卫生间,换来强容纳的“衣帽间”。
XUANYI
PART. 玄关
ONE
颜值收纳全在线
Xuanyi home decorationrealcase
从"无处落脚"到"入门即景"。
Before:原始户型进门空间十分局促,收纳能力极弱。
After:悬浮大理石板+镂空木栅栏构成端景,一丛富贵竹让归家即刻治愈,打造视觉C位。
▸ 收纳王者:顶天立地玄关柜暗藏玄机。
• 左区:旋转鞋架+雨伞格+快递暂存层;
• 右区:嵌入式冰箱与柜体严丝合缝,解放厨房空间。
PART. 公区
TWO
通透敞亮有质感
Xuanyi home decorationrealcase
用80%的预算完成200%的效果,关键在于对「光与线」的精准把控。
落地窗+白色纱帘:阳光经过二次柔化,客厅秒变「天然摄影棚」,让整个家都柔和起来。
深棕色沙发为空间增加视觉锚点,与装饰画搭配,营造出松弛有度的呼吸感。
电视墙微弧度曲面设计,让白墙长出「温柔骨骼」,白墙也能如此优雅在线。
所谓空间魔法,其实是把没人要的角落用到了极致。将楼梯底部的鸡肋区改造成通顶餐边柜,收纳力暴涨300%。
PART. 客卧
THREE
光线入室来作画
Xuanyi home decorationrealcase
最好的装饰不是物件,而是清晨8点准时拜访的那缕阳光。
整面落地窗将阳光引入室内,光在墙面作画。顶天立地柜体收纳力满分。纯白墙面搭配浅灰地砖,空间视觉放大1.5倍,这是客卧彰显出的极简美学。
PART. 楼梯
FOUR
光之轨迹颇有型
Xuanyi home decorationrealcase
嵌入式感应灯随脚步渐次亮起,夜晚上演「星光大道」特效。踏面采用大理石,扶手选用透明玻璃,两种材质在此汇合折射双重光影。
PART. 主卧
FIVE
暖光为被超治愈
Xuanyi home decorationrealcase
温馨、治愈、好入眠是主卧的代名词,暖色墙面与自然光线融合,打造大道至简的美学。
原始空间中,主卧收纳空间不足,改造后拆掉1个卫生间,换来超强容衣帽区。
所有物品都能井然有序收纳其中,实现每一平方都能物尽其用。
PART. 儿童房
SIX
粉色梦幻城堡
Xuanyi home decorationrealcase
柔雾粉墙面搭配云朵梦幻造型床头,步入儿童房宛如踏进梦幻城堡一样。
书桌设置在窗边,通透明亮。
顶天立地柜将小公主的所有物品完美收纳,中间的展示柜让孩子的成长物品均有专属舞台。
PART. 次卧
SEVEN
少即是多的睡舱
Xuanyi home decorationrealcase
次卧彰显出少即是多的睡眠哲学。窗帘为光影调解师,白天将直射光转化为朦胧光晕,夜晚100%遮光帘营造洞穴式睡眠环境。
• END •

