将色彩做减法
黑白灰营造出质感美家
沉静纯粹、简约实用
一起走进本期美家
看黑白灰极简风
是如何高级的毫不费力
设计亮点
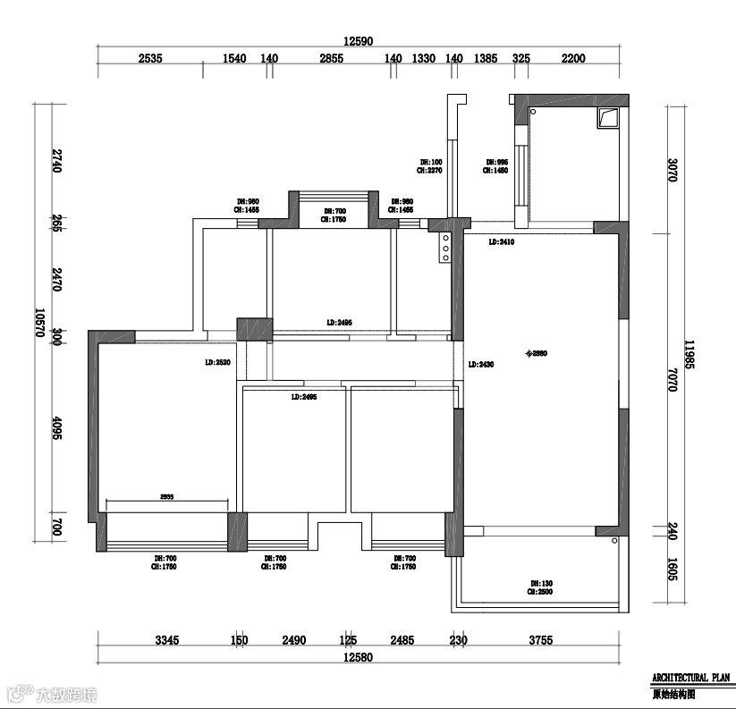
原始结构图
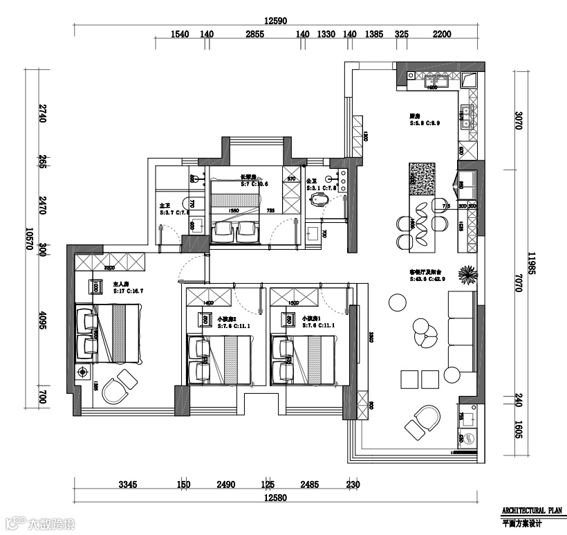
平面布置图
✅将小厨房改为开放房,增大公区面积;
✅色彩做减法,低成本白墙也能营造高级氛围;
✅餐厅墙面定制柜,将大家电冰箱完美“隐身”。
XUANYI
PART. 客厅
ONE
色彩减法 白墙也美
Xuanyi home decorationrealcase
本期美家常住人口5-6人,公区是一家人最多相处的地方,通透明亮、空间足尤其重要。
将阳台打通,公区实用面积扩大。无主灯的设计,从视觉中将层高提升。
嵌入式电视墙将电视“收入”墙中,让公区更加干净利索,木珊栏让电视墙更有设计感,简而不凡的氛围由此而生。
沙发采用经典黑色皮质沙发,质感扑来而来。绿植赋予空间生机,沙发墙没有过多装饰与点缀,简单低成本的筒灯就能营造出一幅“山水画”~
在阳台看向整个公区,简单的色彩打造出纯粹、沉静的美家质感。
说不哪一个地方很亮眼,搭配在一起却充分体现出高级感。
PART. 餐厨
TWO
打破局限 化小为大
Xuanyi home decorationrealcase
原始户型中,厨房小而局促,而且还将整个公区进行了切割,整个公区小而不实用。
改造后的开放式厨房设计,让公区更具多功能性。
L形厨房的实用空间有限,岛台餐桌前来互补。餐厨一体化设计让实用空间更多,哪怕三个人一起做饭也不会觉得拥挤~
冰箱作为大家电,如何体面的收纳是个难题。冰箱采用嵌入式设计,完美“隐身”。餐厅整面墙的定制柜收纳力十足,解决了多口之家的收纳问题。
PART. 主卧
THREE
简约质朴 收纳实用
Xuanyi home decorationrealcase
主卧以实用简约为主,整墙定制柜的高收纳力堪比衣帽间。床头柜采用黑色与衣柜、床头的浅色系形成呼应。
PART. 次卧
FOUR
治愈温馨 好睡舒适
Xuanyi home decorationrealcase
光线透过窗户洒满房间,简约质朴的房间也充满了温馨感,皮质床头为简约的空间提供了质感。小小的飘窗也是另外一个小天地。
• END •

