在三代同堂的200㎡大平层中
将合二为一的空间相融相通
创造出既共处又独立的舒适空间
共生、独立、尊重、情感
家中每一位的成员
都家中得到完美的平衡与满足
设计亮点
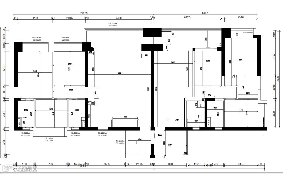
原始结构图
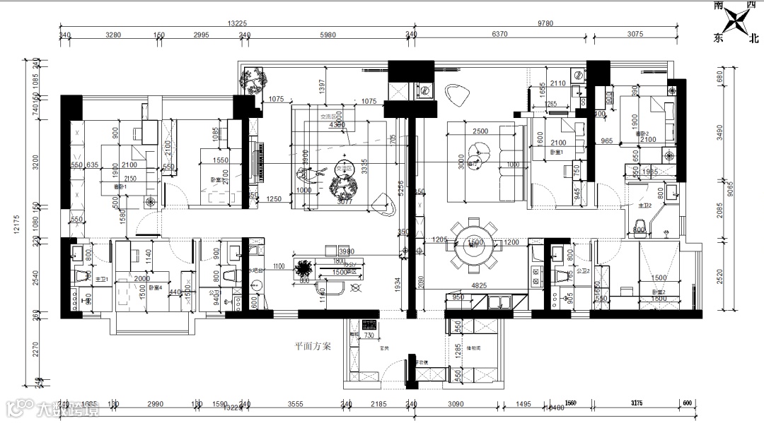
平面布置图
✅开放式厨房使得更加开阔通透,不显局促;
✅拆掉玄关隔墙,将玄关合二为一,留出更多收纳空间;
✅对称式设计将空间设计成两种不同的设计风格,三代同堂既独立又亲密。
XUANYI
PART. 玄关
ONE
两户合一 入门即景
Xuanyi home decorationrealcase
拆掉玄关隔墙,将玄关合二为一,是唯一公用区。
靠窗设计L型悬空鞋柜,柜门采用哑光材质,鞋柜底部留空,方便放置常穿鞋,同时增加了空间的轻盈感。
PART. 客厅
TWO
两种空间 各绽姿态
Xuanyi home decorationrealcase
两种生活,两种风格,这样的设计既能保留了家庭成员的隐私、活动需要,又实现了宽敞舒适、感情生活边界得当的共处空间。
现代时尚轻奢:
业主喜好时尚轻奢,沙发选用了意式风格,线条简洁,充满现代感。
电视背景墙采用了大理石与木饰面的结合,层次感十足,电视左侧开放式柜体展示金属饰品更显优雅品味。
沙发后墙柜一体,中间妙地内嵌了一架钢琴,光透过窗户洒在钢琴上,瞬间装点出一幅治愈人心的画卷。
沙发一侧是一个功能性空间,吧台配备了小型水槽和饮水机,是茶室区、也是办公区。
大理石桌椅上的灯光柔和,营造出温馨的氛围,绿植的点缀则为空间注入了一丝生机,是家人饮茶、办公的温馨角落,充满温度与生活气息。
适老高级简约:
考虑到父母居住的需求,更加注重适老细节,提升父母居住舒适度。
客厅采用开放式设计,与餐厅和厨房相连,形成流畅的动线。
地面铺设了浅色系瓷砖,纹理细腻,搭配灰色大理石电视墙,营造出高级感。
杏色沙发柔软舒适,与整体协调,凸显轻奢质感,采用大理石圆形茶几避免磕碰。
大面积的落地窗引入充足的自然光,使空间显得通透而明亮。
PART. 餐厨
THREE
开放设计 团圆温馨
Xuanyi home decorationrealcase
开放式厨房以哑光深灰和米白为主调,内嵌式冰箱与橱柜整洁有序,视觉上开阔且质感拉满,收纳方面也绰绰有余。
圆形大餐桌整体圆润无尖锐化设计,最大化避免磕碰,一家人团团圆圆在此享受一日三餐。
PART. 主卧
FOUR
淡雅柔和 自然舒适
Xuanyi home decorationrealcase
主卧以低饱和鹅黄+杏色搭配,与干净、自然、柔和的木地板搭配,营造出淡雅柔和的休息环境。
安置一盏精致小巧的半圆弧床边吊灯,从天花板自然垂下,极具艺术感。
PART. 儿童房
FIVE
成长空间 一应俱全
Xuanyi home decorationrealcase
男孩房利用飘窗做延展做榻榻米,下半部分满满储物空间,小空间也能变得实用起来。
女孩房中,考虑到业主女儿日常阅读书写需求,靠窗处安置木质书桌以及粉色座椅,柔和灯光提升阅读氛围。
PART. 长辈房
SIX
岁月静好 温馨舒适
Xuanyi home decorationrealcase
长辈房没有过多的设计,简约质朴的色系营造舒适的睡眠空间,阳光洒进时,岁月静好,十分治愈。
长辈套房的另外两间小卧室空间有限,定制柜的设计完美解决收纳问题。
• END •

