如何平衡风格与实用
始终是考验设计的难题
轩怡家装本次落地的140㎡住宅
以 “轻中古风” 为笔触
在胡桃木与焦糖色的交织中
勾勒出一个兼具通透格局与温情日常的家
一家六口的起居生活
在此寻得松弛与温度
而最终的落地效果
更印证了预算之内亦可实现顶级质感
设计亮点
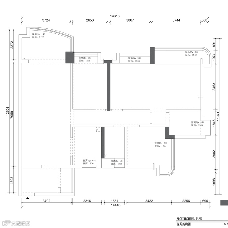
原始户型图
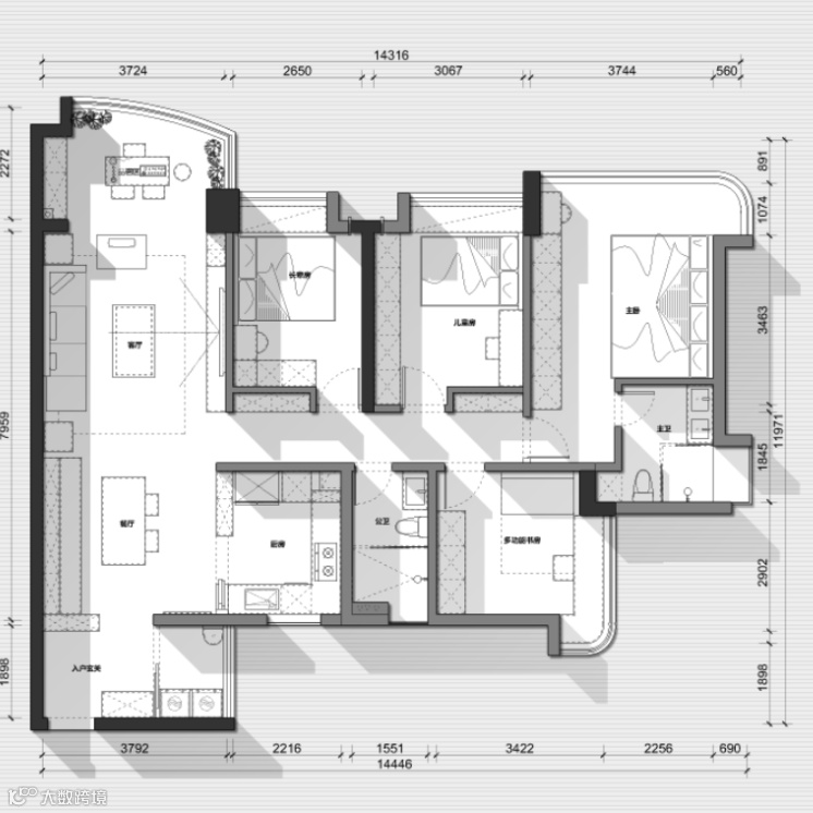
平面设计图
✅一体通透:客餐阳台贯通,重塑采光与空间感;
✅色韵点睛:胡桃木配焦糖色,弧线勾勒轻古雅韵;
✅功能共生:定制柜结合造型景致,美感与实用兼得。
XUANYI
PART. 玄关
ONE
入户见景 雅致迎宾
Xuanyi home decorationrealcase
原始户型开门见厅,轩怡家装通过玄关柜结合玻璃端景,巧妙构筑入户界面。隔而不断的视觉延伸,让归家瞬间沉浸于轻古风韵,疲惫随之消散。
PART. 客厅
TWO
沉静底色 通透共生
Xuanyi home decorationrealcase
客厅以留白为底,焦糖色家具与胡桃木元素沉稳点缀。
皮革沙发搭配复古落地灯,构成自然耐看的轻古风组合。
局部拱形与弧形设计,柔化空间界限。
阳台纳入客厅后,休闲茶座与到顶收纳柜并存,大幅提升采光与宽敞感,呈现明亮通透的落地效果 。
PART. 餐厅
THREE
连贯视觉 功韵兼得
Xuanyi home decorationrealcase
整墙定制柜延伸出卡座与餐桌一体设计,节省空间亦增强整体感。
镂空处陈设游鱼摆件,增添生趣。
复古吊灯映衬胡桃木橱柜,材质呼应全屋,从餐厅望向阳台的纵向视野,尽显通透格局。
PART. 厨房
FOUR
高效布局 温情点缀
Xuanyi home decorationrealcase
U型布局优化“洗切炒”动线,嵌入式电器保持立面整洁。
窗边一株千层金,以渐变色彩点缀厨房,成为日常烹饪中的治愈景致。
PART. 多功能房
FIVE
光影浮动 灵动可变
Xuanyi home decorationrealcase
窗边悬浮台设计引光入室,可供阅读、小憩。
转角玻璃吊柜内藏手办,为静谧空间注入轻松趣味,诠释轩怡家装对灵活空间的用心考量。
PART. 主卧
SIX
焦糖焦点 柔和静谧
Xuanyi home decorationrealcase
白墙衬托焦糖色软包床头,构成视觉重心。
双床拼接满足家庭安眠需求,床尾桌柜一体结合纱帘,光线柔和隐私得当。
PART. 次卧
SEVEN
沉稳色调 安舒之境
Xuanyi home decorationrealcase
墨绿软包床头与深木边框营造沉稳氛围,适合安睡。
窗边千层金与古韵台灯相伴,围合出一处静谧角落。
PART. 女孩房
EIGHT
清甜简约 灵动成长
Xuanyi home decorationrealcase
无把手到顶衣柜维持立面整洁,底部粉色点缀流露少女心。阳光透过大面积窗户洒入,与彩色挂画相映,空间轻盈而充满朝气。
本案以轻中古风为魂
贯通功能与美学
每一处细节皆为实现落地效果而深思熟虑
最终在广东装修的实用基因中
生长出独有的雅致与温度
• END •

