
现在房价渐长,许多人不愿当房奴,于是就将就小户型来蜗居,其实,小小户型更加需要一个强大的空间设计,专门解决蜗居的最大难题——收纳,实用的收纳功能对于小户型来说至关重要。蜗居也可以变成大容量收纳盒,来看看别人是怎么做的吧。
轻装修

整理与收纳是小空间永恒的话题,采用“轻装修”的原则是一个很好的方法,主张在有限的空间和预算下,居家空间的实用机能应以家具配置才是装修的重点。这间由Spamroom设计,位于柏林的My Plus One出租套房利用系统家具概念,让小空间也能够住得很舒适

将收纳、书柜、橱柜整合在一起,进门入口处一路延伸到卧室的墙面,并发展到天花梁柱下方,妥善规划空间大小和家具安排,仅仅运用室内的一个转角,就满足了大部分生活需求
线条简单,清爽复古
蜗居简单为上
家具的配置力求简单线条,厨房利用回首水管和旧木制作的灯具与门片,铺上白色瓷砖,营造出清爽复古味道!
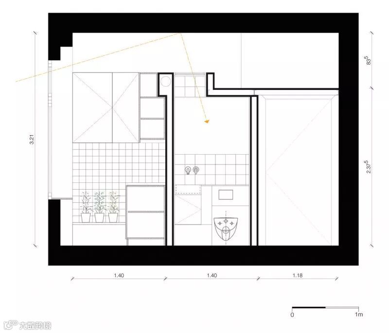
如果不看图纸可能无法想象这套公寓的面积仅仅只有21平面。这是柏林建筑设计公司spamroom 和 john paul coss接受了一个具有艺术风格的微型公寓更新项目,该项目位于德国首都柏林,具有一定的挑战性。这座公寓可以追溯到20世纪初,面临着满足现代化和空间重组的迫切需求。

如何,看了这套蜗居设计,是不是对小户型有信心了呢?不怕面积小,就怕你不会设计装修!分分钟就将蜗居小户型一下子装修的高大上有木有!





