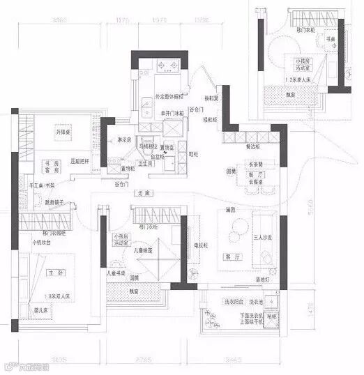
建筑面积为89㎡,户型还算方正,格局为三房两厅,设计风格为日式北欧混搭,业主是一对年轻的夫妇,还有一位可爱的女儿,本案总的装修花费大约40万左右。

玄关

▲长长的玄关,入口铺贴地毯装饰,缓解了这种狭窄的感觉,一进门就感受到了业主及设计师的用心。

▲厨房门采用谷仓门,让整体的颜值加分了不少,全身镜的安装方便业主出门前的着装整理,因此镜子渐渐地也成了玄关所需的标配产品。

▲狭长的过道只能摆放薄薄的鞋柜,用于收纳平时常换穿的鞋子,可爱的小羊换鞋凳在这里也显得特别实用。
餐厅

▲餐厅与客厅组成一个长方形格局,在这个不大的空间里,地面材料使用一致,吊顶设计为一体,墙面刷白色漆,这样的设计可以让空间看起来更大。

▲嵌入式的餐边柜,整体性更强,白色与木色相撞,显得更加时尚耐看,中间为开放式的镂空设计,方便收纳常用的物品,吊柜上两个格子柜,让柜子看起来不会单调乏味。
客厅

▲由餐厅看向客厅方向,客厅天花无主灯设计,取而代之的是藏灯+筒灯+落地灯,有效地实现了分区域照明。

▲选用舒适的布艺沙发,搭配有颜色的抱枕,墙面则用简约的挂画装饰,茶几上的水果摆饰看起来很有生活的味道。

▲简洁的电视墙,摆放了日式的电视柜,墙上没有安装电视,恰巧白墙作为投影的幕布,顶上两边还安装了音响,家庭影院就这么实现了。

▲浅灰色的窗帘,浅灰色的地毯,中灰色的沙发,搭配木色与白色的家具,然后再用绿植点缀,丰富的色彩搭配让整体看起来更有层次感。
主卧

▲浅咖色的背景墙,搭配木色的家具,木色的地板,在暖暖的光线照射下,营造出一个温馨舒适的卧室氛围。

▲床边摆放迷你梳妆台,自带收纳功能,不使用时可把化妆品全都藏入其中,时刻保持台面的整洁,ins梳妆凳,很可爱有木有?很想购买有木有?

▲床头柜上的开关及充足的插座,细节的设计体现,让主人的生活更加方便、舒适。

▲推拉门撞色衣柜,看起来就很“调皮”,体现了主人的独特审美追求。
儿童房

▲女儿房墙面采用粉色与白色搭配,显得更有设计感,天花顶上的气球吸顶灯很受小朋友的欢迎。

▲儿童床,云朵靠背很吸引眼球,独特的设计让人看了之后还印象深刻。

▲黄白圆形壁灯,既实用又可装饰墙面,穿上袜子的小凳子及书桌,很治愈系。
书房

▲映入眼帘的墙上挂饰,是主人亲自编制的,很有纪念意义。

▲女主人喜欢手工,墙上的层板架刚好可以收纳女主人的手工物品,桌面上方的墙面贴了软木板,对于生活点滴的记录显得很有帮助。
阳台

▲阳台充当了洗衣区,同时也充当了收纳储物区,一体式的洗手盆+洗衣机柜,保持了阳台的整洁及干净。
厨房

▲嵌入式的冰箱,正上方做了吊柜,增加了收纳,旁边的置物架,简单小巧,放置一些调味瓶显得很方便。

▲白色的橱柜搭配米色的台面,墙面铺贴小白砖,地面则采用花砖来点缀。
卫生间

▲卫生间,放置了一个成人及儿童的马桶,很有爱的设计,另外洗手盆的墙面做了壁龛,从而让洗手台面保持整洁干净。


