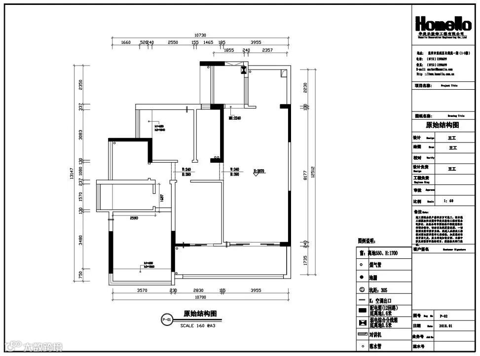
户型解析

1、户型方正无明显缺陷。
2、业主一家四口居住,女主人希望能够在有限的空间里拓展出一个衣帽间。
3、女主人喜欢烹饪享受生活,希望家是充满温度的
4、家有儿女,希望给孩子更加广阔的活动空间,保存童真与欢乐。
设计思路

2、阳台与客厅打通摒弃推拉门隔断,整个阳台封窗处理,增加空间利用率,居住更加舒适,除了常见的洗衣烘干晾晒区域,多余的另一边空间还可以设置一个吧台,晚风徐徐,在这里画画天空或者喝喝小酒,生活太美妙啦!
3、便利好用、颜值高的厨房对爱烹饪的女主人来说,太重要啦,洞洞板的设计为厨房加分!
4、家有儿女,孩子会长大,会变化,孩子房间不过多做不可移动的设计和订制品,将来不可限量,家居需求也会有变化。未来,无限可能!
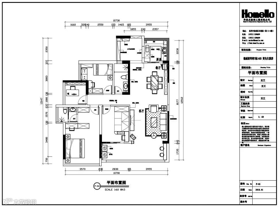
装修前后


屋主是一对幸福的夫妻,儿子喜欢画画,女儿是个机灵的小可爱。喜欢烹饪、热爱摄影的女主人喜欢将生活过得特别有仪式感。为喜爱画画的儿子特意布置绘画用品区域,为辛苦奔波还会在家办公的老公准备专属书房,选择设计遵循人工体学的座椅,为自己热爱的小厨房增添个性化收纳空间。孩子的房间考虑将来的变动可能性。每个角落,每一盆花、一块帘子,都是经过细细推敲,每个细节都是凸显出女主人对生活的热情。
入户花园

入户花园是一个很好储物空间,这里用了一整面墙的洞洞板,平时进出挂包包、钥匙、雨伞等物品很方便。还可以挂一些装饰品,增加居住温度。

入户花园,是进入房子的第一风景,高颜值的绿植,精心挑选的摆件和装饰画,细节给人以舒适感。

对于文艺青年来说,洞洞板真的是家庭最好的收纳和装饰物品,强烈推荐。
厨 房

厨房用洞洞板来收纳各种锅碗瓢盆,既然可以收纳还能装饰。

入户门即可看见厨房里的光景,人间烟火气袅袅升起,家的温暖应运而生。看到这里脑海里的画面就是忙碌一天的人儿下班回家,一眼看见巧笑嫣然在厨房准备餐饮的妻子,迎面欢声笑语跑来的孩子。一天的疲惫烟消云散。
餐 厅

餐厅与客厅相连,延续北欧风 餐边柜,简单收纳功能强大。
客餐厅的墙壁以浅蓝色和白色为主色调。餐厅灯是简洁款圆形吸顶灯。

餐厅预留冰箱的位置,让小厨房不显得那么拥挤,餐边柜分为吊柜和地柜,中介的区域方便放置常用物品。

餐边柜上装饰画,杯子挂架,花盆和摆件没意见精心挑选的小物件,都给这个家带来几分温度。柜子抽屉和柜门的把手也是精心挑选的呢。

简单的干花麦穗儿,复古的木制存钱罐,特色造型的植物盆栽,角落的精致,真的是太好看了。

餐边柜用挂钩来存放杯子 美观又实用。
客 厅

简单的客厅装修,为了给孩子更加宽阔的活动空间,客厅直接摈弃了茶几,这种可移动的家具等孩子大了如果还需要的话,也可以随时添置。

细节上,客厅灯饰选用的北欧风装饰灯,简易好清洁。

实木色、白色与蓝色,简单清澈。没有茶几的客厅让孩子有更加宽阔的空间活动。阳台与客厅空间打通,封阳台,撤掉原来的推拉门,空间开阔!

电视柜旁边一张简洁的装饰画也能提升整个区域的格调哦。
阳 台

阳台改造,进行了封窗处理。增加室内的活动空间,阳台做一个吧台,惬意又舒适。

阳台封闭之后,洗衣机区域依然是洗衣机加烘干机,可爱又美观的帘子遮挡,洗衣机柜子的设计合理又好用,增加太多收纳空间。


阳台除了日常洗衣机晾晒衣物,另一头还多了一个休闲吧台。
高脚凳子的小吧台,摆上几个小摆件,闲暇时坐在之类看看书,画画,亦或者的喝点小酒,发呆。最美的独处空间。
主 卧

主卧没有多余的繁杂设计。简单的浅淡颜色的床和床头柜,衣柜的设计也是极尽心思,延伸出一个小小的梳妆台,方便合理还特别实用。

冬天穿了一天的外套,睡觉前存放问题一直是很多居家小可爱的难题,这张图给了一个完美的示范,颜值高的衣柜门挂钩,完美解决这个问题啦!

简单的北欧风卧室,依然延续浅浅淡淡的色调。

窗外的江景,也是很值得一看的哦,清晨起来阳光洒进房间,窗外波光粼粼,心情瞬间美好了。
次 卧

窄长型卧室,改变一下床头朝向,加上榻榻米柜子,收纳空间就够啦,不再需要另外的空间做柜子了。

用榻榻米床和柜子增加储物空间。书桌做成可移动的,方便将来小孩子年龄增长需求变化,而再随之改变他对书桌的需求,随时更换!

屋主:我儿子喜欢画画,这间房间置办可移动学习桌,也是可爱宝贝日常画画的小天地。随着年龄的增长,移动书桌也可以随之更换。
儿 童 房

儿童房上下铺,集合了柜子和床于一体。上铺也有储物空间,可爱的猫咪造型美观又作为围栏,防止掉下来。

上下铺的儿童房,增加童真与趣味,专门的储物格子里放满了房间小主人的画画工具。这里是hi未来小画家的独有天地。
书 房

书房空间比较小,一个大大的半透明储物橱柜,简洁的书桌

小书房,书柜和电脑是必备品。一切都遵循简单的原则。简单的书桌和椅子,高脚的设计使得空间更加通透。
卫 生 间


卫生间设置干湿分离是必要条件。简单的挂墙式浴室柜很方便清洁,也能放一些小凳子和小盆子。推荐大家选择浴室柜的时候建议尽量选择挂墙式的墙排浴室柜哦!
经验问答
问:装修这套房子最大的难点是什么?
答:业主希望能够在不做过多定制柜子的情况下增加收纳空间。
问:如何有效控制装修预算?
答:坚持根据家人生活习惯和喜好只做必要的功能。
问:最满意的设计亮点是什么?
阳台的封窗处理和洗衣机伴侣没有做常规的,而是选择了定制柜子加上北欧风的帘子作为隔断,美观又经济实惠。
问:最值得推荐的软装好物有哪些?
入户玄关和厨房以及阳台收纳所用的洞洞板、隔断帘子、灯饰、还有绿植摆件。

或许你也可以直接咨询
▼▼▼▼




