案例概况
坐标:东莞市麻涌镇
小区:碧桂园铜雀台
面积:140㎡
户型:4居2厅
风格:新中式
本案是中式风格,客厅具有内蕴的风格,为了舒服,中式的环境中也常常用到沙发,但颜色仍然体现着中式的古朴,使整体空间显出大家风范。
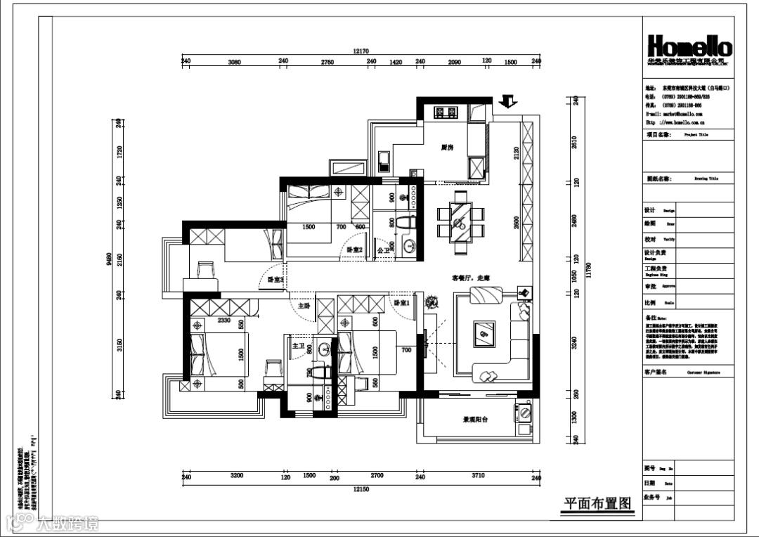
户型解析

原始户型
装修需求:
1、喜欢新中式风格 希望在不大的空间里面能够呈现出新中式的独有格调
2、需要2个儿童房和1个老人房,儿童房要求有衣柜和写字桌,男孩女孩的房间各有自己喜欢的不同元素
3、主卧室希望除了衣柜也能有一个小型的书桌可以做梳妆台和写字台使用。

平面方案
设计思路:
1、新中式风格也可以在硬装上进行简化,空间上就不需要特备大也可以
2、男孩子女孩子不同的房间,根据孩子的喜好在软装上下功夫,空间不足,利用床头柜的位置+借用飘窗台上的位置就满足一个书桌的位置。
3、主卧室考虑在床尾位置做一个小型的桌子,不影响空间动线。
客厅图赏
可以说无论现在的西风如何劲吹,舒缓的意境始终是东方人特有的情怀,这样躺在舒服的沙发上,任千年的故事顺指间流淌。



客厅的家具是纯中式的,实木的沙发茶几,电视柜也是实木的。实木与的装饰柜线条简洁利落,装饰柜上摆放的是业主最喜欢的盘景、陶瓷、古玩,热烈的红色为空间带来生机。


绿植是中式装修中不可以缺失的元素。精致的黄铜摆件不经意间透露出主人的生活品味。
餐厅图赏
餐厅挑空吊顶的设计搭配新中式吊灯很显大气。古色古香的方形餐桌仿古餐椅呈现出餐厅的独有韵味。餐厅的一边是大大的收纳型餐边柜,业主平时的收藏都放在这里。




主卧图赏
主卧还是依据整体风格选择了中式风格。石膏线造型装饰墙面,实木地板和实木柜子搭配出空间优雅的气质。





男 孩 房
孩子的房间,依据小孩的喜好选择了海洋主题的装饰,充满活力的感觉。
卧室宽度做一个书柜空间不够,利用飘窗的位置来在增加书桌的长度,小卧室需要做书桌的业主朋友可以参考这个哦!
儿童房的书桌和书柜,以白色为主色调,添加活力黄作为装饰色,整个空间充满童趣与欢乐!





主卧以简单为主,墙面是蓝色乳胶漆,两个大的衣柜做收纳,杂物有地方安放,室内才会干净整洁。
女 孩 房
小公举的温馨房间 糅合了实木与公主粉的色调,空间柔美不已。很洋气的粉嫩感,不俗不艳刚刚好。床垫选用的是比较好的床垫了 软硬适中偏硬一丢丢,但是很舒服,性价比高,和上一个儿童房间有一样,利用了飘窗的位置增加了书桌的宽度。整个空间用的是环保漆与定制柜子性价比高。






老 人 房
沉静的颜色,让人容易快速安静下来的环境,更利于老人在这个这个房间的休息睡眠



厨 房





卫生间



阳台洗衣机伴侣,在这里提醒一下亲们,如果 家里装修决定要做洗衣柜,一定要提前安排好,预留线管和水管的位置。
卫生间
干湿分离是卫生间的必备,隔断采用平开门的设计 防水更加完美,拐角处也做了收纳架 洗漱用品不发愁没地方收纳了。延续新中式分各个 浴室柜依然保持整体空间的风格与特色实木浴室柜 有质感又有档次。












