案例概况
小区:中骏雍景台
面积户型:128㎡ 4室2厅2
装修房屋类型:毛坯装修

原始结构图

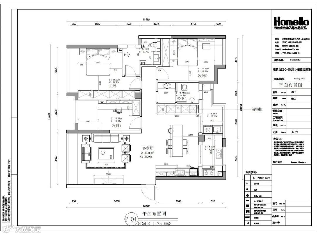
平面布置图
玄关


进门右侧是小巧的玄关柜,足够收纳一家三口的鞋物,同时与索菲亚的餐边柜定制成一体柜,可以让进门的空间更宽敞。而经过打通的餐厅、玄关与客厅,从进屋的第一眼便能感到大气磅礴的格局,让100平的房子拥有了媲美小别墅级别的厅堂。
客厅


客餐厅一体的设计很好地拉伸了空间的延展性,保证最大面积的采光同时,让全屋开阔通透,让空间看起来更有层次感。天花吊顶增加金属包边,在层次感中凸显轻奢。


浅咖大理石瓷砖地面,云纹大板砖的电视背景墙,时下最流行的橙灰配色窗帘,现代感皮艺沙发,几何状茶几。 符合业主简约而不单调的设计,就像夫妇二人说:在这个轻奢且简约的空间里,视觉如此宽敞,人一下就能卸下疲惫,这就是理想中回家的感觉。



客餐厅安装中央空调,保留空间的结构美,天花的艺术主灯提升了档次。灰白色电视柜,高档简洁,配上几株长势极好的绿植,让这个轻奢空间里增点了生机与色彩,顺眼又舒适。
餐厅


餐厅面积XX㎡,2米长的岩板餐桌,前后呼应的嵌墙式餐边柜,收纳空间可以说是非常充足,外加整体格调符合轻奢的设计,显得餐厅格外高档大气,能轻松应付亲朋好友前来聚餐。借阳台与厨房进行采光,空间通透明亮。


靠近玄关的餐边柜,设计嵌入式冰箱,节省了使用空间的同时,保证了结构的完整,色调上与灰褐调的餐桌餐椅相呼应。营造画面的协调与对比。
厨房



厨房采用水泥灰地砖,贴上米白色墙砖。 厨房面积算不大,但小U型动线布局,却让小空间实现最佳的操作性。上下组合柜也让所有的灶具、餐具都有了收纳空间,确保了整齐干净的画面。
主卧

主卧沿用白色的淡雅与金属点缀的轻奢,背景墙没有设置挂画,以清爽的姿态给予空间低调奢华的感觉。

两边的床头柜与金属吊灯作出了很好的呼应,让色调得到中和。飘窗加上铺上软垫,天气好的时候,坐上去看书,悠闲又快乐。


衣柜和梳妆台定制为一体,无论化妆还是换衣都显得得心应手,梳妆台上的1.2米高的立架,能尽数放自己喜爱的装饰,为卧室增添活力。

主卧的独卫比较有意思,通常浴室是先洗漱区后淋浴区,由于空间呈九十度直角,我们将其位置对换了一下,淋浴的空间得到延伸,使用起来更舒心。
次卧

次卧进门就有一组展柜,最大化利用了空间,增加收纳的同时,也美化的了环境,木纹地砖、蓝色的床铺与蓝灰色的窗帘配合,让房间在舒适中带有年轻。


双推门衣柜保证了足够的收纳,书桌与飘窗一体,保证了采光,书架与书柜一体,简单放上一些摆件,配合书架几何化的布局显得现代感十足。
儿童房

儿童房以孩子喜好为基础进行区分,喜欢清雅风格的小公主选取了白色系金属天花灯,搭配木纹地板、粉灰色窗帘,低彩度床品,简单物件营造了最为静谧舒适的睡眠区域。

书桌增设了活动桌板,正面可以处理日常功课,侧方可以放上电脑,当孩子未来长大后,这同时也是一个理想的办公环境。
卫生间


卫生间进行干湿分离设计,洗盥区采用咖色云纹大理石,与洗浴区产生冷暖色调交互,镜子采用智能镜,拥有照明和去雾气,弥补了采光问题,解决了雾化问题,使用更舒心。
阳台

阳台基本没多大改动,洗衣与洗盥区结合,节约了阳台的空间,方便日常洗衣和晾衣。




