小编将为大家呈现一套极具魅力的建筑面积达120平米的简约北欧风三居室精彩案例。在这套案例中,设计师巧妙地以沉稳而高雅的灰色作为空间主色调,再巧妙融入木饰面板、温润的木地板以及充满自然气息的木质家具等丰富木质感元素,精心构建出一个简洁明快且洋溢着轻松氛围的理想家园。同时,为避免整体空间过于单调,设计师独具匠心地在局部巧妙点缀亮色软装,并精心布置创意装饰,使整个空间瞬间灵动起来。

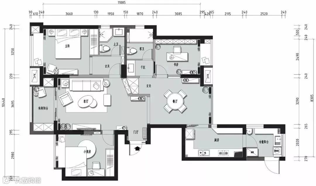
平面布置图

入户门厅,映入眼帘的是一面独具特色的文化砖背景墙,其粗糙而富有质感的纹理仿佛在诉说着岁月的故事。搭配上深木色的端景台,以及造型独特的壁灯与充满艺术感的装饰画,共同勾勒出一个简洁却不失创意的北欧风情空间,让人在踏入家门的瞬间便被其独特魅力所吸引。

玄关门厅侧方的客厅空间,两侧墙面均被温柔的灰色系所覆盖,与木质电视柜、茶几相互映衬,相得益彰。几盆生机盎然的绿植与舒适的单椅恰到好处地散落其间,宛如点睛之笔,为客厅增添了浓郁的自然气息与无与伦比的舒适度,仿佛将户外的清新与宁静巧妙地引入室内。

而位于玄关门厅另一侧的餐厅空间,则以木质感为主旋律,营造出温馨而质朴的用餐环境。顶部精心打造的圆形吊顶,宛如一轮明月高悬,为空间增添了一份柔和与优雅。餐厅一侧特意留出的摆放餐边柜的墙面,被刷成柔和的米色,在木色与灰色的环绕下,更显温馨宜人,让人食欲大增。

厨房内部,设计师选用灰色系的墙地砖与纯净洁白的橱柜相搭配,再巧妙地在局部以神秘深邃的黑色作为点缀,经典的黑白灰三色组合在此处演绎得淋漓尽致,使厨房空间显得格外简洁大方,彰显出一种低调而奢华的品质感。

与厨房紧密相连的洗衣房,延续了厨房的设计风格与色彩搭配方案,同样呈现出简洁明快的黑白灰空间。洗衣机与洗手台巧妙结合,各类柜子合理布局,为家居收纳提供了充足的空间,让日常洗衣与收纳变得更加便捷高效。

主卧室作为主人的私密空间,床头背景墙与窗帘均选用了灰色系,与整体风格保持高度一致。墙面上精心打造的与门厅相同的壁灯造型,在夜晚亮起时,散发出柔和而温馨的光线,为卧室增添了一份浪漫的情调。搭配上宽敞明亮的飘窗与充满质感的木质感家具,让整个卧室充满了温馨与舒适,仿佛是喧嚣世界中的一片宁静港湾,让人能够在这里彻底放松身心,享受惬意的休息时光。

儿童房在延续主卧设计风格的基础上,进行了一些巧妙的个性化设计。床头一侧以实用的书桌代替传统的床头柜,为孩子提供了一个便捷的学习空间,方便孩子平时读书学习。渐变色的挂画如同一幅绚丽的彩虹挂在墙上,为儿童房注入了满满的小清新感,激发孩子的想象力与创造力,为孩子打造出一个充满童趣与梦幻的成长空间。

书房空间虽然面积不大,但设计师通过巧妙的布局,将书桌布置在中间位置,使整个空间显得更为大气开阔。通体灰色与木质感的完美结合,既展现出年轻大方的时尚感,又带来自然舒适的阅读与工作氛围,让人能够在这里静下心来,沉浸在知识的海洋中,享受独处的宁静与思考的乐趣。

卫生间内部采用了科学合理的干湿分离设计,在转角位置精心布置了一个钻石型的淋浴房,有效利用空间的同时,也避免了水花四溅。洗手台和马桶分列在两侧,布局紧凑而合理,这种设计方案尤其适合面积不大的卫生间,能够在有限的空间内实现功能的最大化,为日常生活带来更多的便利与舒适。




