万科金域缇香
轩怡实景
轻奢风
3室2厅
陈世豪
主笔设计师
房屋面积:
85㎡
装修类型:
全包
工程监理:
李则任
工地质检:
全亿
本案是一套85㎡现代轻奢风案例, 设计师根据户型布局进行了讨巧的设计,既保证个人空间的私密,也能与家人之间进行有效链接,兼顾功能实用以及美观并存。

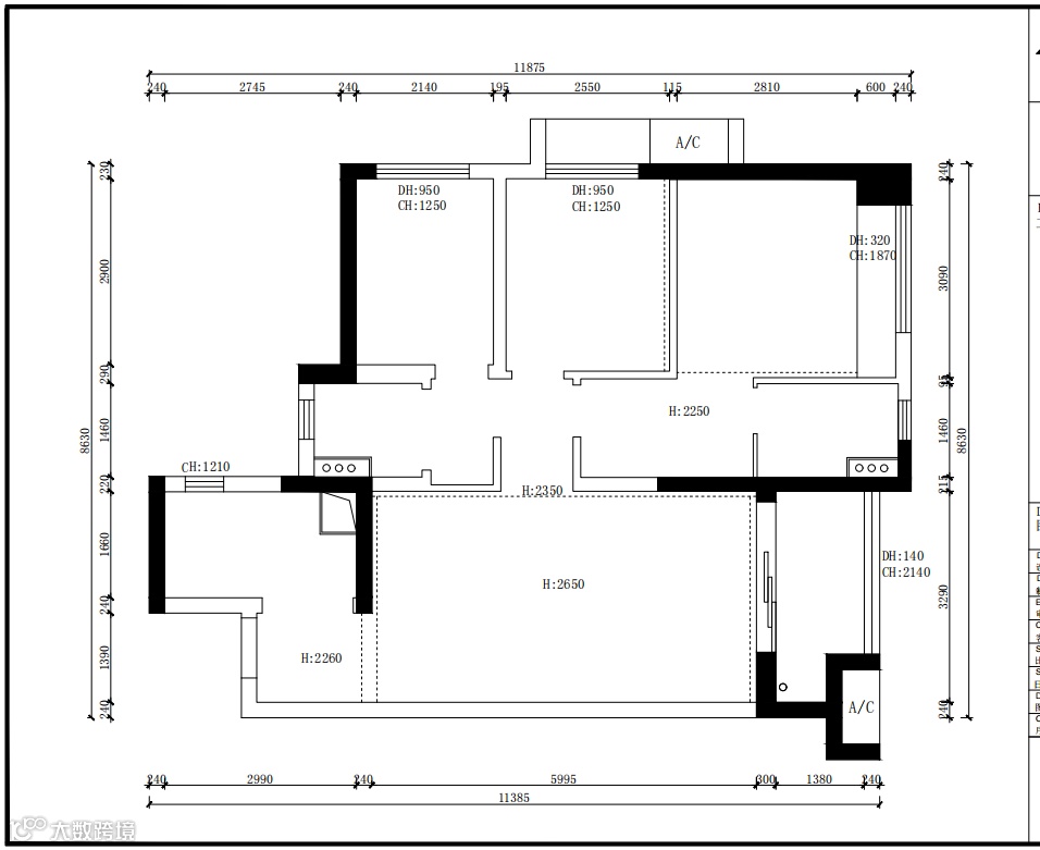
▲原始结构图
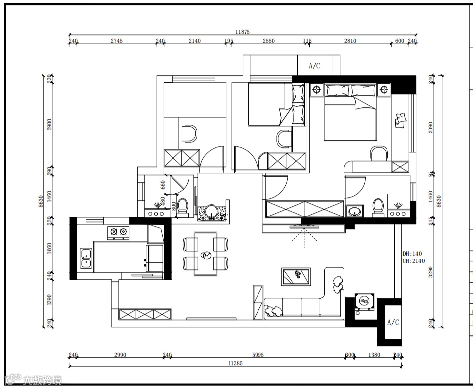
▲平面布局图
entrance to Buddhism
玄 关
玄关柜是做了定制通顶柜的设计,集合了换鞋凳的功能还在柜体做了挂钩的功能,加上智能的补光灯,让空间更加的温馨灵动。
上下层皆可用于储物,收纳能力超强的,在中层留空间,可以方便放置钥匙或者其他的摆件,玄关柜的底部留空,可放置经常换穿的鞋子,让换出来的鞋子气味流通。在玄关柜的另一边还做了一边的透明柜门的手办置物设计,以供展示收纳使用。
Living Room
客 厅
全屋用的是通铺地板瓷砖的设计,利用地板砖的反光与亮色的家具作为点缀,使得整个空间干净明亮。同时墨绿与白色相间的皮艺背景墙,赋予了温馨舒适的特性,还增加了空间的档次优点,也更合适于家里有小孩长辈居住的家。
为了充分的利用空间,把原有的推拉门拆除,阳台与客厅之间没有做门槛石设计,让客厅和阳台成为一个整体,使得视野上的开阔,也让采光更加的充足。
电视墙是做了大理石+格栅的设计,在格栅边加有内嵌入灯带,配合主灯与筒灯的照射,使得整个空间增加了立体感,也让整个空间看起来更加明亮与精致。
Dining room
餐 厅
开放式的餐厅设计,减少了封闭感,白色的石英桌,清爽自然,为了方便打理,选择的黑橘色的皮质餐椅与墙壁的挂画相互呼应,会带点轻奢的感觉。
金属线条包围整个客餐厅的吊顶空间,利用同属金色的管式吊灯做点缀,暖色的灯光都会呈现出有品位的活力范围,让整体风格不会那么的沉闷。
Kitchen
厨 房
在洗菜区上方装了燃气热水器(平衡式热水器),这种热水器的结构是密封的,需要装在厨房处,让在卫生间洗澡的人避免了废气的排放和触电的可能,所以把热水器安装在厨房处,也不会影响美观还让排放出来的废弃直接往窗户溜走。

“L”型的橱柜布局,完美的利用墙角的位置,配合隐形的拉手,平板无造型,将轻奢的极简进行到底,在造型的美观基础上,还兼顾了纳取的功能。还把消毒柜嵌入柜体内,节省了空间的用度。墙面的浅黄瓷砖、米黄色的厨房操作台,地柜的天蓝色清新,让视觉空间更加简约立体。
Master Bedroom
主 卧

主卧采用的是一整面的嵌入墙体的定制全透明衣柜,方便拿取。透明的衣柜也增加空间的通透性以及衣帽的收纳功能,让它充满了美观和实用度。

温软烫银色板、硬包拼接和玫瑰金属的线条床头背景墙,穿插利落线条感的格栅,让空间更具有立体感。在主灯与银色的吊灯作为空间的点缀,营造温馨的助眠空间。
简约的飘窗,以深蓝+白色的窗帘,橙色的抱枕作为点缀,让空间精致灵动。在休闲的时候欣赏着美景,悠哉悠哉的喝上一杯茶,享受着属于这一刻的静谧时间。
The children's roomm
儿童房1
男孩房是充满着梦幻科技感的设计装修,选择不同的饱和度蓝色调颜值高有质感,在床头背景上做了星空、月亮、宇航员的元素,激发孩子的想象力。再结合亮色的点缀,使得整个空间都充满了童趣。
靠近墙面做了定制的蓝色衣柜,在衣柜上画有金属的线条点缀让衣柜有着高级感又不失儿童的灵动。衣柜在靠近床头下面一处,延伸出来作为写字台或者床头柜使用,可以在上面写字之外还可以摆放收纳使用;让空间不凌乱,还节省了空间的利用率。
The children's roomm
儿童房2
轻奢风的卧室设计在颜色上是很讲究的,所以选的是比较粉的色彩来设计整个房间,床头的背景做的是可以亮灯的皇冠型蚊帐,可以在睡觉的时候防蚊子、隐私,同时还可以做到美观,也照亮了整个浪漫的空间。
嵌入式的定制白色+金色线条的衣柜,满足了衣物的收纳,还在柜子的另一侧做了开放式的柜子设计,可以放下装饰品或者物品的存放。利用柜子的延申出来的一处作为梳妆台和写字台的使用,让小女孩的公主梦在这里完美的演绎,使浪漫充斥着整个空间,为公主们留下一个甜美的童年生活。
TBathroom
卫生间
洗漱区是做了往外移的设计,让干湿分离的彻底。用拖拉门把马桶与沐浴区隔离在里面,洗漱区的镜子里面是设计有收纳区的,在外面也是有开放式的置物架,可摆放洗漱用品,让台面干净伶俐。
为了更好的做到补光方面,在镜子的上方加了灯带设计,方便女业主或者到访客人补妆的一个照亮,不仅颜值高,还很实用呢。悬挂式的柜子可以满足卫生间的物品收纳的需求,让空间不凌乱,也方便无死角清洁,很Nice呀!
轩怡集团成立于1998年,是中国大家居产业50强企业。集设计、施工、材料、家具配饰为一体的综合服务型集团家装公司,并且拥有完善的独立质检和终身售后服务体系。
经过二十余年的发展,轩怡集团实现轩怡家装、蜗窝家整装、一米到家三个品牌体系的搭建,明确了整装、旧房局改、精装房改造的运营模式。
以匠心守初心,不断创新求变。客户满意是我们最大的幸福!

