MING JIANG DECORATE
原木色和轻盈风的家
就像是打了一层薄薄的底
营造出自然而生动的裸妆感
熙泰四期136㎡
专案地址:广东·潮州
主案设计:周靖
户型风格:现代风格
主要材料:木饰面 大理石 瓷砖 护墙板
主要色调:白色 灰色 原木色
设计公司:名匠装饰·潮州分公司
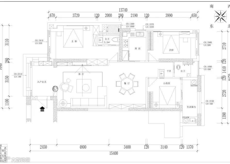
户型图 & 设计师
01
` 客厅 ` Parlour `
MING JIANG DECORATE
` 纯白色的电视柜以原木作点缀,木栅格饰面和镂空矮柜打破单调,简约闲适、更加耐看
` 棉麻布艺沙发将自然气氛拉满,挂画和整体配色呼应。与众不同的弧形护墙板,使空间在视觉上更加柔和
` 阳台柜集美貌和功能于一身,几何拼接的设计感,可见细节的用心
02
` 餐厅 ` Dining Room `
MING JIANG DECORATE
` 奶咖色的餐厅,暖色调提升食欲;大理石背板增加质感,对称的柜体更显稳重
最大限度地留白,让家更通透 `
03
` 主卧 ` Host Bedroom `
MING JIANG DECORATE
` 朴素的色调,惬意的光线,恰到好处的藏灯
` 飘窗柜和吊柜连接梳妆台,模块化的柜体组合,美观而有序
04
` 次卧 ` Second Lie `
MING JIANG DECORATE
` 装饰性点到即止,整洁大气,品质感不止提升一个等级
` 梳妆台也是床头柜,悬空于飘窗的设计理念,节约空间
` 床头柜和衣柜之间的拼接,柜子错开的间色,创意十足
轻奢华的流金岁月 | 金域澜岸164㎡
大美为美,诗意栖居 | 浮洋自建房280㎡
重品质,轻奢华的流金岁月 | 金域澜岸二期164㎡
无需浓墨重彩,自在简约享受 | 海博一品140㎡
世间至美,莫过极简|海逸一号260㎡

原木禅居,自然养心之境|嘉信华府3栋184㎡
暖系大地棕,藏一段温润岁月在心头|熙泰四期171㎡
日系原木,享受温暖惬意慢生活|锦绣家园
玩味潮酷,解锁个性范儿|海博熙泰156㎡
山水墨韵,悦见悠然新中式|海博熙泰257㎡
中式禅居,亦简亦轻|金域澜岸155㎡
抖音搜索 “潮州市名匠装饰”
码上关注 “潮州名匠装饰”
【联系我们|CONTACT US】
名匠装饰|潮州分公司
潮州大道南端海悦名庭3号铺面名匠装饰
尊享热线:0768-2300883
名匠装饰|饶平分公司
饶平南信华府南大门22-23号店铺
尊享热线:0768-7502181
名匠装饰|潮安公司
潮安区庵埠镇金里路名匠装饰
尊享热线:0768-5881949
名匠装饰|诏安名匠分公司
诏安县玉峰路198号(县政府右侧)
尊享热线:0596-3332038















