刚柔并济的现代风,倾注热情的设计感
卡布奇诺般——奶咖色主调的现代风格家
MING JIANG DECORATE
嘉信华府159㎡
专案地址:广东·潮州
主案设计:周靖
户型风格:现代风格
主要材料:木饰面 大理石 瓷砖 护墙板
主要色调:白色 奶咖色 木色 灰色
设计公司:名匠装饰·潮州分公司
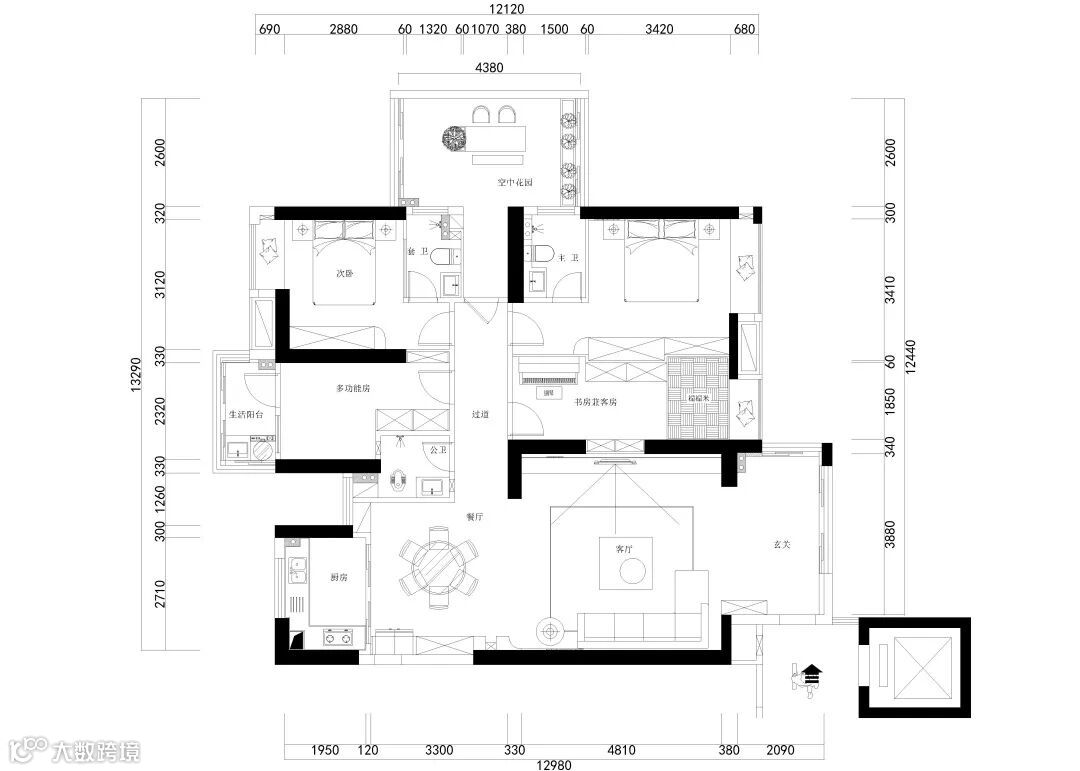
户型图&设计师
01
客 厅 - Parlour
简约的几何形,细腻的纹路,舒适的布艺,咖啡奶白色调,犹如一杯卡布奇诺,层次丰富
设计感十足的灯具,艺术味很浓的挂画,用美好点缀生活
浅咖色的左入户柜和右阳台柜,南北通透的户型采光充足,给人窗明几净的视觉享受
02
餐 厅 - Dining Room
奶茶般甜甜的餐厅配色,看着就让人食欲倍增。备餐台结合酒杯架,生活品质尽显
装饰品的风格和家具也是高度统一的。餐厅用天花造型镶嵌灯带,无主灯设计让光线更加匀称柔和
03
主 卧 - Host Bedroom
主卧套房的卫生间用落地玻璃窗,包头床屏,皮革质感,每一处设计都是满满五星级酒店等级
04
次 卧 - Second Lie
弱化装饰把功能放大,重心是睡眠工具,把钱花在刀刃上,让睡一觉看着就很舒服
05
榻榻米 - Tatami
榻榻米房集齐了休息、娱乐、办公、学习、收纳等众多功能,真正做到,房间虽小五脏俱全
轻奢华的流金岁月 | 金域澜岸164㎡
大美为美,诗意栖居 | 浮洋自建房280㎡
重品质,轻奢华的流金岁月 | 金域澜岸二期164㎡
无需浓墨重彩,自在简约享受 | 海博一品140㎡
世间至美,莫过极简|海逸一号260㎡

原木禅居,自然养心之境|嘉信华府3栋184㎡
暖系大地棕,藏一段温润岁月在心头|熙泰四期171㎡
日系原木,享受温暖惬意慢生活|锦绣家园
玩味潮酷,解锁个性范儿|海博熙泰156㎡
山水墨韵,悦见悠然新中式|海博熙泰257㎡
中式禅居,亦简亦轻|金域澜岸155㎡
抖音搜索 “潮州市名匠装饰”
码上关注 “潮州名匠装饰”
【联系我们|CONTACT US】
名匠装饰|潮州分公司
潮州大道南端海悦名庭3号铺面名匠装饰
尊享热线:0768-2300883
名匠装饰|饶平分公司
饶平南信华府南大门22-23号店铺
尊享热线:0768-7502181
名匠装饰|潮安公司
潮安区庵埠镇金里路名匠装饰
尊享热线:0768-5881949
名匠装饰|诏安名匠分公司
诏安县玉峰路198号(县政府右侧)
尊享热线:0596-3332038
















