凯文装饰全心全意服务好每一个客户,我们一定全力以赴、为您打造一个舒心满意的家!
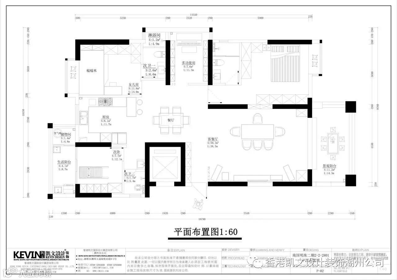
项目地址:南国明珠
项目户型:4室2厅、2卫1厨 (170 ㎡)
项目风格:台式风格
设 计 师:林晓娟
项目监理:朱正伟

主筆設計師:林曉娟
設計理念:LESS IS MORE.
從業年限:8年
畢業院校:吉首大學 本科專業:LANDSCAPE DESIGN
獲得榮譽:中國裝飾協會會員;IFDA註冊中級室內設計師






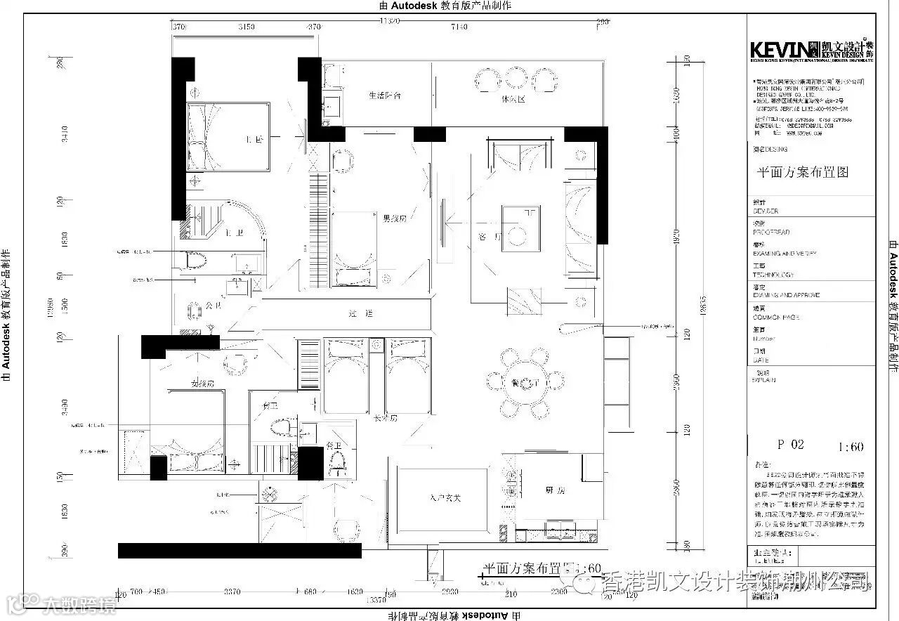
项目地址:兴业花园
项目户型:3室2厅,2卫1厨 (111㎡)
项目风格:现代风格
设 计 师:储 娟
项目监理:黎宗健

主筆設計師:儲 娟
設計理念:設計的核心是一種創造,行為設計要求新、求異、求變、求不同,否則設計將不能稱之為設計。
從業年限:7年
獲得榮譽:CIDA中國室內設計師協會高級設計師;協會高級設計師








项目地址:海博熙泰
项目户型:4室2厅,3卫1厨 (160㎡)
项目风格:现在中式风格
设 计 师:刘诗婷
项目监理:朱正伟

主筆設計師:劉詩婷
設計理念:把設計源於生活,把生活過精緻,把設計做細緻
從業年限:6年
獲得榮譽:中國裝飾協會會員;IFDA註冊中級室內設計師







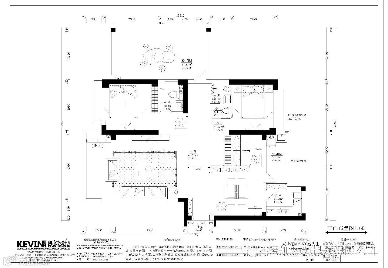
项目地址:兴业花园
项目户型:3室2厅,3卫1厨 (143㎡)
项目风格:现代简欧风格
设 计 师:刘诗婷
项目监理:储江龙

主筆設計師:劉詩婷
設計理念:把設計源於生活,把生活過精緻,把設計做細緻
從業年限:6年
獲得榮譽:中國裝飾協會會員;IFDA註冊中級室內設計師












点击阅读原文
查阅更多精彩

