

家,总是如此温馨而美妙的词汇
奢华,富丽堂皇似乎还是跟它有较远的距离
反之,恬淡,雅致更能概括
“家”的含义
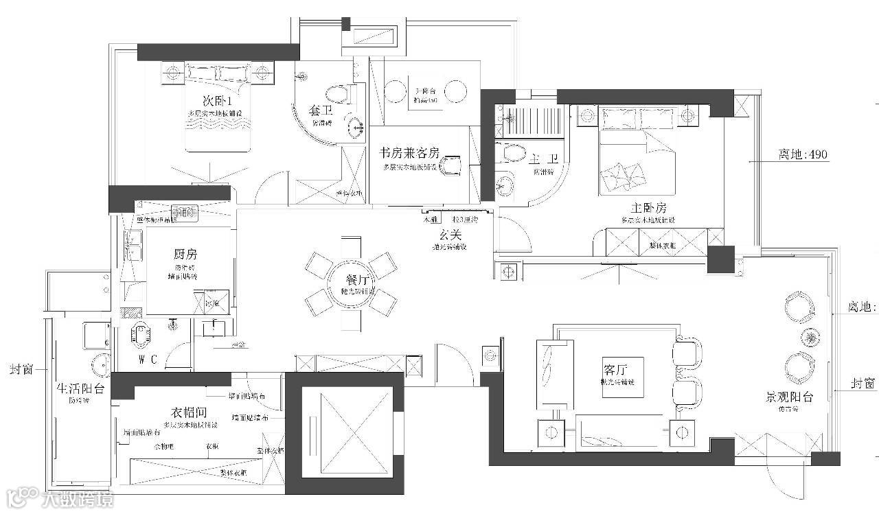
案例简介
楼盘--海博熙泰
面积--165㎡
风格--新中式

居住需求:一对夫妻+儿子夫妇+客房
本案亮点:存储空间强大,布局精巧,空间功能多样
设计师

客厅
LIVING ROOM

吊顶选用乳白色增添香槟色的线条
沙发背景墙及防盗门柜采用大面积的浅原木色
搭配巧克力皮质沙发,原木与沙发质感完美融合
使整体空间更为宽阔,明亮

各种玉石彰显业主气质
绿植环绕,点缀暖暖绿意
使整个空间更为温馨

餐厅
Drining Room

通体乳白的配餐柜
大大小小的柜格错落有致
满足日常的摆放需求


小小的玉壶与植物点亮了餐厅的气氛
增添进餐的食欲

配餐柜的左侧是用合页柜门,隐藏了裸露的电箱
增添了一份美观

主卧
Bedroom

主卧是业主夫妇住的
典型的潮州人,讲究简约简单
因而,摆放上古典的新中式床
床头背景墙只贴上淡淡美妙花纹的墙纸
简单而又淡雅



主卫的洗手台与置物柜为一体
方便又实用,
柜角不是单纯的直角而是采用转角,
显得人性化又安全

浴室也可摆放一盆绿植
既起到装饰作用又能愉悦心情

书房兼卧室
Studyroom

书房是学习,放松的地方
因此,淡雅的高级灰是该房间的主色调
书桌上方的书柜门用推拉的方式
实用防尘,防止拉开撞到头,安全

榻榻米兼具多种功能
升降台可与三两好友闲坐喝茶休闲
也可做床铺,供客人休息
更兼具强大的储物功能
卧室
Bedroom2

橄榄绿的墙面清新怡人
飘窗舒适,面朝宽阔江景


转角衣柜充分利用剩余空间,
大方实用


衣帽间
Cloakroom

专门的衣帽间宽阔敞亮
整面的柜子满足业主全家人的
衣服储存需求
简洁的米白与木纹组成了奇特的衣柜


衣柜的奇特在于还兼具折叠床功能
将柜面轻松拉伸下来瞬间变身客房
随时可以招呼客人住宿
设计师将实用与美观及多功能空间贯穿全屋
非常人性化

简单,富足,淡雅的家
大抵就是如此吧

点击阅读原文
急速预约设计师
—— 做装修,找星艺 ——
星艺装饰潮州公司
>>潮州总部<<
地址:广梅汕大厦裙楼3楼(潮枫路与潮州大道交界处海博集团左侧)
电话:0768-2222666
>>庵埠分部<<
地址:潮安县庵埠镇潮汕公路妇幼保健院对面
电话:0768-5810792
>>饶平分部<<
地址:饶平大道海博现代城铺面(假日酒店正对面)
电话:0768-7817878
关注我们
了解更多家装优惠信息


