

现代的中式家装设计在大家的印象中是不是还是处于红木家私,各种实木线条堆砌出来的中式装修风格中呢?本案中的“新中式”可是会一甩您之前的中式装修风格印象,打破您对以往的中式风格印象~爱上这种简洁明朗,大方美观又符合现代人审美观的“新中式”哦!

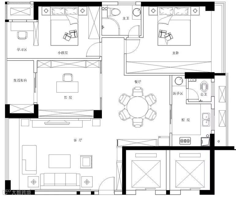
平面方案图
这套样品房一经开放很快就被一户业主买走了
好设计、好施工品质不等人!
让我们一起来看看这套新中式到底是怎么样的吧~

清墨韵香
案例地址:熙泰样品房设计
案例面积:120㎡、三房两厅
设计风格:新中式

客厅

以阴阳平衡概念调和室内生态。选用天然装饰材料,运用五行组合规律来营造禅宗式的理性和宁静环境。


餐厅

新中式风格的家具多以深色为主,墙面色彩搭配:一是以苏州园林和京城民宅的黑、白、灰色为基调;二是在黑、白、灰基础上以红、黄、蓝、等作为局部色彩。

书房
新中式风格非常讲究空间的层次感,依据住宅使用人数和私密程度的不同,需要做出分隔的功能性空间,一般采用“哑口”或简约化的“博古架”来区分;


主卧

采用简洁硬朗的直线条,不仅反映出现代人追求简单生活的居住要求,更迎合了中式家具追求内敛、质朴的设计风格,使“新中式”更加实用、更富现代感。


次卧

在需要隔绝视线的地方,则使用中式的屏风或窗棂,通过这种新的分隔方式,就能展现出中式家居的层次之美。

本案设计师


刘晓敏
星艺高端设计师

快让你的家也装修出这种神奇效果吧!
点击链接了解最新活动内容
—— 做装修,找星艺 ——
星艺装饰潮州公司
>>潮州总部<<
地址:广梅汕大厦裙楼3楼(潮枫路与潮州大道交界处海博集团左侧)
电话:0768-2222666
>>庵埠分部<<
地址:潮安县庵埠镇潮汕公路妇幼保健院对面
电话:0768-5810792
>>饶平分部<<
地址:饶平大道海博现代城铺面(假日酒店正对面)
电话:0768-7817878
关注我们
了解更多家装优惠信息


