
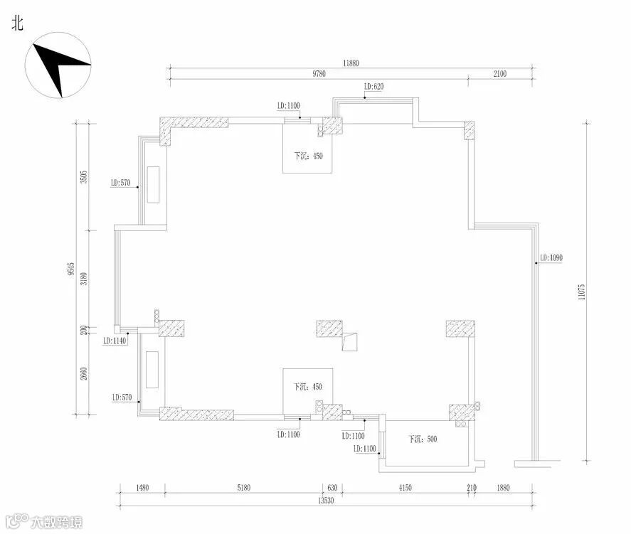
户型对应房号:5和8号房
户型面积:148㎡

和谐雅筑5、8号房型
户型分析:
本户型面积为148㎡,户型整体进深跟面宽比例适合,采光充足,有一个较大面积的入户花园。可做三房一厅三卫(但一般建议两卫即可满足日常所需)。适合一家三口居住,如三代同堂也适用。
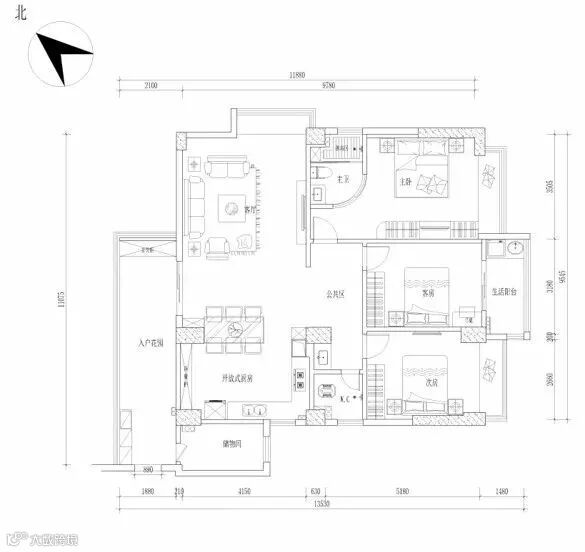
方案 1
(并非设计方案)

和谐雅筑5号房型
优点:
本方案将该户型的动静区划分开来,避免了动静线交错造成不便;
房间规划了三间,满足了日常居住的人口需求;
入户花园较深,入户处做了一个鞋柜,方便进出门换鞋,入户花园尽头做了一个玄关柜,将玄关与入户花园合并,形成入门即是景;
入户花园右侧区域规划了一个储物间,有足够的储物空间;
开放式的厨房与客厅相通,扩大了空间的视觉效果,也能增加区域互动性。
遗憾:
方案中规划的储物间为原公卫位置,如需要做储物间,需将原公卫填平,增加了一些开支;
生活阳台如要使用需经过客房,如果平时客房有常住人口会造成一些不便。
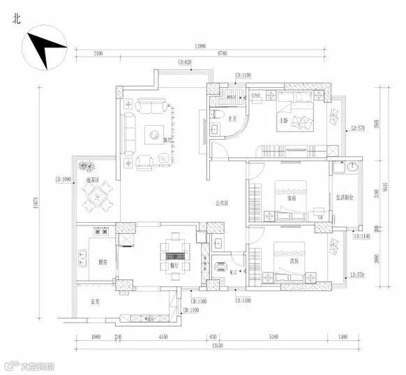
方案 2
(并非设计方案)

和谐雅筑5号房型
优点:
本方案将该户型的动静区划分开来,避免了动静线交错造成不便;
房间规划了三间,满足了日常居住的人口需求;
将原本较长的入户花园隔开,做成了玄关、厨房、泡茶区,扩大空间利用率;
玄关右侧做了个简单的鞋柜可供出入门放置鞋子等物品,避免空间浪费;
增加了一个独立的泡茶区,即可观景又有了独立的休闲区域。
遗憾:
方案中规划的玄关入门区为原公卫位置,如需要划分需将原公卫填平,增加了一些开支;
厨房空间相对较小,餐厅通往客厅的一面墙可去掉,使整个空间更为通透。
你对这个户型的平面布置还有什么建议吗?
欢迎留言讨论喔~
找不到你的户型?看下一篇文章介绍吧!
也可留言你想了解的楼盘户型,我们将会根据留言楼盘的情况考虑出一期该楼盘的户型分析专题。
如没有谈及到的户型也可参与12月8日晚《现场户型进行免费解析》
报名12.8 +姓氏+手机号
如:报名12.8+林先生+135xxxxx051
即可参与12月8日晚《现场户型进行免费解析》活动

点击“阅读原文”预约您的设计师
设计团队 Designer Team


星艺装饰潮州公司
潮州总部
地址:广梅汕大厦裙楼3楼(潮枫路与潮州大道交界处海博集团左侧)
电话:0768-2222666
庵埠分部
地址:潮安县庵埠镇潮汕公路妇幼保健院对面
电话:0768-5810792
饶平分部
地址:饶平大道海博现代城铺面(假日酒店正对面)
电话:0768-7817878

