CCTV央视上榜品牌 | 中国室内设计百强企业
CCTV Brand Listed | Top 100 Interior Design Enterprises in China
现代简约风格
KEVIN
KEVIN
Everything comes from love
现代简约是一种追求简约而不简单的态度
本案追求极致的简单,木的温润,色调的纯净
空间愈发通透明朗
凝练出一个让人尽情舒展自我宽阔的场域
01
客厅
LIVING ROOM
"
我们注重光线与色彩的搭配
光线充足的房间让人感到明亮、开阔
让人感到舒适
简洁有力
静默无声
02
餐厅
RESTAURANT
"
简约而浪漫包容一切的爱意
温润质感为柔和的线条
勾勒出优雅的空间格调
沉静纯粹
简约质感
03
卧室
BED ROOM
"
细腻的质感,简约的线条
自然的元素的美学特点
让人感到舒适和温馨
营造出一种亲密和轻松的氛围
低调的奢华
优雅的品味
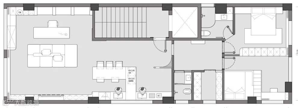
平面布置图
▽
项目楼盘 | 磷溪自建房
项目户型 | 152平方
设计风格 | 现代简约风格
本案设计师
储 娟
从业经验 /10年
擅长风格
新中式 现代 北欧
代表作品
华侨城、海博熙泰、富宏天誉、
海逸一号、海博一品、嘉信华府
设计理念
做一个有温度的设计
给您一个舒适温暖
设计团队
设计荣誉
_
中国室内设计师百名风云人物;
中国十佳住宅设计师;
中国室内设计二十年全国表彰大会中国室内设计精英人物奖;
网易最具爱心设计师人物、最具爱心设计师奖;
金羊·新锐杯珠三角室内设计锦标赛十佳设计师;
广州国际设计周“为中国设计发声”中国代表人物;
中国杰出中青年室内建筑师;
“当代艺术家”荣誉称号;
IDA国际建筑与室内空间设计大赛室内建筑类别最佳荣誉奖;
中国室内设计大赛三等奖;
第五届中国室内设计双年展家具空间入围奖;
第六届中国室内设计双年展商业空间优秀奖;
广东佛山雅居乐花园“心湖湾畔”样板户型设计大赛设计金奖;
广东佛山卫浴设计大赛三十强;
《南方都市报》2005年佛山家居装饰设计大赛最佳创意奖;
“简一杯”中国别墅、酒店精英邀请大赛别墅设计类佳作奖;
“欧神诺杯”陶瓷设计应用、款式花色大奖赛最佳空间应用奖;
“家天下杯”室内设计大赛最佳豪宅设计奖;
中国照明应用设计大赛广州赛区商业空间最佳作品奖;
国际室内装饰设计协会IFDA家庭装饰服务中心;
香港室内建筑师协会家居设计及室内建筑装潢综合技术5A级;
……
CONTACT US
扫码关注 预约设计师
更多精彩请关注
▽
本文章最终版权归原作者及其公司所有
凯文设计 凤凰雅居 I 光影之美
凯文设计 海博熙泰 | 雅致诗意
凯文设计 海逸一号 | 深邃博大
凯文设计 滨江华府 | 慵懒典雅





