

设计说明
design notes
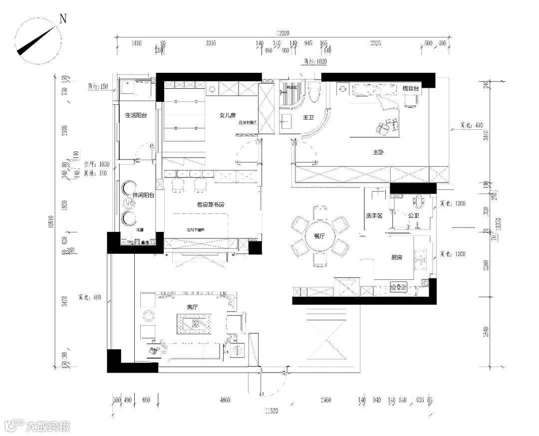
设计说明:本案例建筑面积为135平方米,业主需求2个卧室和一个多功能房,由于长辈偶尔来住,所以长辈房也兼顾着多书房与客房的功能。专门定制一个下翻床,不住的时候收起来,和展示柜融为一体,变成宽敞的书房。餐厅做开放式厨房保证餐厅空间感好。业主不希望在餐厅看到公卫门,所以整体掩藏到里面去,使其更加美观。整体现代设计,采用点线面空间的呈现现代风格的律动。

▼玄关Entrance-Hall

▼客厅Living-Room


黑白布艺沙发沉稳大方
大理石贴砖使空间明亮且不觉乏陈
金调摩登感立式灯具
黑透玻璃台灯为整体添加现代感
黑与金的结合,白与灰的搭配,大方高贵
▼餐厅Dining-Room


方圆交汇,低调优雅
用餐区域天花板以圆形吊顶&圆形桌面遥相呼应
使整个用餐区看起来显得井井有条
▼主卧Bed-Room

浅棕与白的连接
圆形床头灯明亮舒适
空置的飘窗有更好的观景
轻声呢喃,自有一番小天地
▼次卧Bed-Room

粉白少女心的女儿房
金色圆柱金属线花瓶&绿植
为房间增添勃勃生机
各种储物增强房间实用性




