

| 把万般热爱融于生活,是设计里最有趣的事。 |
关于空间
ABOUT SPACE
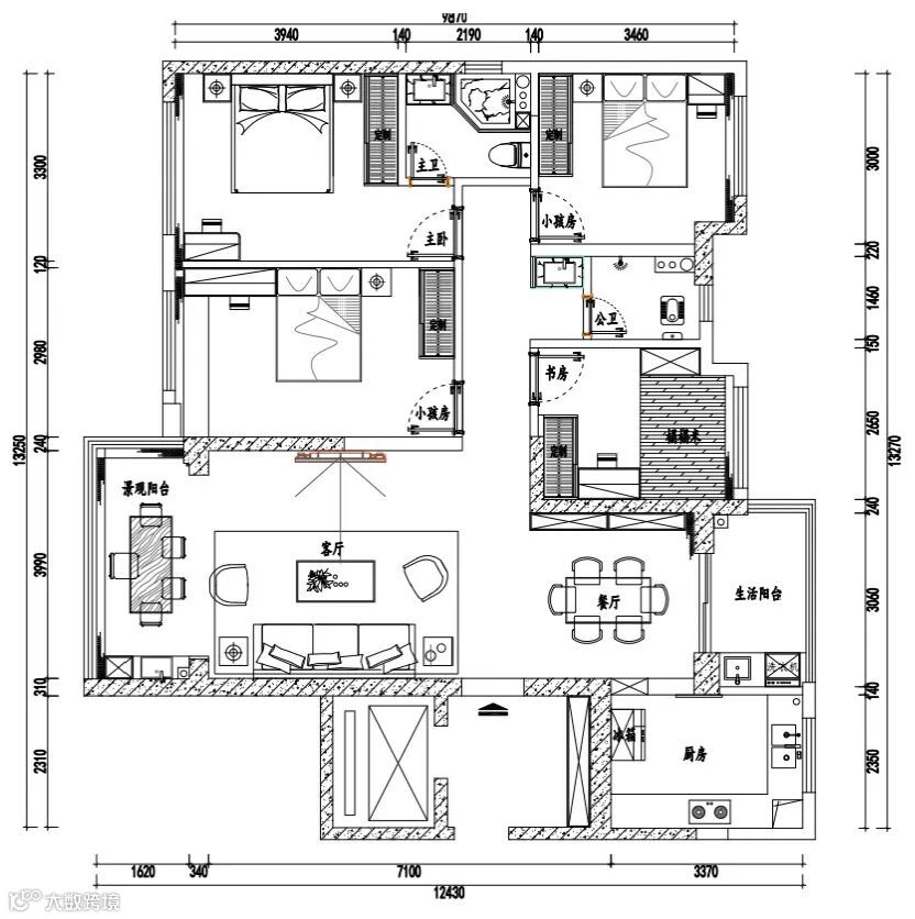
项目名称丨龙光御水岸
项目面积丨140㎡
设计风格丨简约
主要材料| 艺术漆、岩板、硬包、线条灯
设计施工机构丨潮州市星艺装饰工程有限公司

关于设计
ABOUT DESIGN
生活细节的考究与思考,每个家各有不同
简单、舒适、低调的“简约风”概括对家装最大的诉求
只有化繁为简
才能拥有安适的心境与生活
01
—客厅
LIVING ROOM

入户第一眼即是简洁大方,大量运用浅色系来提升亮度,让空间多了一些温馨和治愈,空间纵横交错出来的层次感营造出静谧优雅的氛围。

客厅是家居空间的焦点,身处客厅自然光线与功能并然有序的巧妙结合,自在从容,让生活与时间慢下来;摒弃了传统的沙发背景墙,转用艺术漆,家居艺术感油然而生,让空间更具温雅艺术。
02
—餐厅
RESTUARANT

在满足日常功能需求外,每一件物品的装饰都恰到好处,呼应色彩搭配,延续客厅采用的材质肌理在餐厅位置带来不一样的感觉,提亮整个空间格调。
03
—主卧
MASTER BEDROOM

灵感伴随着光而生,别出心裁的床头照明装置,不仅多了一种装置艺术的美感,也为空间增加了适用性和趣味性,每一个摆件,每一幅挂画,看似简单的设计,更多是为了营造生活品质功能。
图文编辑 I 陈莉莉
Graphic editing I Lily Chen
往期精彩案例回顾
【星作】海博熙泰一期298m²|繁华阅尽·品味优雅本色
【星作】宏天广场243m²|感受生活的厚度与深意
【星作】兴业家园140m²|现代北欧·回归简单纯粹的生活
【星作】金域澜岸156m²|遇见你·不负韶华
【星作】韩东府232m²|光和独白
【星作】紫莲山庄200m²|美式,不仅是风格更是生活
【星作】庵埠碧桂园192m²|空间与光的对话
【星作】海博熙泰138m²|引光入室·家与艺术融合
| 关于星艺装饰 |
ABOUT XINGYI DECORATION










