
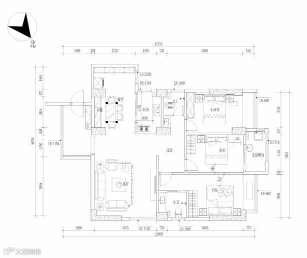
户型对应房号:6和7号房
户型面积:126㎡
和谐雅筑6、7号房型
户型分析:
本户型面积为126㎡,户型整体进深跟面宽比例适合,采光充足,有入户阳台及生活阳台。可做三房一厅两卫,适合一家三口居住。
方案 1
(并非设计方案)

和谐雅筑6号房型
优点:
本方案将该户型的动静区划分开来,避免了动静线交错造成不便;
房间规划了三间,满足了日常居住的人口需求;
餐厅做了卡座加移动座位,满足了少人与多人用餐的需求,提高空间利用率;
小孩房设置了衣帽间,扩大衣物储存空间。
遗憾:
入户阳台尽头可做一个简易的玄关,增加整体感;入户门后鞋柜位置的墙体可外移约160cm,可扩大餐厅的空间;
厨房空间相对较小,可考虑做成开放式厨房,扩大空间视觉效果;
小孩房的衣帽间可考虑一分为二,单独做衣柜,增加了两间房的衣物储存空间。
方案 2
(并非设计方案)

和谐雅筑6号房型
优点:
本方案将该户型的动静区划分开来,避免了动静线交错造成不便;
三房三卫,充足满足了日常居住的人口需求,主卫斜向开口,避免入门即为卫生间门的尴尬,利用次房的一部分区域作为衣帽间,扩大衣物储存空间;
次房使用了榻榻米,将该房作为多功能房,增加了储物空间。
遗憾:
公卫的洗手区可去除,将公卫门开在原本规划的洗手区,原电视背景墙后方墙面可以做一个储物柜,储纳洗浴用品等。
你对这个户型的平面布置还有什么建议吗?
欢迎留言讨论喔~
找不到你的户型?欢迎投稿补充您的户型图!
也可留言你想了解的楼盘户型,我们将会根据留言楼盘的情况考虑出一期该楼盘的户型分析专题。
如没有谈及到的户型也可参与12月8日晚《现场户型进行免费解析》
报名12.8 +姓氏+手机号
如:报名12.8+林先生+135xxxxx051
即可参与12月8日晚《现场户型进行免费解析》活动

点击“阅读原文”预约您的设计师
设计团队 Designer Team


星艺装饰潮州公司
潮州总部
地址:广梅汕大厦裙楼3楼(潮枫路与潮州大道交界处海博集团左侧)
电话:0768-2222666
庵埠分部
地址:潮安县庵埠镇潮汕公路妇幼保健院对面
电话:0768-5810792
饶平分部
地址:饶平大道海博现代城铺面(假日酒店正对面)
电话:0768-7817878

