
上期【楼盘户型分析及预案平面布置图分析板块】我们分析了和谐雅筑楼盘。应广大业主的留言,本期我们开启裕和天地这一新楼盘解构。

(图片来源:视觉中国)
本板块主要为各未购买该楼盘或者即将装修的业主提供便利,帮助他们提前了解该楼盘户型的大致情况,也可给即将装修的该楼盘业主提供多种平面布置方案,提前规划您的爱家。
本期我们分析的楼盘为正在逐渐封顶工作的裕和天地楼盘,共有12栋,分为5个户型,
全部户型面积为145—313㎡。

(图片来源:裕和天地)
今天我们就来分析里面的两大户型:A户型(253㎡复式四房三厅四卫)、E户型(313㎡复式五房三厅四卫)。其他户型暂时不予分析,想了解其他户型的业主可在下方报名参加▼
【12.8晚潮州星艺&DD互联网组团:2019新楼盘户型分析】

(最新建成现场图 | 图片来源:裕和天地)
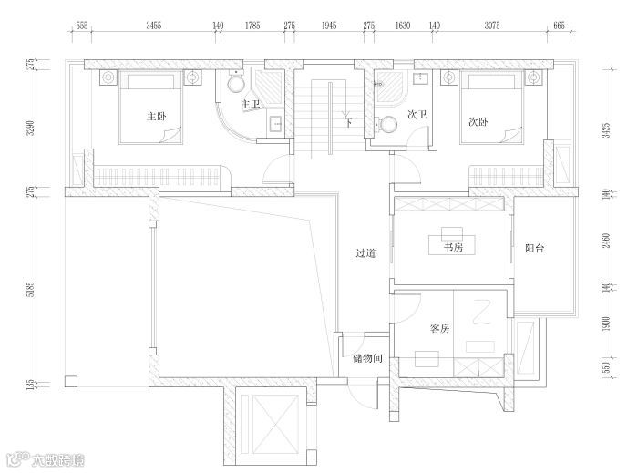
对应楼栋:1、2、3、4栋
户型面积:253㎡


户型分析:
本户型为上下两层复式楼,户型较为方正平整。整体户型设置考虑偏向于传统的潮州设计风格,即前厅后房。入门即有一个前厅可设置玄关,客厅、餐厅分布两侧,前厅后面为主人住房。动静分区分布合理,互不干扰。坐落在裕和天地楼盘的最前端,南北通透,采光较好。适合三代同堂居住或某些较高居住品质要求的人士居住。
裕和天地1、3栋户型

一层

二层
优点:
本方案基本没有改变原先的户型整体格局,遵从潮州人的居住习惯;
动静分区分明,将所有的娱乐休闲区域规划在一层。而人员居住,休憩均分布在一层的前厅后及二层区域;
餐厅做了开放式厨房,可增加家人朋友间的互动乐趣,扩大空间视觉效果;
原本户型设置为4房3厅,将其中的一厅改造为一个客房、一个书房外加一个储物间,变成6房2厅。极大地满足了居住人群数目,也适合让平时来做客的朋友及归来亲戚暂住;充分利用剩余空间将二层楼道尽头作为一个储物间,既不占据重要空间,又生成了一个可利用储存空间。
遗憾:
一些业主不大喜欢开放式厨房,害怕油污油烟过大,倾向于做成封闭式厨房。
对应楼栋:8栋
户型面积:313㎡


户型分析:
本户型亦为上下两层复式楼,五房三厅四卫。整体户型设置考虑偏向于传统的潮州设计风格,即前厅后房。入户即有一个超高型景观阳台,可尽览江东风光,娱乐休闲。客厅及餐厅的空间较大,较为舒适且大气。动静分区分布合理,互不干扰。南北通透,采光较好。适合四代同堂居住或某些较高居住品质要求的人士居住。
裕和天地8栋户型

一层

二层
优点:
本方案原本户型中的厨房挪动至生活阳台,将阳台一分为二,在一层楼梯口增设了一间客房,使上下两层均多出了两间房,最大化程度利用了生活阳台的空间,变成6房;
将二层的卫生间一分为二,使二层的主次卧均有卫生间;
二层泡茶区虽然变小,但是空间是较为合适的,一边泡茶一边赏景,自在惬意。
遗憾:
一些业主不大喜欢开放式厨房,害怕油污油烟过大,倾向于做成封闭式厨房。
本板块所分析户型图为楼盘售楼处所出图纸,户型尺寸不一定准确,以实际测量为准。
户型分析均从户型本身出发,基于最影响居住条件进行评价。
所出预案平面布置图不包含对户型的个性化需求(如健身区域)或更高期望(如大面积储物空间)。
★本板块分析内容仅作为参考,请结合自身需求,酌情自行多加考量★
潮州星艺装饰
你对这个户型的平面布置还有什么建议吗?
欢迎留言讨论喔~
也可留言你想了解的楼盘户型,我们将会根据留言楼盘的情况考虑出一期该楼盘的户型分析专题。

点击“阅读原文”预约您的设计师
设计团队 Designer Team


星艺装饰潮州公司
潮州总部
地址:广梅汕大厦裙楼3楼(潮枫路与潮州大道交界处海博集团左侧)
电话:0768-2222666
庵埠分部
地址:潮安县庵埠镇潮汕公路妇幼保健院对面
电话:0768-5810792
饶平分部
地址:饶平大道海博现代城铺面(假日酒店正对面)
电话:0768-7817878

