
每一段故事的诞生,都有一种“美”存在,我们与其邂逅,被其触动,心生涟漪,新的故事便随之诞生。
案例信息
项目地址:凤凰新城
建筑面积:140m²
户型:三室两厅
主要材料:大理石,瓷砖,实木墙板,不锈钢、轨道灯、木纹砖
设计机构:潮州市星艺装饰工程有限公司
施工机构:潮州市星艺装饰工程有限公司
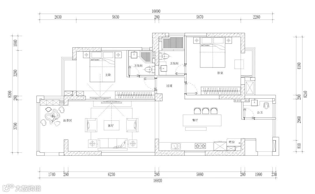
Layout plan
平面布置图

Design description
设计说明
家,作为人在社会化过程中的避风港,是绝大部分人的能量站与目的地,亦是各种情感尤其是爱浓度最强的地方。从生活本源出发,用心筑家,余生漫漫,爱有归期。设计师通过深挖居住者的对生活的需求,探索空间之间的关系,围绕温暖与舒适,自然与现代的方式来表达。利用开放式设计放大整体格局,通过色彩的搭配、材质的交映,让整个空间流露出自然舒适的空间属性。
Home, as a safe haven in the process of socialization, is the energy station and destination of most people. It is also the place with the strongest concentration of all kinds of emotions, especially love. Starting from the origin of life and building a home with heart, the rest of life is long and love has a return date. Designers explore the relationship between space by digging into the needs of residents for life, and express it in a warm and comfortable, natural and modern way. Use the open design to enlarge the overall pattern, and let the whole space reveal the natural and comfortable spatial attribute through the matching of colors and the reflection of materials.
PART.1 客厅
living room·温软时光
觅得浮生半日闲

以“现代质感”为主题,用实用主义美学的艺术语言,从整体软装的色形质角度出发,串联业主最核心的居住需求,建立起物品、人与空间的感情,让室内的装饰与家具,与居者产生心灵的共鸣,注重形式、颜色、材料、纹理和高度,在视觉上给人一种时尚温馨的体验,不断生活方式中汲取灵感,采用个性和优雅的方式设计,让人感受明亮、温馨的空间。

舒适的生活必定离不开视觉的享受,没有杂乱的装饰,一本藏书,一盆绿植,简单的艺术摆件,把整个空间的感觉变得柔美舒适,大理石的电视背景墙,让空间显得低调沉稳,突出优雅气质。
PART.2 餐厅
dining room·时光暖暖

餐厅酒柜使用灯带搭配咖色玻璃门板,通透的质感中窥见高级的格调,整体布置简洁而优雅,深色台面的餐桌,搭配绿、橘两种跳脱颜色的餐椅、备餐柜石材纯天然的肌理,每个角落都让空间显得高级档次而有层次感。
PART.3 主卧
master bedroom·沐光之晨

简约精致的造型墙搭配暖色的灯光,光源延伸将整个床头都包裹在其中,营造出舒适安心的睡眠氛围,张弛有度的空间,被色彩和质感驯服得尤为松弛与静谧,日后酷暑与寒冬,春花和秋月,身心都在这里得到休憩。
PART.4 次卧
secondary recumbent·木色记忆
选材的质感、肌理,或是细微到触摸的感受,仿若本体生长在空间,化繁为简,直击本真,温润木质作为基底,整体空间由木色传递纯净气息,美好的家不仅限于可见的形式,是身心融入室内的怡然与放松,时光不知不觉慢了下来,让我们细细品味、咀嚼。

日光透过窗幔散落在墙体和地板上,勾勒出次卧慵懒的时光,木色为主调,营造素雅恬静的氛围,将飘窗位置设计为书桌亦可作为小小办公区域,质感与舒适,艺术与温度,集纳于一室,生活的确幸皆藏于仪式感。
PART.5 卫生间
toilet·沐浴暖阳

卫生间以半开放式干湿分离,使用不影响光线的玻璃隔断,有效提高空间利用率;精致,这是整个设计中去重点强调的地方。材质、配色、工艺、家居处处可见精美,细节处去考究雅致。
图文编辑 I 陈莉莉
Graphic editing I Lily Chen
往期精彩案例回顾
【星作】康德广场250m²|艺术灵性,驾驭自由生活
【星作】海博熙泰140m²|梦与爱相伴,欢喜浪漫
【星作】碧桂园125m²|精装房里,连环放送的悠然生活剧
【星作】锦江花园197m²|诧寂风·寻味生活本真
【星作】碧桂园145m²|梦若琉璃·年华未央
【星作】金域澜岸140m²|夕枫语·如沐春风
【星作】金域澜岸·高级优雅白,舞出浪漫旋律
【星作】宏天广场 | 淳静中式·聆享雅律












