

对生活的态度,要求精致,但不铺张,自由格调,而不浮夸。
The attitude towards life requires refinement, but not extravagance, free style, and not exaggeration.
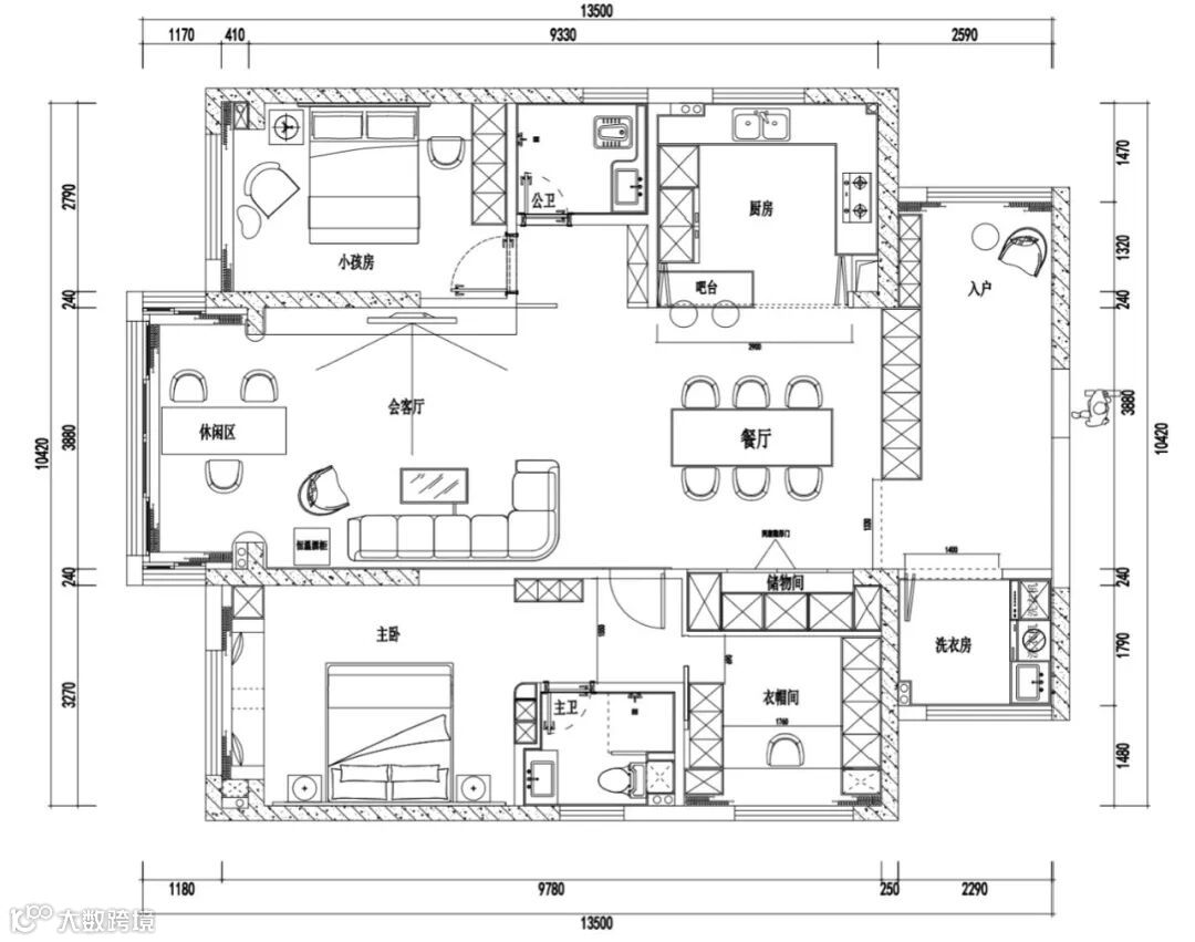
项目信息/project information
-Location-| 锦峰天地
-House Area-| 147㎡
-Design Style-| 现代
-Design and construction-| 潮州市星艺装饰工程有限公司

本案设计师通过简练、流畅而清晰的动线规划,在空间之外赋予更多的品位与内涵,创造了具有极高鉴赏性的艺术感染力,提升空间品质的同时,又包含着无限的空间延续,用材质、光影、色温等细节处理,内在回应着生活的真实和美好,设计由表及里,使功能与审美完美融合。

整体以空间的舒适性为出发点,将诗意、温暖、柔和加持为生活的底蕴,于向内探索的纯粹空间里,渗透若隐若现的脉络。The whole takes the comfort of space as the starting point, takes poetry, warmth and gentle blessing as the essence of life, and permeates the faint vein in the pure space explored inward.

生活其实是自己的,家是包容的,所有的热爱可以在家里找到呼应。动静结合,或是欢聚时和亲友们一起享乐时光,或是独处时爱好雅趣可以得到释放。In fact, life is our own, family is inclusive, and all our love can be found at home. The combination of movement and stillness, or enjoying time with relatives and friends during happy gatherings, or hobbies and interests can be released when alone.
在以现代设计感为主基调的基础上,增添了一些视觉对比的观感,采用布艺沙发搭配一株绿植,增加了客厅空间的居住体验。On the basis of modern design, some visual contrast is added. The fabric sofa is combined with a green plant to increase the living experience of the living room space.

从容有范的设计手笔,朴素而纯净的色调,洋溢着充足的生活气息,在悄然间撼动人心,引领居者谱写悠扬的旋律。The calm and stylish design, simple and pure colors, filled with sufficient breath of life, quietly shook people's hearts and led the residents to compose melodious melodies.
作为颜值担当的客厅,艺术为空间注入了灵魂,演绎一个微醺的艺术空间,用来装点精致生活,那是恣意的向往,也是格调的体现。As the living room of the beauty, art injects the soul into the space, deduces a slightly drunk art space, and is used to decorate the exquisite life, which is wanton yearning and the embodiment of style.

一日所谋,不过三餐温饱,一生所谋,不过爱与被爱。生活是晨起晨落,日子是柴米油盐,平淡与真实才是向往的追求。What you plan in a day is nothing more than three meals and clothing. What you plan in a life is nothing more than to love and be loved. Life is rising and falling in the morning, and the days are daily necessities. Plainness and truth are the pursuit of longing.

天然木地板渲染着柔和气氛,艺术漆墙面带来高级质感,吊灯与细腻床品营造舒适柔和的睡眠效果,将材质、色彩、光源巧妙融合,营造一种安静、舒适、惬意的空间氛围。Natural wood floors render a soft atmosphere, art paint walls bring high texture, chandeliers and delicate bedding create a comfortable and soft sleep effect, and skillfully integrate materials, colors and light sources to create a quiet, comfortable and pleasant space atmosphere.

阳光拂过,窗明几净,淡雅舒心,空间也瞬间变得温柔了许多,苏醒过来的美好心情就在一呼一吸之间开始变化、生长。When the sun blows, the window is bright and clean, elegant and comfortable, and the space becomes a lot softer in an instant. The good mood after waking up begins to change and grow between exhaling and inhaling.
最后的话
每一门艺术的表达,都趋向非再现,抽象和内在的结构,岁月青葱,愿生活对我们温柔以待,他是天使,同你我一样,活在这个大世界里,一直在努力,也始终做那童真的自己。
图文编辑 I 陈莉莉
Graphic editing I Lily Chen


