
2024
LIFE
STORY
请将「星艺」设为关注
不错过每一个生活故事
室内设计,是家居生活的变幻魔术
每一天都仿佛一场奇妙的表演
空间逐渐变得舒适
光线透过窗户洒在房间里
给人们带来一丝温馨和惬意
( 本期案例 )
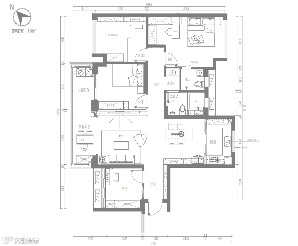
Plan layout

案例地址:龙光·阳光华府
案例面积:116㎡
案例风格:奶油
设计施工:潮州·星艺装饰
01玄关


家的布局和装饰
也是我们个性和品味的体现
每一件家具
每一件装饰品
都是我们对生活的热爱和追求

02客厅

内藏灯的弧形造型简约又不失设计感
还能为空间带来柔和而温暖的光线
格栅木的使用为客厅增添了质感
其独特的纹理与色调
与奶油风的柔和色调相得益彰
共同营造出一种温馨舒适的家居氛围
经过精心挑选的软装
确保着整个空间的和谐与统一



03餐厅

餐厅和客厅色调的统一
为整个家居空间营造出一种
和谐而统一的氛围
这种色调的统一
不仅让空间看起来更加宽敞明亮,
还能让空间更具整体感。
04卧室



这个美式主卧以柔和的奶油色调为主,搭配美式风格的家具和装饰品,营造出舒适、温馨、自然的睡眠环境。如果您想要一个充满温馨与舒适气息的卧室,不妨考虑一下美式奶油风卧室。
往期案例回顾
星艺装饰
设计幸福 为爱筑巢
关于我们
潮州总部
地址:广东省潮州市湘桥区海博集团首层16号星艺装饰(潮州大道)
电话:0768-2222666
潮安分部
地址:潮安区庵埠镇潮汕公路妇幼保健院对面
电话:0768-5810792
饶平分部
地址:饶平大道海博现代城铺面假日酒店正对面
电话:0768-7817878

微信号|czxingyizhuangshi
新浪微博|星艺装饰在潮州
抖音号|Cz_Xingyi
小红书|潮州A星艺装饰







