안녕하세요
방주인테리어입니다.
오늘은 저희가 2017년에 시공했던
君御府인테리어를
소개해드리겠습니다.
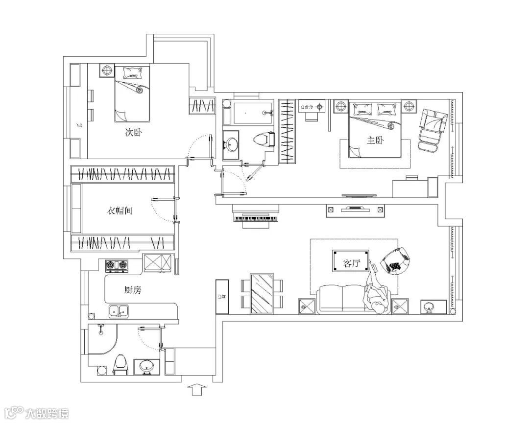
面积:135m²
项目地址:君钰付
完工时间:2017年3月
设计施工:BANGJOO方舟装饰

135평방의 三室一厅입니다.




거실에 피아노와 어항을 놓고싶다는것이
고객님이 거실에 대한 요구였습니다.
전체적으로 원목과 그레이 화이트의 조합으로
심플하면서도 내가 필요하고 사용하는 소품으로 인테리어를
완성하였습니다.
인테리어의 시작점도 고객님의 취향이고
마지막인테리어 소품하나도 고객님의 취향을 맞춰드리는것이
성공한 인테리어가 아닌가 싶습니다.

들어오는 현관에 신발장과 수납장을 설치하였고
悬空디자인에 灯带를 넣었습니다.
들어오자마자 은은한 불빛이 집의 분위기를 조성합니다.


거실에는 主灯을 사용하지않고
软膜天花로 분위기를 조성하였습니다.





실제로 인테리어 완공한 모습을 보여드리겠습니다.








내가 사는집 내가 원하는대로
스타일링하고 인테리어해보세요
상담 언제나 환영입니다.

联系方式
TEL:18804337760
联系地址
吉林省延吉市州建筑设计院2楼
方舟装饰


