
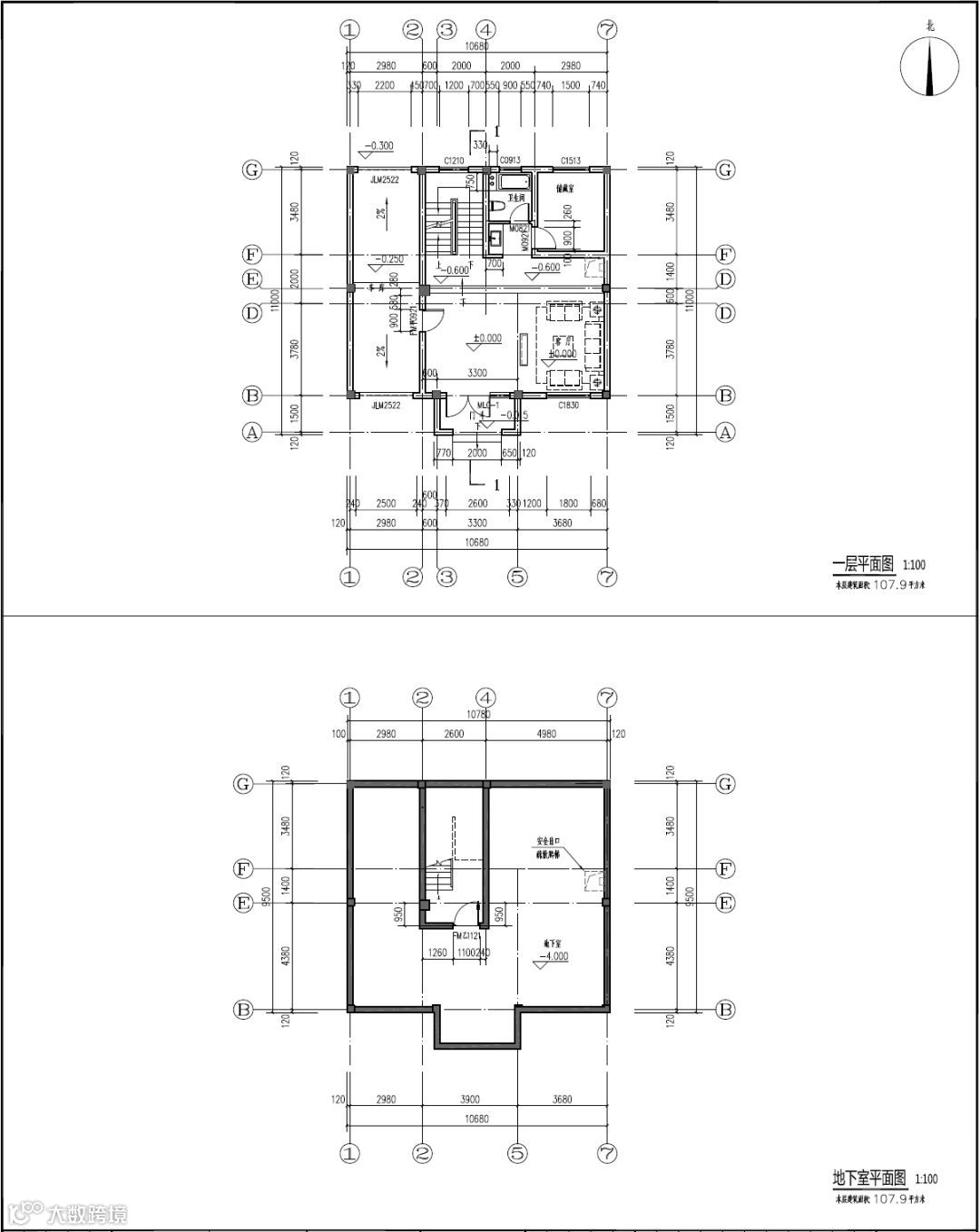
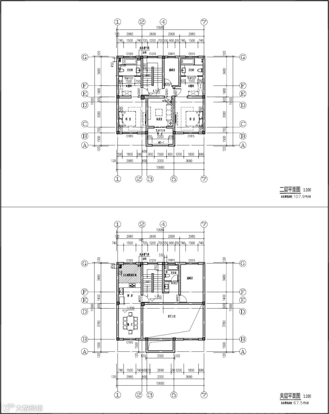
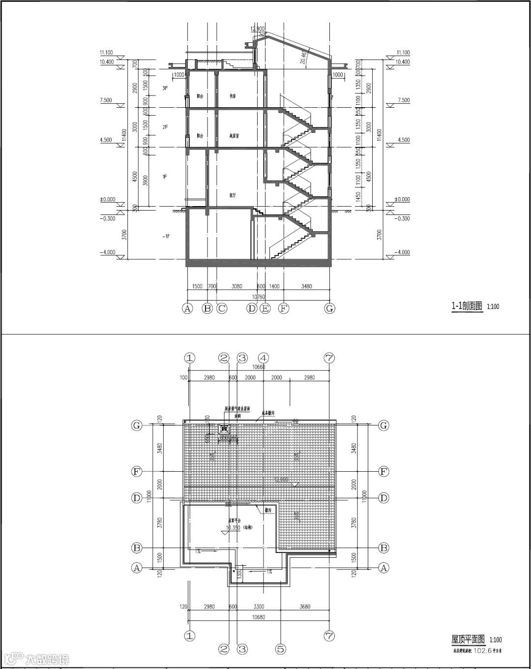
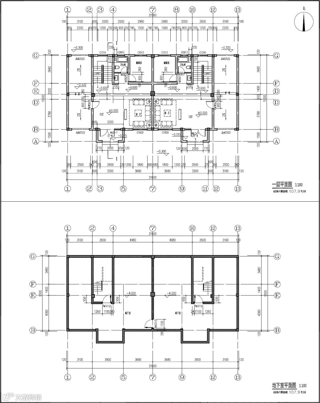
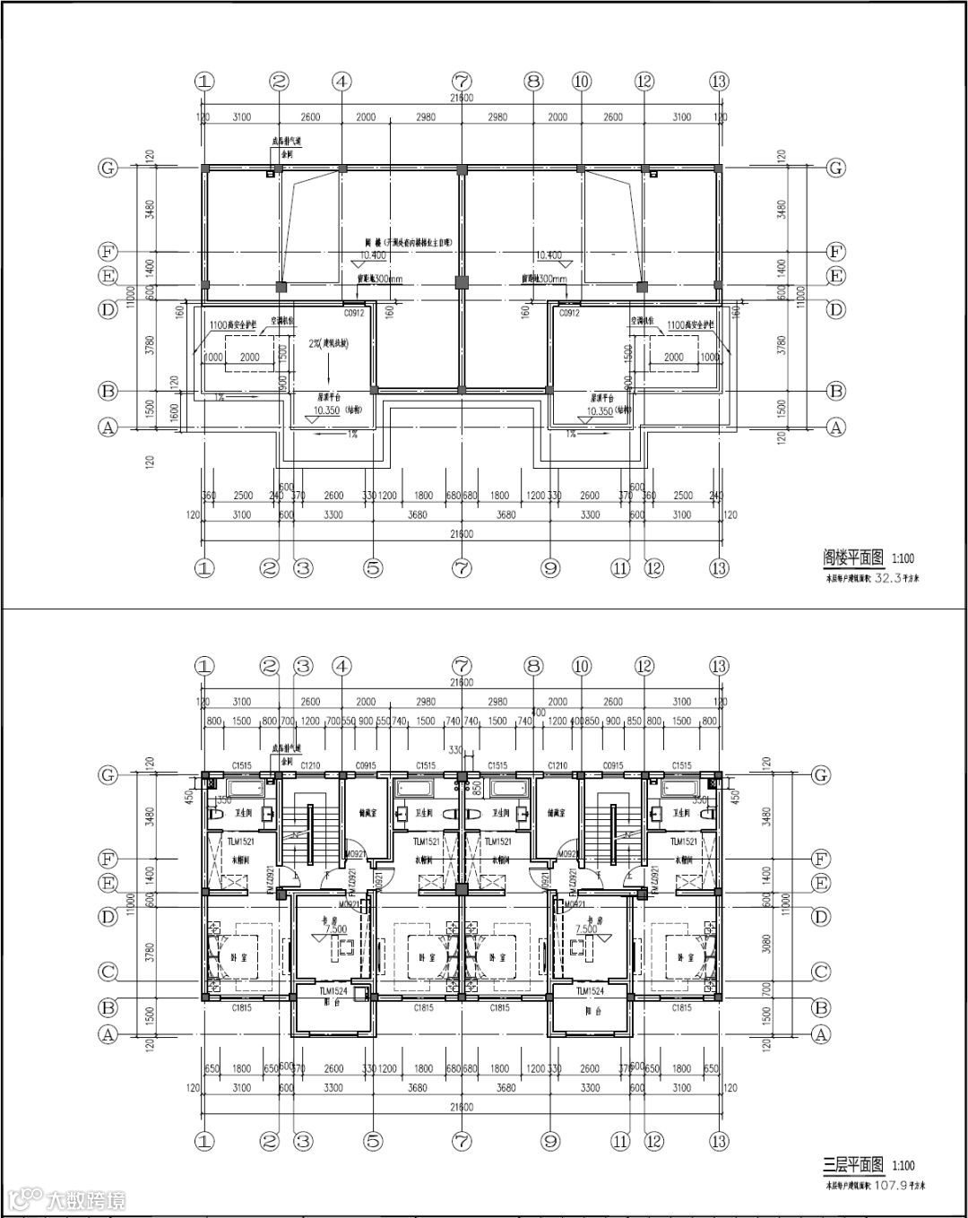
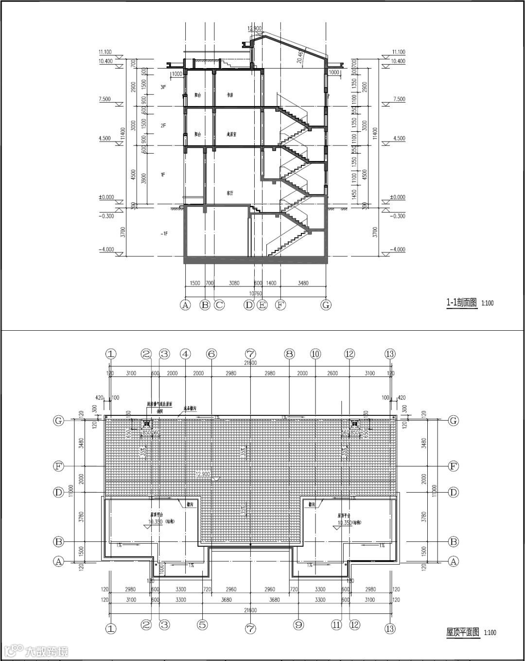
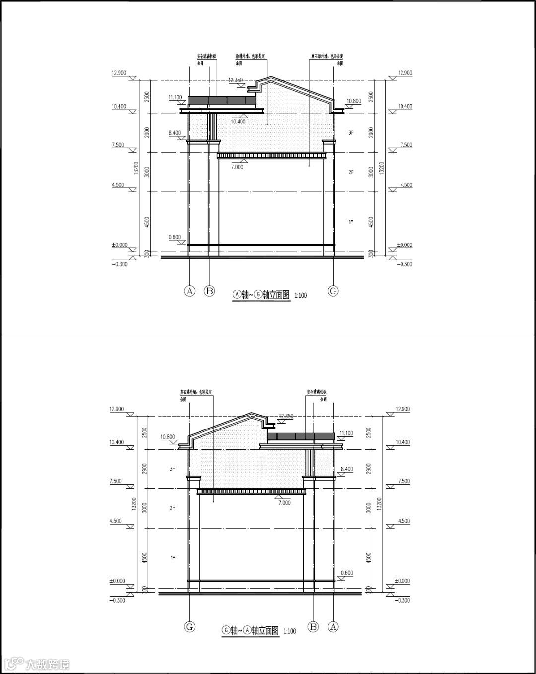
江北街道金店小区棚户区改造工程(二期)已由业主委托中机工程有限公司设计完成。现按规定程序将此方案在东阳市人民政府网站(www.dongyang.gov.cn)、江北街道办事处和项目现场予以公示,征求周边群众的意见。如对此方案有意见或建议的,请以书面形式或在公示网站上向东阳市自然资源和规划局综合审批科反馈。
如本行政许可直接涉及公民(法人)之间重大利益关系的,请于2019年12月28日前,持证明利害关系存在的证据材料及本人身份证明(法人身份证明),向东阳市自然资源和规划局法规科或综合审批科(东阳市艺海北路308号四楼411办公室)申报,登记为利害关系人,依法行使陈述、申辩以及申请听证等权利。逾期不申报的,视为放弃上述权利。













信息来源东阳市自然资源和规划局
如有侵权请联系我们删除




