
近日,2023住宅优秀户型设计竞赛圆满结束。能建城市发展公司选送的5件作品全部获评住宅优秀户型设计方案。
住宅优秀户型设计竞赛活动由中国房地产业协会主办,各地房地产开发企业、设计单位及大专院校共同参与,致力于促进国内住宅户型设计进步,推动行业转型升级和高质量发展。
▲能建城发·中宁府项目实景图
能建城发选送的《疫情背景下新生代群体户型设计100㎡》《未来•生活家户型设计89㎡》《未来·生活家户型设计103㎡》《未来·生活家户型设计109㎡》《理想户型-科技创变新生活》5件户型设计作品,根据项目所处地域以及周边环境,结合目标人群的生活习惯,综合考虑家庭全生命周期需求和后疫情时代人居生活的变化,并在户型设计中融入绿色、智慧、精致等理念,提供了全面考量的方案。

▲公区空间开放设计意向图
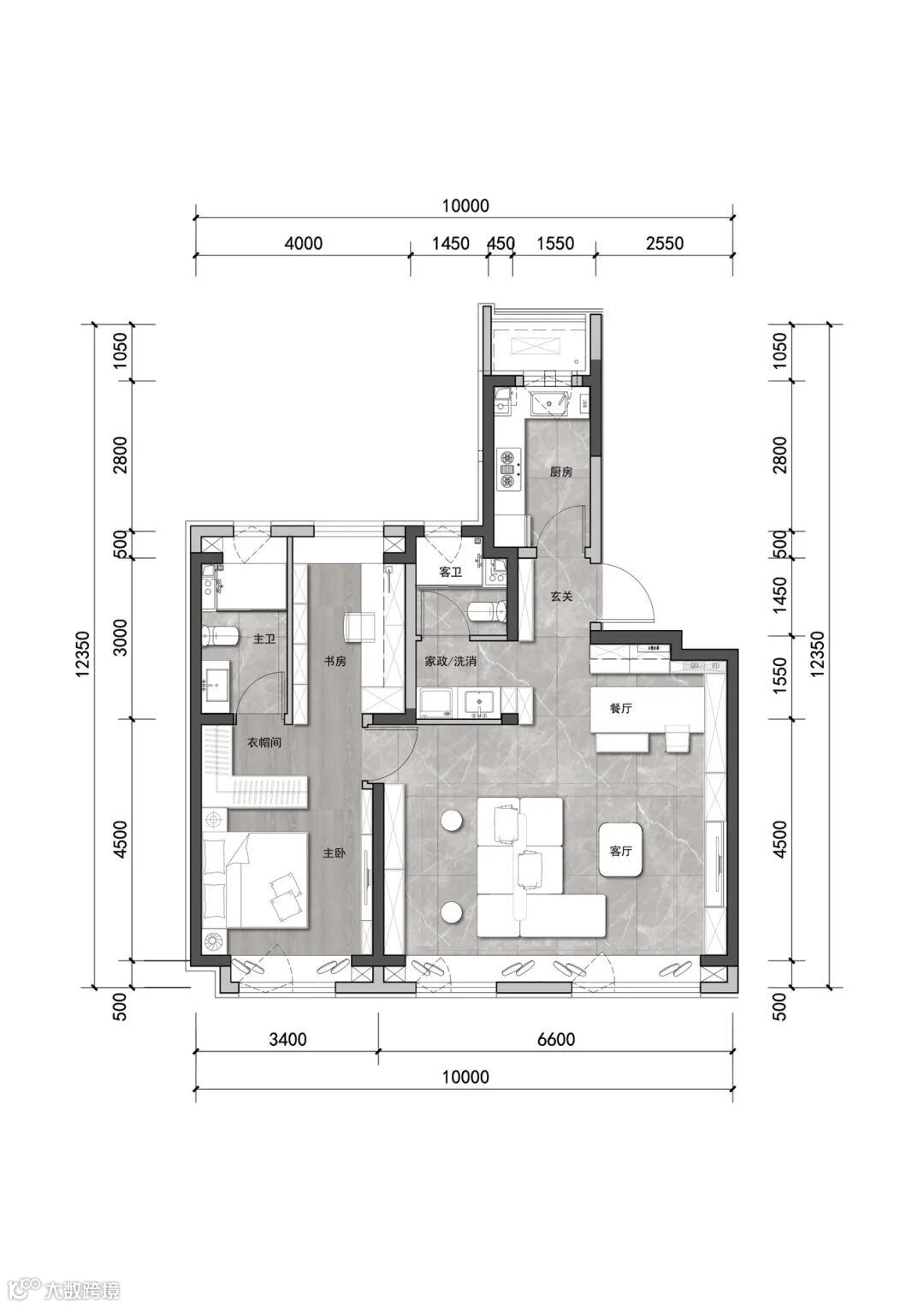
▲公区空间开放设计户型图(点击放大)
能建城发持续关注住宅市场的需求变化,依托全专业设计建造能力,不断为居民带来住宅产品的品质升级,全力建造舒适宜居的“好房子”,推进城乡居住环境持续提升,为提高生活品质、增进民生福祉作出贡献。
此次,能建城发5件作品成功入选,充分展示了公司对市场和居民居住需求的精准把握,以及通过在设计领域体系化、标准化的持续建设,为居民打造覆盖全周期、全产品类型、全专业的品质好房的领先设计能力和综合应用能力。
文图:曾彪
编辑:王桑
校审:余祧
来源:设计中心(科技管理部)

