杭州LOTUS GLADE酒店
第二家选址西湖景区上茅家埠,
若隐于世。

业主希望向大家展示杭州本地人最真实的生活:
是一个个很悠闲的午后,
一桌子的老人孩子在户外晒太阳,
喝茶,聊天,到点了就吃饭,
然后在户外闲散地聊上一整天,
一杯接着一杯地喝茶。
是家长里短,
是天伦之乐,
是最朴实,
最真实的生活的烟火。

整个案子围绕HOUSE的概念,
体验当地人间烟火气息,
与当地人为邻切入点。
不破环周围环境,
局部调整,
私享大庭院。
房子是三层楼的混砖结构,
上个世纪80年代兴建的农居
多数是水泥预制板楼板结构,
并且无圈梁。





经过之前业态多次的装修已存在很大安全隐患,
考虑到安全问题,
我们对主梁部分做了工字钢的加固处理。
为满足动线功能,
打通两幢相连的民宅,
增加内走廊。
尽可能最大化把景色引入房间,
因此在开窗面积上南立面达到了80%的占比,
使得宾客在房间里能同时感受到户外景色的四季变化。
在通往三楼的空间我们把过道加宽至1500MM,
每个房间就多出个奢侈的阳光露台,
可以在这里喝茶、发呆、看书!


客房内部整个基调定性为烟灰色系,
加入灰蓝调和亮铜色装饰体现高级感。
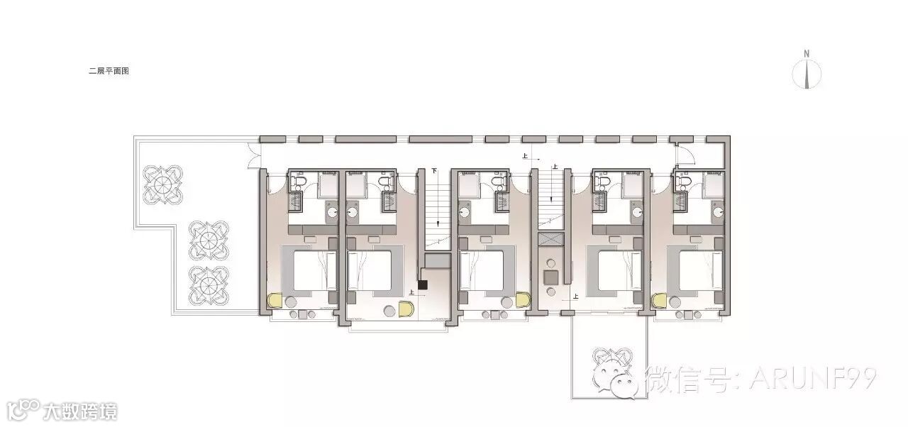
总共12间客房,
每个楼层拥有不同的户型设计。
在一楼每个房间面对着就是整个院子,
享受大面积的庭院。
以HOUSE的概念体现到客房的每个细节,
房间配备独特的阅读区。





特别是在二楼设计上我们放弃电视的配置,
纯粹为爱好阅读的宾客,
配备顶级蓝牙BOSE音箱。
以及增加的大面积飘窗空间。
在这里你可以认真地安静下来,
认真喝茶,认真听雨,认真阅读。
三楼房间保留原来木结构斜屋顶设计,
为增加采光每个客房屋顶都开了天窗,
特有的阁楼空间可以在天窗上
躺下来看星星的愿景得以实现!











