这一咖啡馆项目的关键词是“盒外思考”,
鼓励我们产生新的想法,
打破室内设计的规则。
我们将这一短语改成了“狐狸外思考”。
将狐狸作为咖啡厅的标志是因为狐狸本身是一种聪明的动物,
离群而独立。
这种个性也代表了咖啡厅的风格,
独立而有自己的特点。
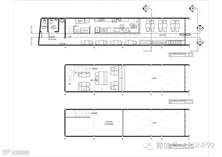
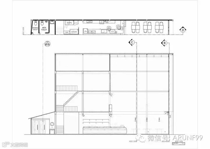
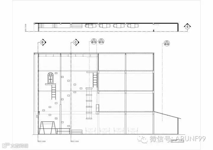
咖啡厅建筑师三层楼高的商业建筑。
设计师将空间塑造为一个互相堆叠的盒子。
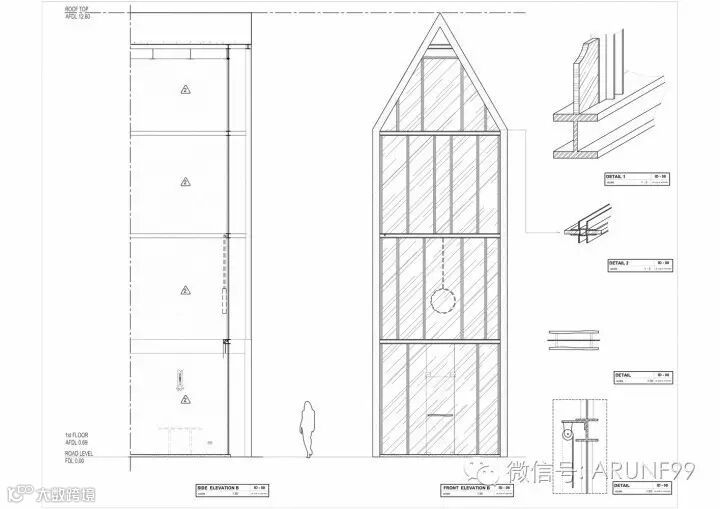
设计团队重新改造了建筑,
使其更宽敞,
就如盒外思考一样。
在研究了现存建筑之后,
我们将咖啡厅的主题定位“树”、“线索”和“光”。
为了这些主题,
我们必须盒外思考并打破所有常规。






















