Tekeli-Sisa Architectural Partnership是土耳其广受好评的建筑师事务所,
他们获得了位于Çanakkale的一个葡萄酒酒厂的设计权。
CM Mimarlık事务所从项目施工阶段一
开始就与来自Tekeli-Sisa Architectural Partnership的设计师
Dilgün Saklar 和Mehmet Emin Çakırkaya通力合作,
共同完成这间葡萄酒酒厂的室内设计部分


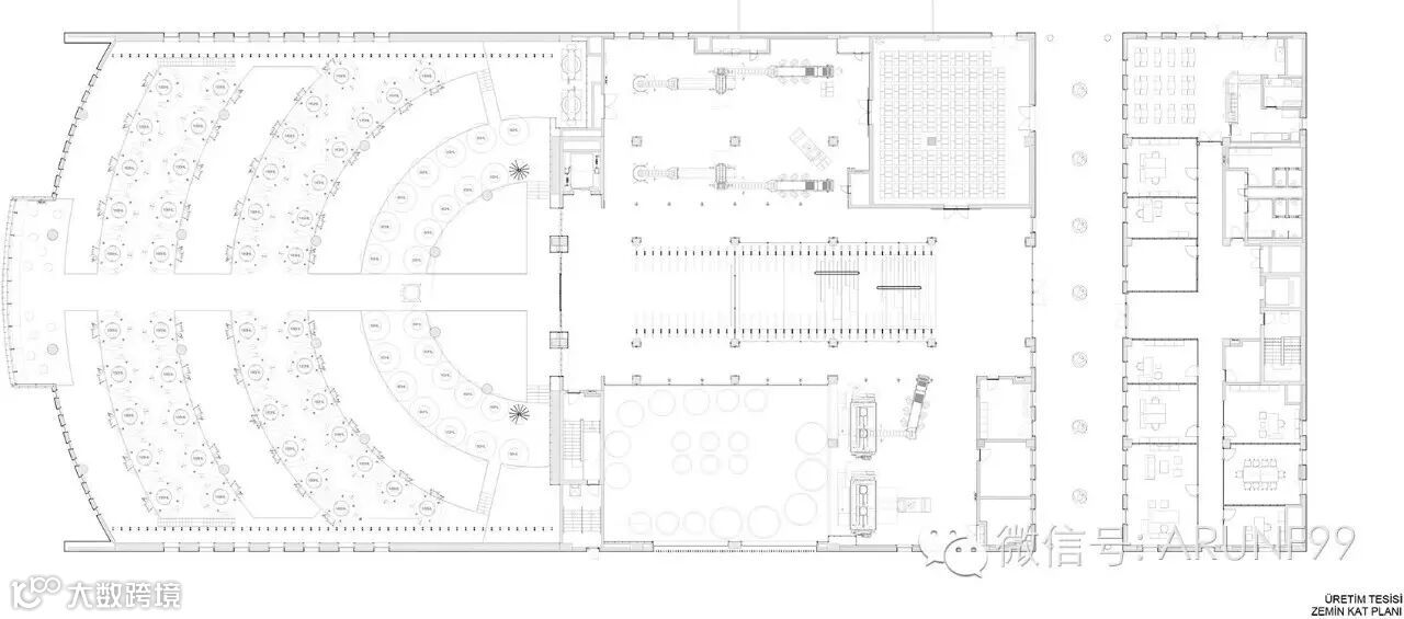
酒厂生产车间使用了混凝土作为结构。
建筑师对于材料的选择尽可能的做到简单朴实,
但是为了避免因为厂房内模具的移动和碰撞所带的结构劳损,
还是在一些必要的部分做了防水处理和抗冲压处理,
原有的金属结构结合粗躁的工业配件以及由实木精心装饰的细节,
使整个空间显的精致又不失大气。
这种类型的葡萄酒厂空间,
在一年内的某些时间会变得十分的活跃,
但是在另外的时间又会归于平淡。
酒厂会接待各类的参观者,
举办品酒会等等活动,
因此葡萄酒厂的宾馆就变成了酒厂展示自身的一个平台。
建筑师设计了一个环形的展示空间和一个休息室。
葡萄酒厂的公共空间正对办公室的入口,
客房和酒厂在三维空间上被串联起来。








和所有工业建筑的设计一样,
酒厂的设计也必须最大可能的满足其作为酿酒场地的所有需求。
建筑师需要通过设计来减小外界对于有机的酿造过程的干扰。
建筑的面积有16000平方米,
包括生产厂房和存贮空间,
还有一些必要的服务空间比如实验室和办公室。
这间酒厂还有一间有25个客房的宾馆,
为来此的人提供餐饮甚至SPA。

















