搜索
首页
大数快讯
大数活动
服务超市
文章专题
出海平台
流量密码
出海蓝图
产业赛道
物流仓储
跨境支付
选品策略
实操手册
报告
跨企查
百科
导航
知识体系
工具箱
更多
找货源
跨境招聘
DeepSeek
首页
>
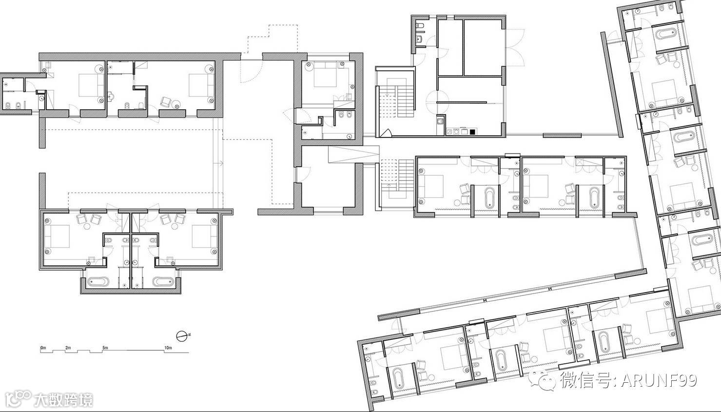
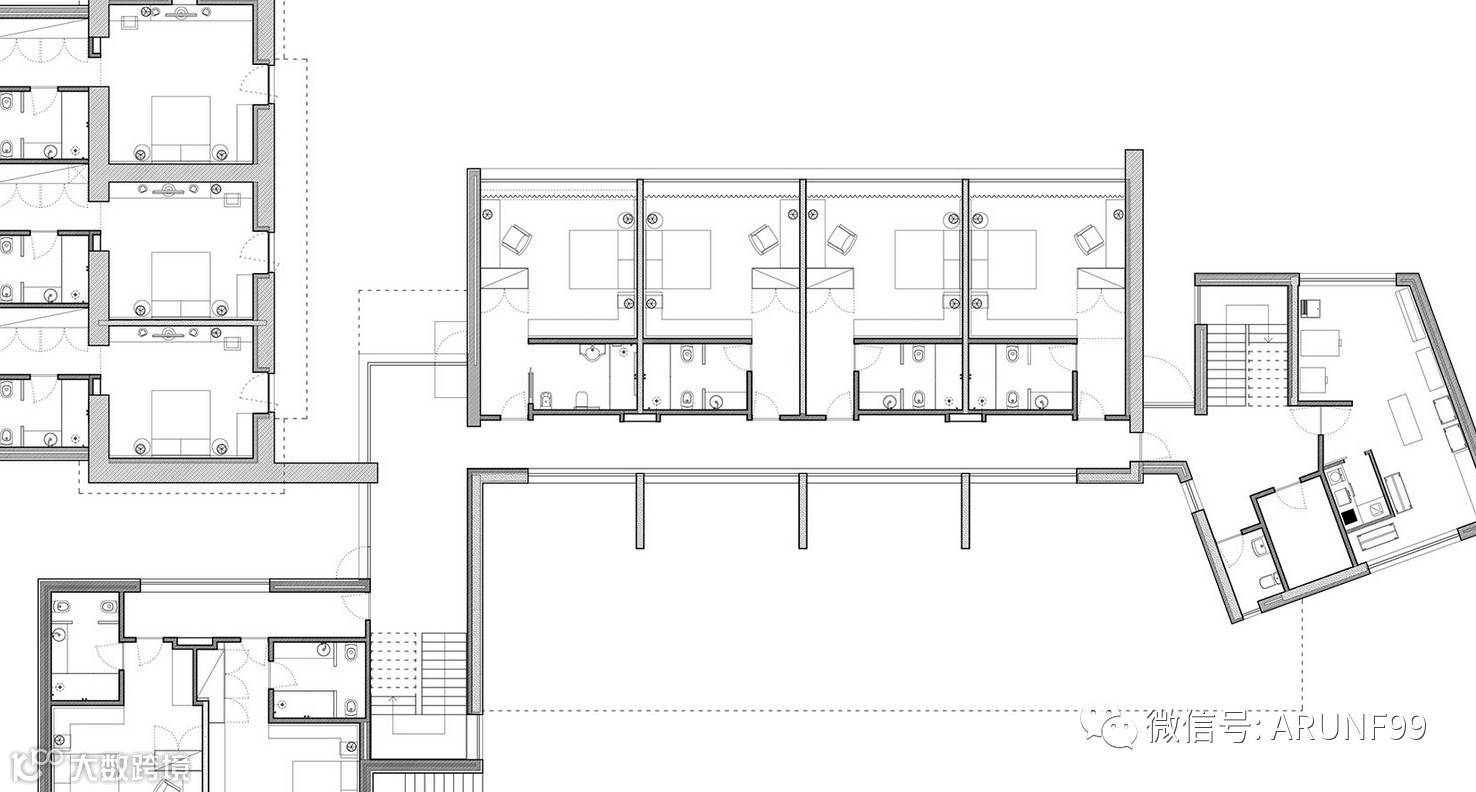
【TIMSPACE第1100期】葡萄酒园主题酒店
>
0
0
【TIMSPACE第1100期】葡萄酒园主题酒店
安润福装饰机构
2017-03-25
2
导读:巴尔港瑞吉度假酒店
葡萄酒庄园主题
【声明】内容源于网络
0
0
安润福装饰机构
酒店与酒店式别墅设计专业服务机构
内容
5101
粉丝
0
关注
在线咨询
安润福装饰机构
酒店与酒店式别墅设计专业服务机构
总阅读
5.0k
粉丝
0
内容
5.1k
在线咨询
关注