
日前,东阳市自然资源和规划局在东阳政务网发布“东阳横店通用航空机场项目拆迁安置规划公示公告”。
横店通用航空机场项目拆迁安置区位于横店镇北部,西侧为张山坞小区,东侧为横店农房集聚安置区和广州街香港街景区,北侧为过境北路(镇北路/佛窈线),南侧为218省道(十里街)。规划总用地面积15.2119公顷(约合228亩)。


该地块周边,218省道、过境北路(佛窈线)和影视大道为横店镇与外界连接的重要通道从小区外围通过,距离横店轻轨站直线距离不足2公里。小区东侧隔一条路为横店二中,距离西侧后岭山小学、东侧横店第二小学不足3公里路程。
据悉,横店通用航空机场位于横店镇金马村,于2012年6月启动该项目,在2018年3月正式通航。根据规划,该机场近期将800米跑道扩建到1800米,并配套建设相应滑行道、扩建航站楼等,打造大型通用机场和公务机场。东阳横店通用机场改扩建项目完成后,即有望成为华东地区乃至中国第一个公务机机场。在远期规划中,机场将根据实际情况增设国内民用定期航班,机场的性质将转变为国内小型直线机场。横店通用航空机场建设改扩建项目,无论对于横店还是东阳,都是非常大的机遇。
这是东阳发展影视文化产业、推进“强市名城”建设的重要战略部署。随着东阳市通用机场建设改扩建项目的实施,对周边涉及的连塘下、龙井山、上石潭等村迁安置工作提上日程。


因该小区位于横店镇的北部,是东阳往横店方向的主入口。小区的功能由原来以居住为重点,向以商业、居住、旅游、影视拍摄等功能为一体的新农村转变。积极发展发展小区集体的第三产业,进一步完善相关的相应的配套设施,更加注重生态环境的营造,结合明清宫苑景区,布置配套设施,构筑三地的中转枢纽,建设旅游休闲中心。
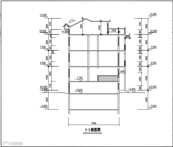
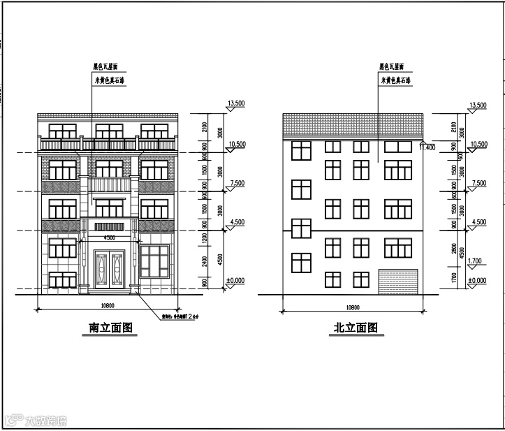
住宅规划
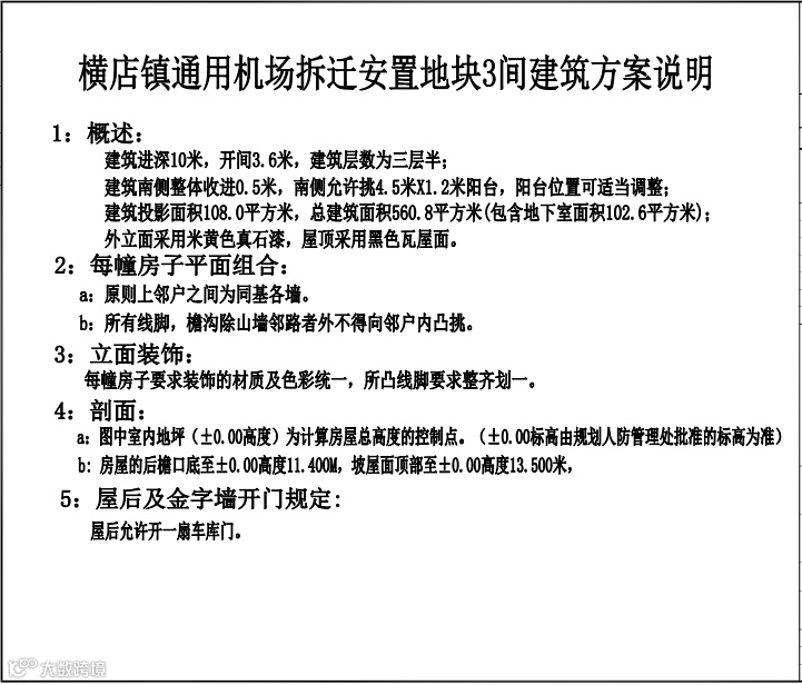
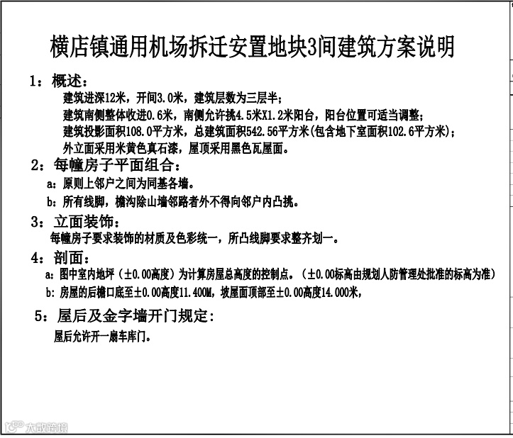
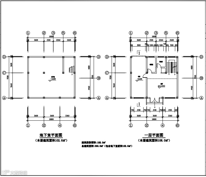
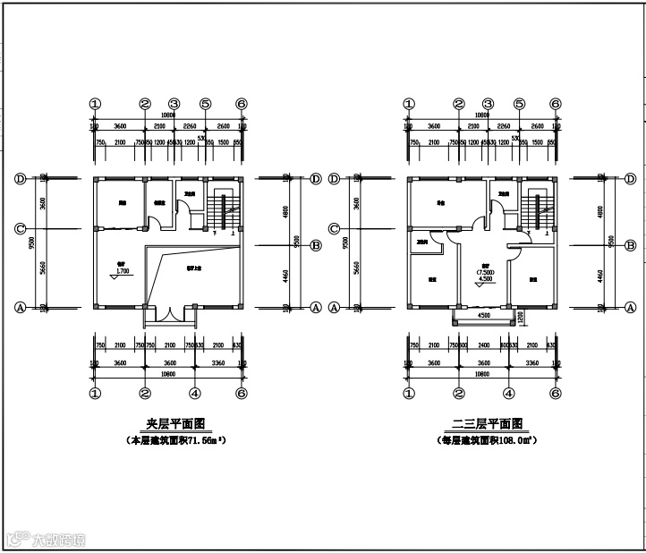
1、标准住宅主要由3.6米X 10米、3米X12米,沿街规划住宅2.666米X 13.5米,侧间距4-6米。
2、房屋建筑层数以三层半为主,建筑风格是以现代风格为主基调的建筑群落,通过局部的细节处理,使整个区块的建筑风格既相统一,又不是简单的重复。
3、金子墙不得开门。
4、如需建地下室的用户,其高度不得超过规定的±0.000线。
5、住宅立面采用外墙涂料,并统一立面。






来源 | 东阳市政务网
校对 | 阿森 Zero
版权归原作者所有,如有侵权请及时联系我们