

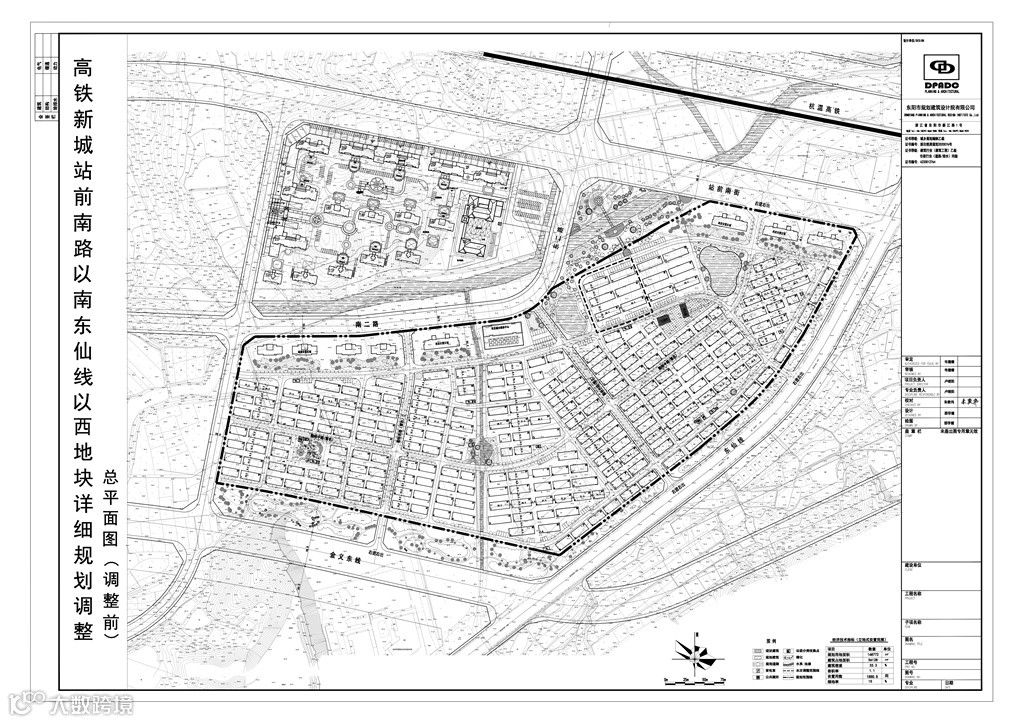
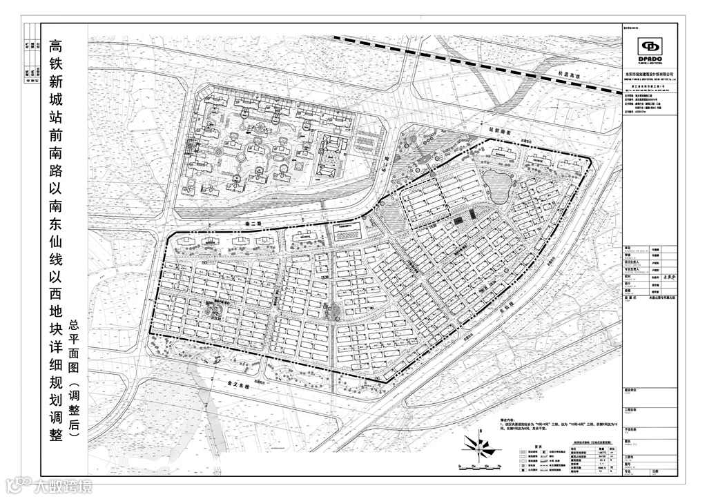
高铁新城站前南路以南东仙线以西地块详细规划调整公示公告
东自然资规告示[2021]67号
高铁新城站前南路以南东仙线以西地块详细规划调整由东阳市规划建筑设计院完成。现按规定程序将此规划方案分别在东阳市政府网站(www.dongyang.gov.cn)、高铁新城管委会、城东街道办事处、勤裕村公开栏以及项目现场予以公示,征求广大群众的意见。如对本规划方案有意见或建议的,请在公示期内以书面形式向 高铁新城管委会、城东街道办事处或市自然资源和规划局规划编审科反馈。
公示时间:2021年10月12日—2021年11月10日
联系地址:高铁新城管委会
城东街道办事处
东阳市自然资源和规划局规划编审科307
邮 编:322100
联系电话:86022050(高铁新城管委会)
86010025(城东街道办事处)
86655213 (规划编审科)
东阳市自然资源和规划局
2021年10月11日


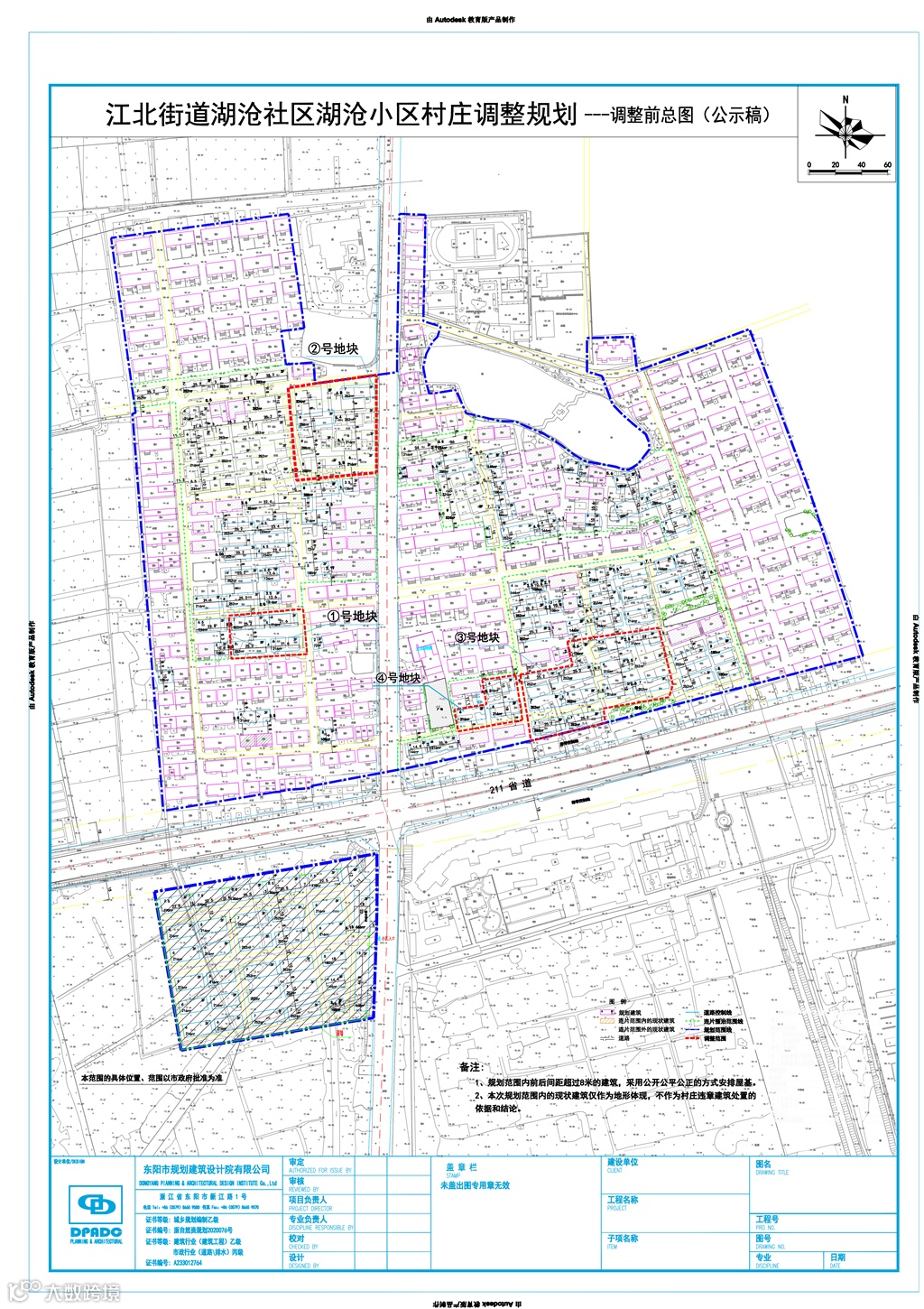
江北街道湖沧社区湖沧小区村庄
调整规划公示公告
东自然资规告示[2021]68号
江北街道湖沧社区湖沧小区村庄调整规划由东阳市规划建筑设计院有限公司设计完成。现按规定程序将此规划方案分别在东阳市政府网站(www.dongyang.gov.cn)、江北街道办事处以及湖沧公示栏予以公示,征求广大群众的意见。如对本规划方案有意见或建议的,请在公示期内以书面形式向江北街道办事处或市自然资源和规划局规划编审科反馈。
公示时间:2021年10月12日—2021年11月10日
联系地址:江北街道办事处
东阳市自然资源和规划局规划编审科307
邮 编:322100
联系电话:86667616(江北街道办事处)
86655213(规划编审科)
东阳市自然资源和规划局
2021年10月11日


号外!号外!
我们有粉丝群啦
加入我们,发现东阳趣事
不定期发放粉丝福利
举办有趣的线下活动
你也一起来玩呀
🔔🔔🔔
(添加小编好友拉你入群哦~)
end
来源 | 东阳自然资源和规划
校对 | 阿森 Zero
版权归原作者所有,如有侵权请及时联系我们

