

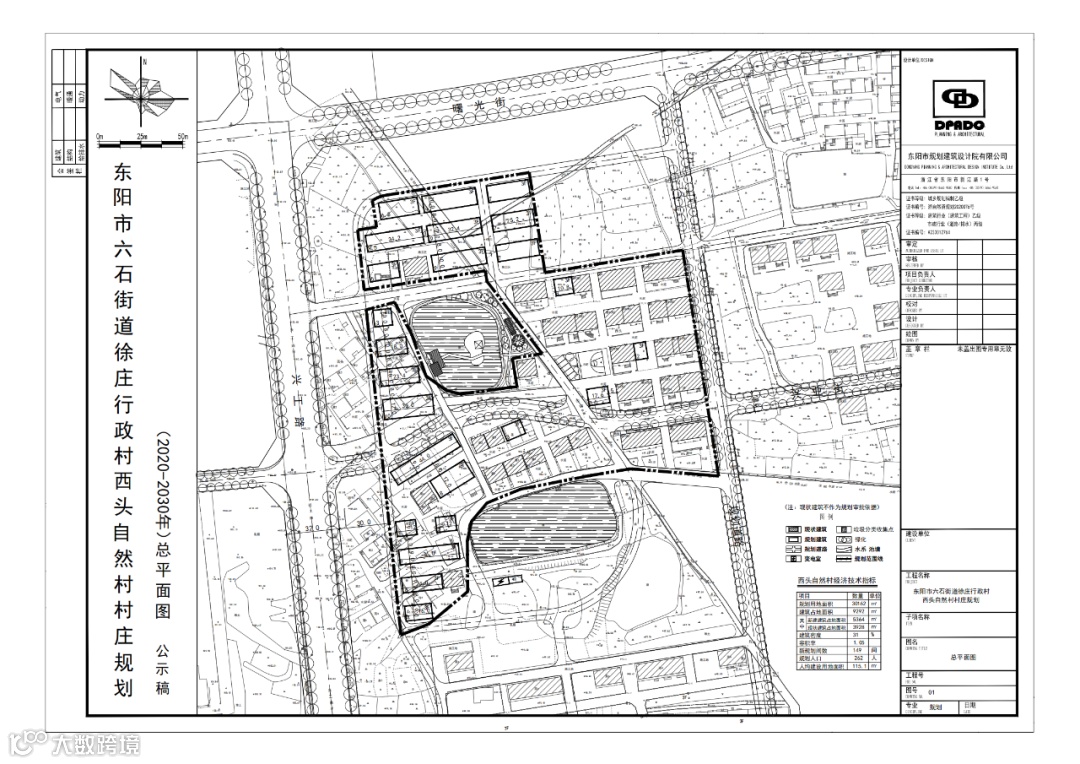
六石街道徐庄行政村西头自然村
村庄规划(2020-2030年)公示公告
东自然资规告示[2022]58号
东阳市六石街道徐庄行政村西头自然村村庄规划(2020-2030年)由东阳市规划建筑设计院有限公司设计完成。现按规定程序将此规划方案分别在东阳市人民政府网站(www.dongyang.gov.cn)、六石街道办事处以及西头自然村公示栏予以公示,征求广大群众的意见。如对本规划方案有意见或建议的,请在公示期内以书面形式向六石街道办事处或市自然资源和规划局规划编审科反馈。
公示时间:2022年5月10日—2022年6月8日
联系地址:六石街道办事处
东阳市自然资源和规划局规划编审科307
邮 编:322100
联系电话:86011132(六石街道办事处)
86655213 (规划编审科)
东阳市自然资源和规划局
2022年5月9日



六石街道新建行政村学研徐区块
调整规划公示公告
东自然资规告示[2022]57号
六石街道新建行政村学研徐区块调整规划由东阳市规划建筑设计院有限公司设计完成。现按规定程序将此规划方案分别在东阳市政府网站(www.dongyang.gov.cn)、六石街道办事处以及学研区村公示栏予以公示,征求广大群众的意见。如对本规划方案有意见或建议的,请在公示期内以书面形式向六石街道办事处或市自然资源和规划局规划编审科反馈。
公示时间:2022年 5月 10日—2022年 6月 8日
联系地址:六石街道办事处
东阳市自然资源和规划局规划编审科307
邮 编:322100
联系电话:86011132(六石街道办事处)
86655213 (规划编审科)
东阳市自然资源和规划局
2022年5月9日


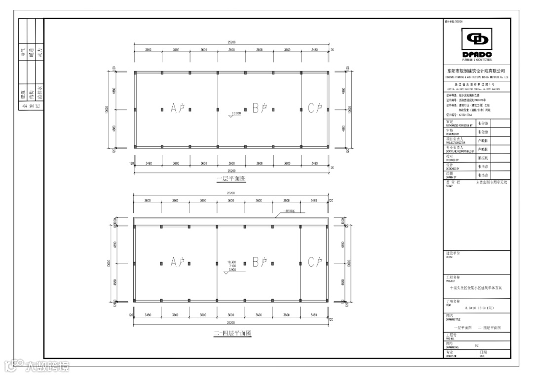
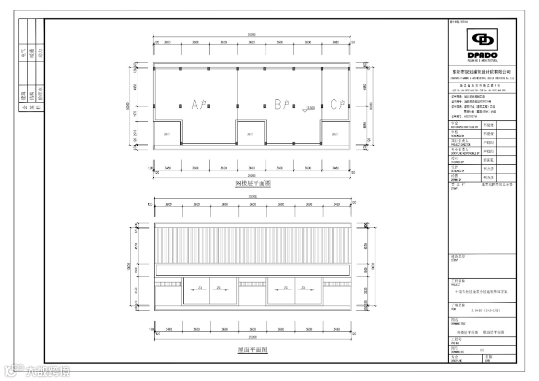
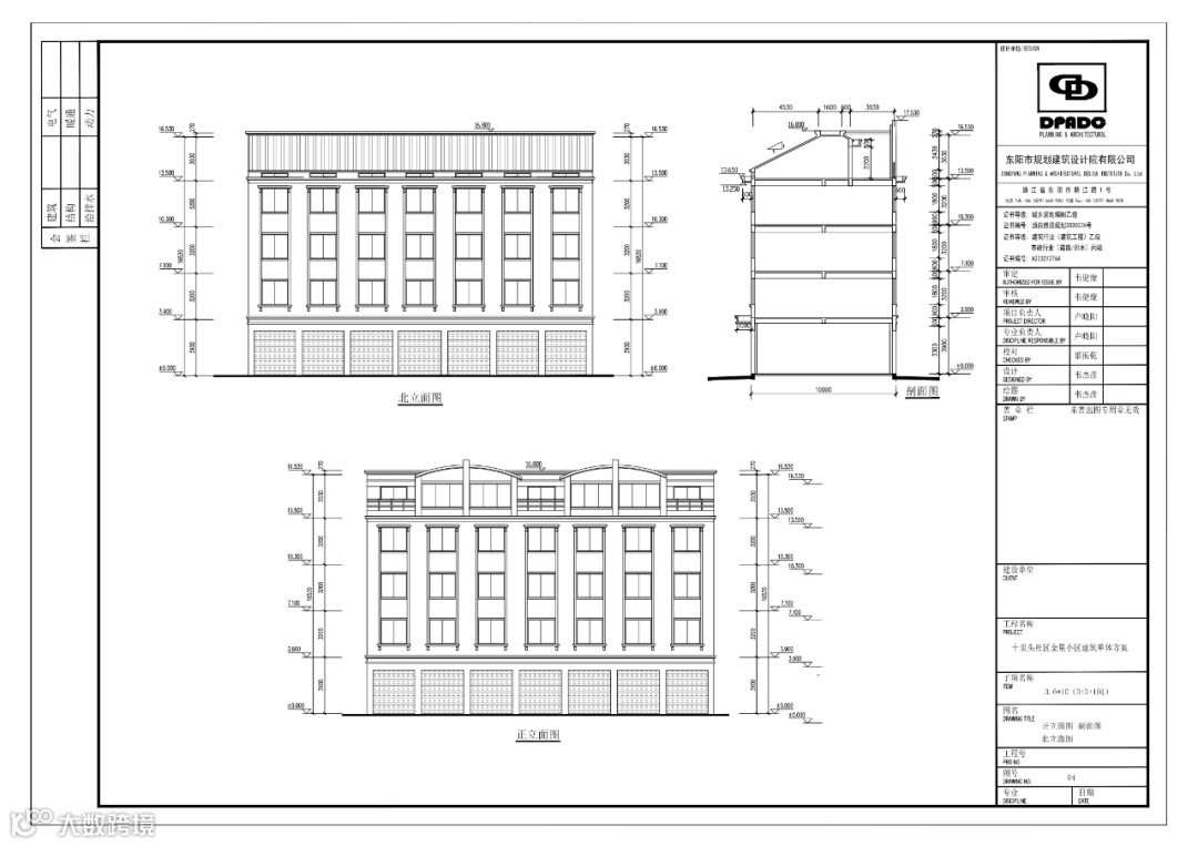
十里头社区金星小区改造局部
调整规划公示公告
东自然资规告示[2022]58号
十里头社区金星小区改造局部调整规划由东阳市规划建筑设计院有限公司设计完成。现按规定程序将此规划方案分别在东阳市政府网站(www.dongyang.gov.cn)、白云街道办事处以及金星小区公示栏予以公示,征求广大群众的意见。如对本规划方案有意见或建议的,请在公示期内以书面形式向白云街道办事处或市自然资源和规划局规划编审科反馈。
公示时间:2022年5月10日—2022年6月8日
联系地址:白云街道办事处
东阳市自然资源和规划局规划编审科307
联系电话:86016549(白云街道办事处)
86655213(规划编审科)
东阳市自然资源和规划局
2022年5月9日






号外!号外!
我们有粉丝群啦
加入我们,发现东阳趣事
不定期发放粉丝福利
举办有趣的线下活动
你也一起来玩呀
🔔🔔🔔
(添加好友小编会拉你进群)
end
来源 | 东阳政府网
校对 | 阿森 Zero
版权归原作者所有,如有侵权请及时联系我们

