
这栋建筑有着100多年的历史,原来是当地村子一栋破旧的房子, 拆除了外墙复古的元素,经过对表皮简洁的处理,形成了全新的外立面。

01.
天空泳池

与拱形的立面窗洞形成对比,屋顶有一个悬挑的反拱,这里是这个酒店最为大胆的设计:悬臂式天空泳池。
剖面图▽


用金属管编织出一个遮阳篷,仿佛一个金属外壳,围合出一个极为精彩的泳池空间。映射在水面上的倒影,让这里成为客人来这酒店必 po 图的地方。

因为曲率的关系,泳池最深处达到了6米,水性不好的就不要下去了~



02.
屋顶SPA

屋顶SPA平面图▽

拱形泳池联通屋顶层,这里即是泳池的入口,也是室内外的一个灰空间。





03.
立面改造

外立面通过加减法的处理,强化了突出拱形窗的形式感。



04.
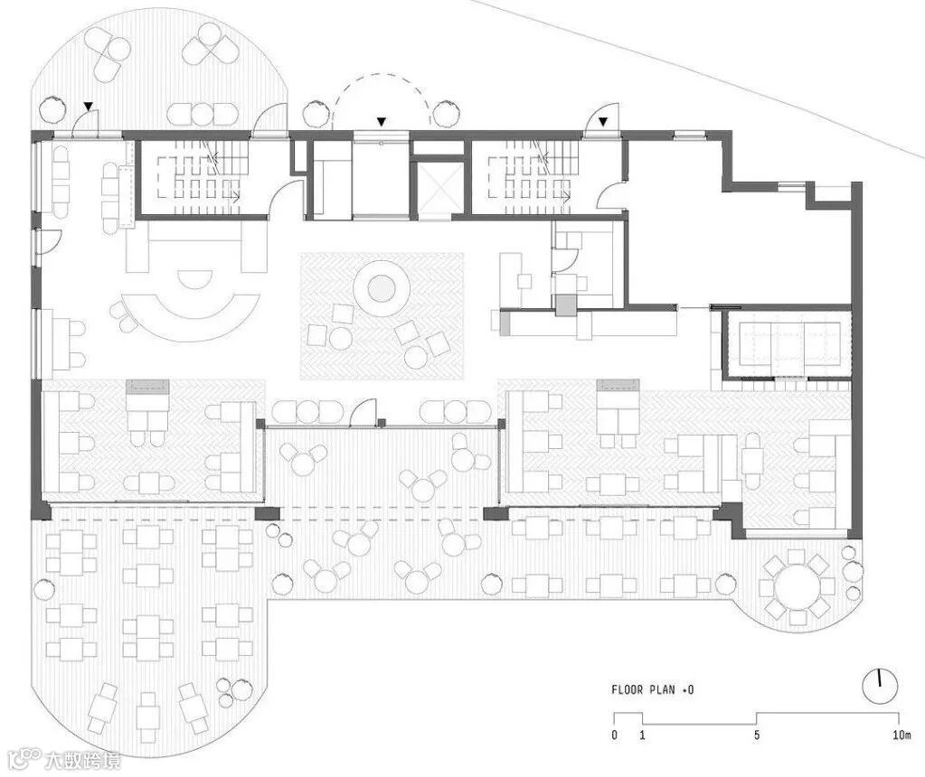
大堂、餐厅

一层平面图▽






05.
客房、套房

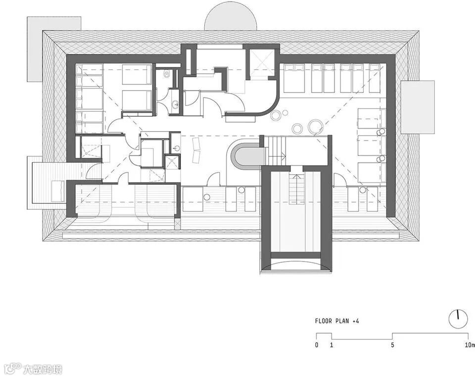
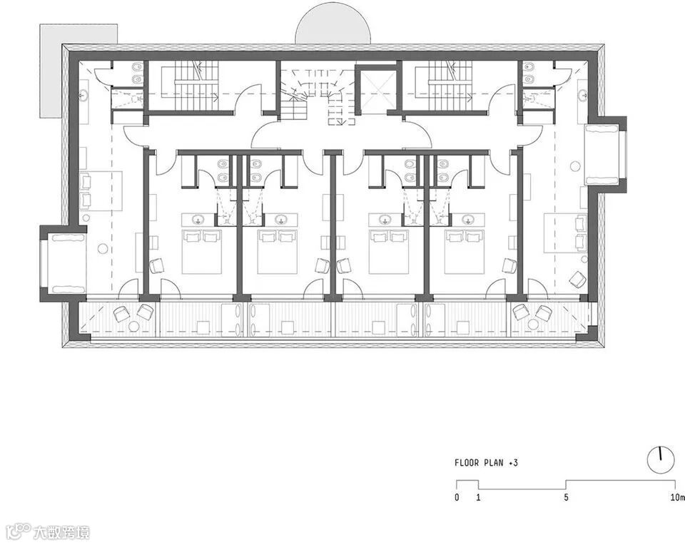
整个酒店有25个客房和套房,整体的色调采用了轻松自然的材质搭配。
客房平面图▽

中间房▽


靠边房▽







套房▽


欢迎查看了解安润福网站:http://www.arunf.com


