
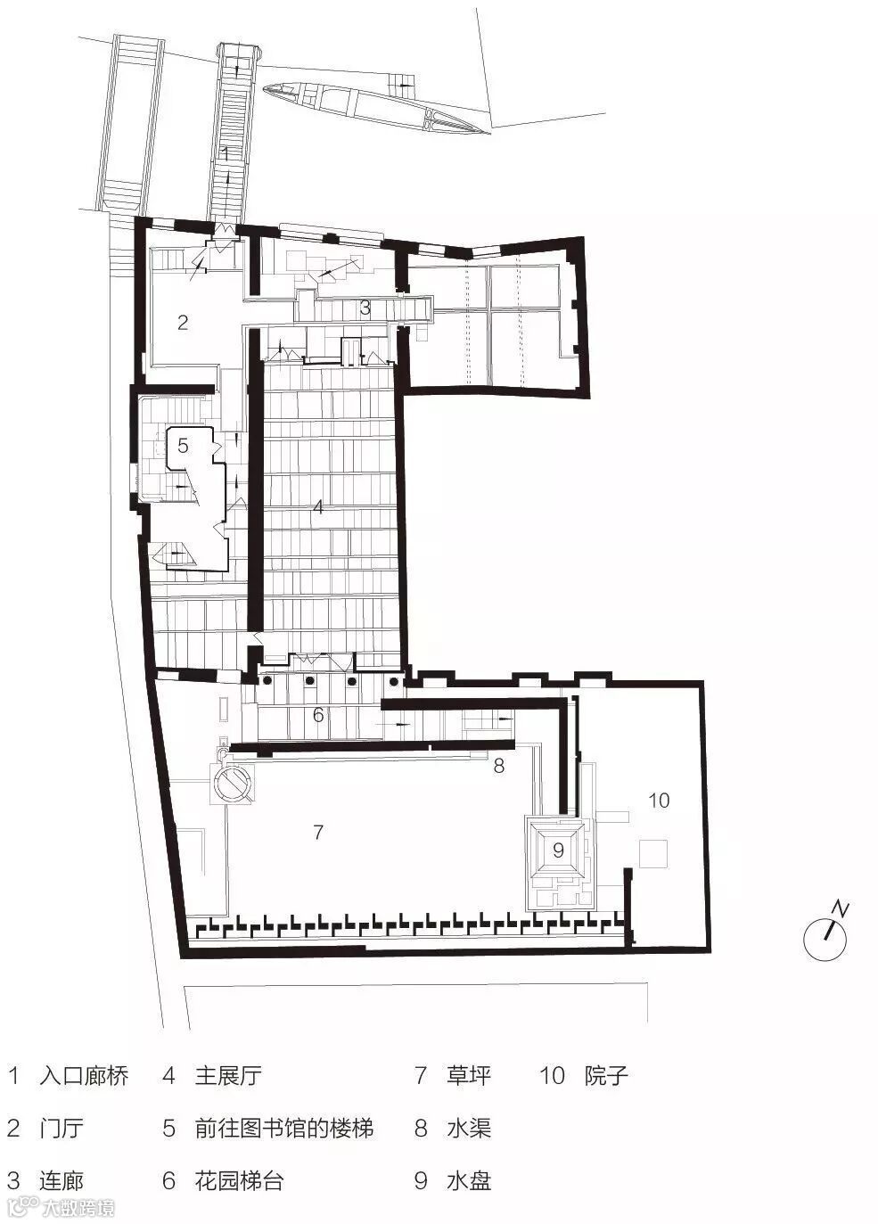
奎里尼.史丹帕立伯爵于1869年过世时,将他继承自家族的宅邸留给史丹帕立基金会(Fonatzione Querini Stampalia),这个16世纪所建(它最早建于哥德时期)的宅邸,于是被改装成艺术品的收藏馆以及一个作为艺术研究的图书馆。1949年,斯卡帕接受基金会委托,开始重新规划饱受水患之苦的一楼以及已不堪时光摧残的老房子。这个计划书不久后便被搁置,直到新的馆长接任之后才重新启动整建案。新馆长马扎里奥(Mazzariol)再次邀请斯卡帕为基金会重新设计;两年之后设计全部完工。
新的史丹帕基金会包含几个主要区域的整建。首先斯卡帕需要为这栋旧房子的前方立面上做一个新入口,这个入口必须以一座跨越水道的桥梁与圣玛利亚,福尔摩沙小广场连接起来;其次,原本作为水上交通工具进入的入口,必须重新思考它的新用途;在长期忍受潮湿以及不断洪水浸泡而逐渐崩解的一楼,更即刻需要一个大胆的改装设计,以便容纳一座艺廊,以及作为楼上图书馆的过渡空间。
另外,在这种传统威尼斯水道宅邸后方常会有中庭(过去这中庭多为服务性区域,以作为连接后巷或是生活功能的辅助区域),斯卡帕则将它改装成一个舒适的小花园。其中植物的挑选来自馆长马扎里奥,而花园中的马赛克设计则来自斯卡帕和他多年的老友笛卢吉(Mario de Luigi)之手。
就在圣马可广场不远处,当游客在广场后方的披萨店、冰店林立的巷道中穿梭时,也许因为偶然或是有心发掘而被引入一座称为圣玛利亚、福尔摩沙的小广场,就在它的一侧有一座四层楼高、有着突出的阳台而且表面泛着灰红的建筑物特别引人注目。在二楼高度的地方镶挂着一片像是有着翅膀的石头,表面浮凸着「QUERINI STAMPALIA」基金会的名称。穿越水道的一条直通基金会入口的路径,则是由斯卡帕设计的新桥,它很明显地引导访者由这立面上原有的窗户区域进入基金会内部。
这条看似非常融入威尼斯情境的新桥和比邻的16世纪白色石造桥梁相较起来,显得十分精细。这座桥呈现非对称式的平面及立面,其原因正呼应着斯卡帕说明的「威尼斯的非对称式风情」,同时也是为了满足桥下的船只通行,并躲过进入基金会新入口上方的一支突出横梁的处理方式。
桥与广场交接处的下方以扁铁落在厚重的伊隆利安石的锁石块之上,其上方的踏步则为榉木木板,它们准确的锁在扁铁的上方,并且留下了图案感十足的孔径纹路。
△ 入口桥梁及细部
栏杆的部分也是由扁铁所构成的,它由下方撑起桥的扶手结构上伸至扶手的护木下方。这个扁铁所构成的结构体会不断的改变断面的形状,使其呈现忽大忽小的造型。手扶木为深色非洲柏木,它被打磨成光滑的弧面,下方接连着一道管状的铁件。这整座桥便是一个工艺艺术品,它的特殊造型似乎暗示作为威尼斯风情的一个印象:它像船只一般轻盈,充满张力与动力。
当望向左下侧那个原来位于主宰立面阳台正下方的拱形入口时,将发觉它们被以东方式的图案拼组出的两扇水道的护门所包围。这两扇门是以施了合金处理的古铜色圆铁以及扁形黑铁共同组构而成。在这透空门下方的吃水线上则不断有运河的水流到室内。

踏入主入口之后,人们随即转换了对于时间与空间感的情绪:16世纪混杂着20世纪的空气、光线及气味在此弥漫。入口门厅是一个看似空荡却又丰盛的空间区域;混凝土平台组成入口区,在穿越了玻璃隔片之后落在一个混杂着绿色、橘色、白色石块,并且以多种格状方式组成的地板。
这片地板在离墙的边缘处被混凝土边框所围起,而形成一个四周下凹的凹槽区。在维罗纳古城堡博物馆中的墙与地板交接边缘的处理方式,在这里又再度被观察到,维罗纳博物馆中的凹槽缺口在于强调墙面与地板的肌理差异,但这个基金会地板与墙间的凹槽则是一个既具有隐喻又具功能的设计。
这个平台及随后的展示空间都被缺口所包围,似乎诉说着威尼斯城的特殊地理特性:一座漂浮在水面的平台(可以说是石头,或是岛屿)。而实际上这个抬高的平台就是冬季洪水的最高水线位置。当泛滥的运河水无情的涌入这个空间时,它将泛入周围有如运河的水道里,而不会溢到平台之上。
这个平台的墙壁则将被以传统的威尼斯灰泥处理涂抹,其中一些墙面的边缘被置入铁件的撑体,这些铁件除了分割出墙面上符号般的格状线外,也使这个斯卡帕设计的新壁面脱离原有的旧墙面。原有的16世纪砖体灰泥面已经因为过于潮湿且脆弱而不应该再被使用。
跨越了这个平台,穿越一道拱门之后则来到展示空间的前室区域,在连接运河的一边,有几片下沉、逐渐没入水中的阶梯。
格式孔径的水道门调整了户外的亮光,使光线柔顺的、同时吻合着水波的韵律泛入室内;部分的余光则成为光点,投射在经威尼斯式灰泥处理的天花板上。在这片以混凝土件撑起的平台四周,混合着半剥落的旧砖墙以及拱顶石造装饰物件,斯卡帕在此置入了一个奇特的新原件;一座由透明、反光及半透明玻璃、伊隆利安大理石以及金属材料共构的墙柱体,它切割了前室以及主要的艺廊空间。
新与旧的材料及情感,混杂出新一回合的时光对话,但撑起这片区隔空间的墙柱体的主要构件则来自于一座有着不规则金线、几何面缺口的柱体般突出物。实际上它并非柱,而是隔界墙,它的后侧包围着提供艺廊暖气的片状式暖气,表面上所出现的不规则缺口则像是某个威尼斯区域的地图,被金色涂料覆盖的金线像是运河水道一般,刻画这个城市复杂及多变的质理。
△ 墙柱体背面片状暖气片
主展览室被它的轴线终点处吸饱阳光的花园背景所主宰,在玻璃反光及背光下,四只位于户外的圆柱以及一些古代的建筑破件,成了即真实但似乎又极端遥远的残影。斯卡帕在这个展示区地板及墙面同样的施予了复杂的视觉逻辑。混凝土的格状体区域以光滑的伊隆利安大理石框住周边,这个混凝土地板的质感被刻意上转而包覆到两侧墙面的边缘区域。
它们与墙面上的洞石肌理交接的高度暗示一个不存在的水线高度,同时在地板上被条状石块所划出的区域不止由中间向两侧成为不对称的安排,甚至还被不平行的排列,而只有沿着展示厅前进的前三道框围线呈平行状,其后都呈现轻微的倾斜;斯卡帕再一次运用起他动态化的想法,让一个已被时光冻结的空间感能觉醒起来。

△ 主展览室
这种动态化的处理也出现在墙面上,将墙面设计以能吊挂展品的铜件平行地切割墙面体,而其上下方的蛀洞石不时被有荧光背光的霾状玻璃所分割。最后,墙面在艺廊尽头的右侧,一部分的墙化成了一扇门板,隐藏的秘门被推开时,灰暗的内部成了引领劫掠宝藏的幻想——这也是一个可以通往楼上知识宝藏「图书馆」的秘密入口。
△ 主展览室秘门
△ 图书馆区的上方开窗
斯卡帕喜欢谈日本,虽然在设计这个基金会花园的时候,他对日本的憧憬也止于书上的知识。但当他旅行过日本,就在这个基金会完工的12年之后,他重新谈起这个基金会花园的设计时,竟也提到日本:「你可以好好想想看日本人处理非常非常小的空间是多么的有技巧,并且可以创造出魔法般的东西……在这个基金会设计上,我只是希望很谦卑的做一些像那样的事。它的花园便是如此的一个小空间,我希望它能很准确、清晰、原型、特殊、而且很好的被处理。」
在由展示厅步出以后,便到斯卡帕口中具有日本质感的花园。基金会庭院是斯卡帕最精彩的庭院作品之一,种植地坪被抬高,庭院的东端用混凝土墙作为屏风与后勤用房隔开。墙上有艺术家路易吉的马赛克,这些马赛克的表面经过处理,反射着金属般的光线,好像阴影中的眼睛。就在步出由4根16世纪柱子撑起的廊区之后,一道突出于地面的水流道就横陈在眼前,它几乎侧展了整个花园。
流水清冽的声音还不是这个水道令人感受深刻的原因,水由左侧(西)的一个铁件开口处,轻轻流入一个有着迷宫般纹路的大理石盘上,水在锯齿形区域中转折,延迟般地滑过盘上凹下的区域,再轻轻流入流水渠道中。

水逐渐向东流,就在绕过一座中古时期的石狮雕像侧边后,最终以瀑布般的姿态流入一个同心环大理石盆内,而后消失在一个圆形花盆的下方。在水落下盛接盆的前侧有一个圆孔,这个目前已经没有活力流动的孔径区,正是史丹帕立家族16世纪时的饮水孔井之所在。留下深邃的孔洞,似乎记忆了这个家族最原始发迹的命运。
威尼斯不像罗马和佛罗伦萨,它的水压太低,你在这里很少看见喷泉,然而斯卡帕仅用最微小的高差变化谱写出了一首水的奏鸣曲,一座藏在小巷深处的水景园。
水道之后则是位在同一个高度的草地区。几颗灌木及矮丛木点缀其间,但这个草坪似乎不怎么欢迎人们将脚移到它上面,它的边缘被混凝土板准确的划分区域。植物及各种昆虫在草地上无所忌惮的生活着。
花园的左边则被一道混凝土墙划过,它在划过这个花园一半的长度后开始稍微移位到后侧。站在水道前的访客若向这道墙面移动,将首先跨上一座台阶,就在身体移动时,这道有着部分粗糙表面、部分光滑横向肌理的混凝土墙开始显露一份更加细致的风情;在它略高于眼睛高度处,有一道由黑、金、银灰色泽的带状马赛克区域。
△ 庭院围墙细部玻璃马赛克(与艺术家Mario Deluigi合作)
它刻画了一份威尼斯特有的东方气息。此时一座相貌怪异的铜质灯具像兽头般凝望这片宁静的出奇的花园。
沿着混凝土墙移动的身体,最后将终止在一座赤铜色石块铺起的回字形水池边缘,这水池浮出另一个被水浸润的区域。水池中的汩汩水流,漫流向墙开口的后方。墙的后方是一个被遗忘的地方,它有着植物及花器,以及一个地表覆蔽并且通向一个进入服务性区域的步道。
△ 庭院另一处出口
而正是在水池及混凝土墙的前方,斯卡帕企图使所有人终止在这里;「死径」(dead end)停止了任何身体的移动与跨越,但视觉却仍然停留在停止处好奇的搜望四周;望向混凝土墙后所形成的缺口,以及望向这个花园尚未被探索的其他区域。当然,当回望这座16世纪建筑的内庭立面时,我们似乎感觉到,就在刚才的行走中,已经过了四个世纪。
地址:福州 晋安区官前路8号四号楼二层
电话:0591-88066788
欢迎查看了解安润福网站:http://www.arunf.com
