大数跨境
0
0

舒适的住宅

舒适的住宅 安润福装饰机构
2020-08-18
3
导读:舒适的住宅

 向往的美好生活 

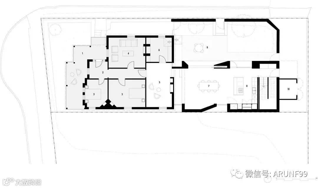
这栋小楼位于澳大利亚珀斯附近的港口城市,原本是一栋平房,建筑师帮夫妇增加了二层明亮而宽敞的扩展空间,以便他们的成年子女回家拜访时可以一起居住。

地址:福州 晋安区官前路8号四号楼二层

电话:0591-88066788

 欢迎查看了解安润福网站:http://www.arunf.com



【声明】内容源于网络
0
0
安润福装饰机构
酒店与酒店式别墅设计专业服务机构
内容 5101
粉丝 0
安润福装饰机构 酒店与酒店式别墅设计专业服务机构
总阅读5.6k
粉丝0
内容5.1k