浸染自然
尘埃落处光阴成丘
雾露浸染绵化黄土


大部份人对泰国的印象还停留在绿植、木雕和大象,其实还有很多被忽视的文化面貌未被发掘,如原始村落、历史遗迹,黄土城墙便是历史的印记。

△质朴材质与色彩元素 | 图源网络
清迈是泰国古法按摩与SPA宗源,设计以清迈古城的城墙红砖元素贯穿空间,错落层叠的水景构造,与不其然出现的热带绿植呼应。斑驳城墙水影潋滟,进入空间像置身蘭纳古都中,片刻间忘却凡尘细沫。


△外立面红砖



△光给予空间灵魂




△等候区
休息区空气夹杂香茅草的味道,听着潺潺流水声,以规律深啡色草药收纳瓶作半隔断,与藤编家具呼应,保留宽敞视野之余充分利用空间。


△前台


楼梯顶部刻意下压设置错层红砖水池,增强古城建筑之间的穿梭感,顶部溢出的云雾缓慢飘下,随着人的走动气流不断变化。



△错层红砖水池

△雾池装置
昏暗的土红色空间散发着柠檬草香薰气息,细细鸟鸣与流水声无限回响,设计用心之处,调动了视觉、嗅觉、听觉感官平息内心波澜,深陷古城的幽静安宁中,让身体缓慢进入古法SPA之旅的前奏。


△厚重布帘和昏暗灯光
按摩间与SPA间以厚重布帘和昏暗灯光营造私密安全感,刻意留白,让人可以尽情闭眼,身心投入泰式SPA的身体之旅。


△按摩房装置艺术

△SPA房|安静的身体之旅
在品牌搭建上,灯灯灯凳创意公司希望馈予品牌一份泰国蘭纳古都的印迹与体验,以承载过往印记的黄土—— 即“LOESS”,测量时间与记忆厚度,品牌命名LOESSSPA也因此而来。

城墙的土黄色作为品牌的VI主色,光线透过树荫在城墙上的摇逸剪影作为品牌的主视觉。

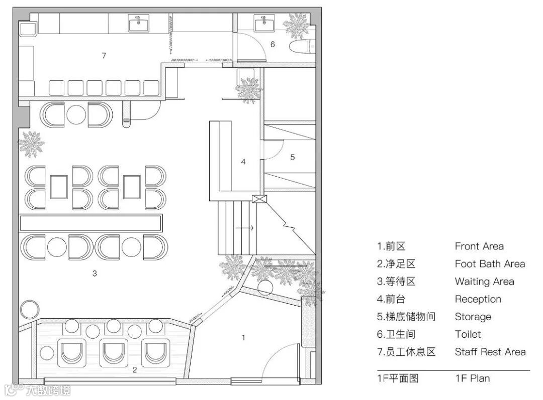
△1F平面图

△2F平面图

△2F立面图
地址:福州 晋安区官前路8号四号楼二层
电话:0591-88066788
欢迎查看了解安润福网站:http://www.arunf.com


