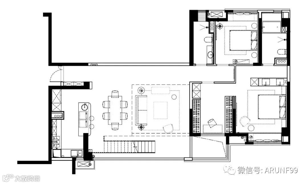
在这套197平米的现代风格装修案例中,整体以极简大方的硬装,布置上简约舒适的家具,没有什么繁杂的装饰布置,带来了一种高级舒适的居住氛围气质。


▲现代极简的客厅,以素色搭配为主,在靠窗位置装上楼梯,在挑空的空间下,显得格外的简雅大方。

▲电视墙是大面积的岩板材质,装上独特的半圆形装饰,布置简约舒适的沙发与茶几,也是显得更加精致舒适而高级。

▲窗户装上透光纱帘,简约的楼梯与木质踏步 玻璃扶手,在素灰色的空间下,带来一个精致现代的优雅视觉。


▲客厅在灰色的地毯上,布置灰色布艺沙发,还有圆形的茶几,顶上一组球形的艺术吊灯,圆形边几上布置球形的灯具,精致细腻的设计,显得更加温馨大气。

▲过道墙面以木饰面的材质,与极简的客厅空间形成一个简约自然的搭配,让空间显得更加和谐大方。

▲电视墙边上布置一张休闲沙发椅,坐在这里也能享受一个自然轻松的惬意。

▲木饰面 长城板的组合作为过道墙面,整个过道吊顶并在靠墙加入暗藏灯带,在简洁的空间下,也是显得更加温馨自然。

▲走廊尽头墙面挂上一幅极简的装饰画,与空间的格调保持一致的氛围。

▲餐厅设在客厅沙发后的,整体天花做吊平顶 无主灯的设计,结合白色的餐桌椅搭配,也是显得更加简约舒适而大方。

▲白色餐桌椅,白色楼梯,再到白色的纱帘,整体简约大方的空间,显得格外的轻松自然。

▲餐厅与厨房之间是开放式的设计,两个空间打通,在木色墙面与定制柜体之间,加入白色墙面与家具,整个空间都充满了简洁优雅的大气感。


▲楼梯在窗户的采光烘托下,显得更加简雅舒适而实用。

▲主卧在极简的墙面基础,加入大面积的木饰面材质与地面木地板一致,显得简约自然而舒适。


▲床头墙是波纹板材质,墙脚加入木饰面靠背,并通过暗藏灯带的形式,让床头背景墙显得更加温馨有层次感。两侧对称的定制床头柜,结合上方的条形吊灯,也是带来了一种现代优雅的氛围体验。

▲窗帘是百叶帘的设计,以木饰面包围的窗框,也是显得简洁舒适而明亮大气。

▲床尾墙布置一幅红色的装饰画,彰显出一种独特的艺术与气韵。

▲角落处布置一张藤椅摆在这里,搭配一张艺术造型的小圆形茶几,带来一个轻松舒适的休闲氛围感。


▲床尾后方就是衣帽间区域,以推拉玻璃柜门的设计,带来一个方便实用的衣服储藏收纳空间。

▲飘窗以木质包围,加入一块坐垫,结合百叶帘的组合,也带来一个温情舒适的休闲氛围。

▲主卫空间整体都雅白的墙面,在淋浴区与马桶之间加入一块玻璃隔断,靠窗装一个浴缸,墙面也是加入壁龛的设计,带来一个情趣享受的卫浴空间。

▲次卧的床头墙也是以木饰面为基础,墙脚区域加入凸出的靠背 灯带设计,布置卡其色的皮艺床,布置素雅的床单、抱枕,窗户加入百叶帘,飘窗垫上坐垫,布置花瓶装饰,整个空间显得格外的简雅情趣。

▲床尾布置一幅深绿色的装饰画,角落还有一盏三角落地灯,在简洁的空间,带来一种温馨优雅的稳重与端庄感。

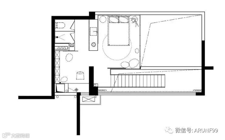
▲二楼以玻璃包围起来,整体空间比较明亮通透,装上一张吊装的床铺,床头墙木饰面 白色墙的组合,带来一个简约舒适的卧室空间。床尾布置圆形的绿色地毯,也点亮了空间的活力与清新感.

▲卫生间以玻璃隔墙设计,在角落加入开放展示格架,也显得更加精致优雅。

▲卫生间悬空安装的洗手盆,玻璃通透的空间,显得更加现代时尚。

▲洗手盆的墙面贴上白色的墙砖,装一面圆形的带光源边沿的镜子,在雅白的洗手盆组合下,显得更加高级华丽。

▲靠近角落位置布置书桌,带来一个安静舒适的工作阅读小区域。


地址:福州 晋安区官前路8号四号楼二层
电话:0591-88066788
欢迎查看了解安润福网站:http://www.arunf.com


