
这个世界原本属于一群高喊“知识就是力量”的理性思考族群,但现在,它将属于一些有高的感性能力的人——他们富有创造力、具有同理心、能观察趋势以及讲述故事的动情表达能力。
今天就带大家
从设计思维的角度去解析
环境建筑空间
平面结构布局的步骤方式
设计思维的概述
设计思维本质上是以人为中心的创新过程,他强调观察、协作、快速学习、想法视觉化、快速概念原型化,以及并行商业分析,这最终会影响创新和商业战略。
设计思维的目标是使消费者、设计者和商业人士均参加到一个统一的流程里,这个流程可适用于产品、服务甚至商业体验。它是一种想象未来情形并将产品、服务和体验带入市场的工具。
设计思维这个术语通常被看做用设计者的感受和方法来解决问题,不管这个问题是什么。他不是专业设计或者工艺美术设计的替代,它更像是一种创新和设计实现的方法论。
通过官方的介绍可能大家会有一个疑问,究竟,
什么是Design Thinking(设计思维)?
简单来说,Design Thinking以解决问题为目的,以用户为中心,是让创新和创意量产的方法论。
创始人David Kelly在斯坦福大学建立了d.school,并成立了全球顶尖的设计咨询公司——IDEO。Design Thinking 能极大的提升一个人解决复杂问题的能力,小到能够帮你快速效削果皮,大到为公司设计打造品牌战略、解决社会脱贫攻坚的问题。

到这里,我们就要谈到今天的重点:结合设计思维的四个关键性原则来解析环境建筑空间
设计思维的几个关键原则似乎具有共通性。
首先,
是依据实地研究挖掘出
对消费者的深层认识。
运用同理心这一方法,既可以成为灵感的来源,也可以成为探求消费者需求和发现用户未知需求的工具。最好是跟消费者一起,带着开放协作的态度,甚至带着合作设计的概念,在现实的世界中获得。
例如挪威卑尔根艺术设计学院,按照设计方建筑事务所 Snohetta 的说法,KMD 的每位学生都能拥有自己的工作室,并按照自己的意愿来布置,这样能激发他们的创造性。艺术音乐设计院系的新大楼刚落成,一批学生就搬了进去。其中一名学生在一间淋浴间摆上了一架钢琴。

挪威卑尔根艺术设计学院
用户成为了产品的设计者和改变者,而设计师和研发工程师在参与式设计中则更多地扮演了协调者、配合者和观察者,感性的获得对用户的第一手资料。研究人员作为参与式设计的主要组织者,在此过程中,得以从更丰富的角度挖掘用户的意识和需求。
并且关键是从寻求理解——而不是试图说服——的观点出发,只有设计者和研究者走出去和目标受众在一起工作,才能开放思维。同时用户的早期参与也使得对用户概念的评估成为可能。
设计思维的
第二个重要方面是
协作
既与用户,又与组成
跨学科的团队之间的协作。
这会有助于一个公司朝着根本创新的方向发展,而不是渐进式的提升,毫无疑问,这增加了价值。

典型的代表是设计思维学院完成的公益性项目孵蛋器的原型和LED灯的原型。
这两个项目都是针对第三世界发展中国家的具体环境条件和需求开展的。孵蛋器项目组的学生分别来自工业设计专业、市场营销专业和管理学专业,该项目投资约两万美金,项目的最终成果非常成熟,可直接从学院投入实际的生产线中进行生产,其产品的最终销售定价约数百美金。
该项目的创新之处在于,LED灯获取电源的方式既可以通过太阳能充电,也可以通过柴油发电机充电,并且每次充满电之后可以持续亮灯8小时。
可见在当前的社会环境中,很难单靠一个人的力量,从单一的行业出发实现创新。而设计思维带给大多数人的借鉴意义其实并不是关于设计和设计师的,更是跨学科思维。
第三点
是通过视觉化
动手实验和快速原型
加快学习。
为得到有用的反馈,原型要做得尽可能简单,既然设计思维重点放在更加激进而非渐进的创新上,则实验越多越好,并且在开发时,在许多资源耗尽之前,快速简单的原型也有助于很好地抓住发展潜力。创意通常是作为概念、产品或服务的非常粗略的模型。通常,这样做的目的是快速经常的失败,以便能够从中学习。

事实上,在屡获殊荣的皮克斯动面工作室,快速失败是它的既定目标,因为这会使工作做得更好更快。
小编认为相较于第四点,
本原则更加注重在过程中学习
如何培养建筑及室内平面布局思维导的图?
结合实际的一个
设计步骤进行一个细化的认识
﹏
一般来说
平面布局
在快题中占最大篇幅内容,
平面图
主要可以概括为
各功能空间的
大小形状,水平层面的
交通流线
这些是否包含设计思维呢?
平面结构设计步骤
第一步:功能分区
路易斯·康:
服务空间与被服务空间的二元理论。
康所说的服务空间就是指建筑中的后勤办公空间,设备用房,交通体、厕所等辅助性空间,被服务空间指建筑中人使用的空间,被服务空间一般为主导性空间,根据不同类型的建筑有展览厅、商场、教室、纪念性空间等等。
我们先将功能按服务与被服务分区,在每一大类下还要按照公私、动静、洁污等模式分类。
第二步:平面组织
根据服务空间与被服务空间的大小比例,一般有一下几种平面组织形式。
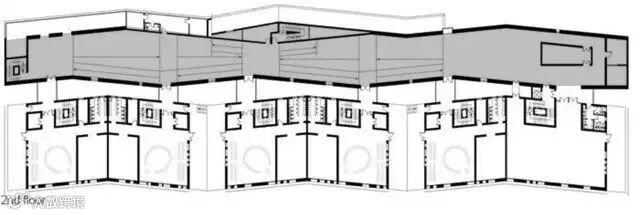
a.端式——嘉定新城幼儿园(大舍)
在大舍设计的嘉定新城幼儿园中,将卫生间、储藏等服务空间与超大坡道结合,集中设置在北端,将南向好的景观和采光作为活动室和卧室。
b.两端式——同济大学浙江学院图书馆
(致正工作室)
由张斌领衔的致正工作室设计的同济大学浙江学院图书馆包含了两个两端式分区逻辑,第一是实体占据南北端,虚体夹中间;第二是每个实体中,服务空间居东西两端,阅览室夹中间。
c.环绕式——萨克生物研究所(路易斯·康)
四面完全环绕式的布局方式不常见,因为好的景观面与采光面要作为被服务空间。萨克生物研究所较为特殊,研究实验室居中,四面环绕交通空间与辅助功能空间,形成序列。
d.点状——仙台媒体中心(伊东丰雄)
将服务空间分散在建筑内布置,室内空间更加灵活。可用在小快题中,玩概念,如均质化平面、空间流动性等等,大快题中不推荐。
第三步:流线组织
将同类功能按区划分后,要将每个区内的不同功能间的流线组织起来,同时区与区之间的流线也要简洁清晰不交叉。这是后就要用到泡泡图的方法。故名思议,就是将一个个的功能房间用“泡泡”表示,泡泡之间相连表示空间之间可达。当功能相对复杂相关时,画出的泡泡图可能是发散的,所以还需要进一步整理。
从泡泡图到建筑平面图
特别叮嘱:
①主体功能空间(展厅、教室、活动室等)它构成整体的空间形象,决定着主要的活动区域和结构形式),应优先考虑。
②统帅性功能空间(门厅——等,其位置影响着交通组织方式,使人有停留的感觉,让人进入后知道该往哪里走!引流,给人明确的方向感!洗手间的位置,既不能过于深入,也要适当隐蔽,建筑出入口的处理,这些都是老师会注意的地方。
③特殊功能要求:数量、要求如固定不能动的东西,观众厅,讲堂,大活动室,展厅等,其位置决定其他空间的布局,应重点考虑。注意其对整体的功能和形态的影响。要求4、5米以上高,考你如何处理通高或大的功能空间问题。咖啡、商店等经营类的功能布置应该靠近主入口、沿主干道、最好于一层。
④各功能空间的朝向、景观要求,主要和次要的房间的需求,如教室注意南北向,美术书法教室等应北向采光或利用天窗,大空间的报告厅。
⑤展厅布局要注意,不走回头路!
第四步:轴网量化
在将泡泡图转化为建筑平面图的时候,往往有这这样的矛盾:一种是根据泡泡图一步一步生长出建筑平面,这是功能、流线、面积都近乎妥当,但是形态易琐碎分散,形成的不是一个房子而是一组相关的小房子;另一种是当你在大致定好总的轮廓里面划分房间,容易因为面积不对导致不得不在外墙上增补或是产生尺度不当的房间,也就破坏了最初的想法只能重来,慢慢陷入纠结,浪费大量时间。
显而易见,许多同学都是被任务书里一条条罗列的面积要求困住,跟面积指标死磕到底。快题设计时间有限,最怕的就是钻进牛角尖里,各位“强迫症”赶紧看看谷多君为大家总结的以下内容,轻松搞定平面疑难杂症。
常用功能房间尺度
面积 功能 尺度
24㎡ 旅社客标间/办公室 4×6、5×5
30㎡ 办公室/活动室/小会议室 4×8(会议)、5×6
50~60㎡ 教室/活动室/会议室 6×8、7×7;7×8、8×8
100~150㎡ 大教室/大活动室 8×12、9×1;10×1512×12
200㎡ 小型报告厅(平层式)10×20、12×16、14×14
400㎡ 大报告厅(错层) 20×20、16×24
天津华旭小学(直向建筑事务所)
第五步:巧用三角、异形空间
为了呼应场地要素,经常会在建筑形态上产生一些非直角的转折、甚至异形空间。这时你就大胆地把对房间形状要求小的公共交流空间、展示空间、休息平台往里放吧,在面积足够的情况下则可以挖掉楼板形成吹拔空间或是直接做成室外庭院等等。在保证功能房间易用和交通空间畅通的情况下,完美克服了异形状空间的困境,反而转化为方案中的创意闪光点。
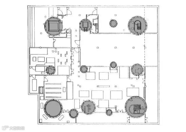
同济大学中德学院楼(庄慎)
中德中心平面图
同济大学中德中心的平面有一条斜线,办公室群斜列,形成各自的入口小空间。所有功能房间保证在正交体系中,三条轴线汇聚的中庭用作公共交流空间。
国外某私人住宅
私人住宅平面图
以上的
平面设计步骤原型
可以是概念草图、粗糙的物理模拟,
或者对于设计来说,它可以是故事
或者是角色扮演,或者是脚本,
并且总是包括一个可视的概念的形式,
这就是第四个准则。
其目标就是将无形的东西
变成切实可行的,
而视觉化的
平面布局
就是最好的实现方式。

2020小青虫
是不是还在盯着厚厚的考研参考书发愁呢?
别担心,作为一个无偿提供关怀的大青虫团队,
小编将努力催促各位大佬们,
为大家整理
最难嚼、最重要、最热门的
考研干货重点。
没心情看书?学不进去?......
没关系
关注
大青虫艺术设计
每天深度阅读15min-20min,
做你考研的后援团。

大青虫考研暑期班
即将开启
请各位预报名的小青虫们
速速进到碗里来
(2019 年5月学长学姐见面会等你来)
合工大艺设考研QQ群:377065574
安大艺设考研QQ群: 432896365
安建大艺设考研QQ群:738368482
安工程艺设考研QQ群:688270242

最好的时代,
最好的我们!
各位小青虫们,
Are you ready?
大青虫,陪你一起走过
不失初心,不忘初衷
大青虫艺术设计
微信号 : dqcysky
新浪微博:@大青虫艺术设计
转载资源来自网络、整理发布源于编者

