▲ 建筑面积120平,本案以一种无时间的永恒,让“当下”凸显,用色调、材质、安静从容的家具,将空间的内敛温柔娓娓道来,眼前的一瞬包含了过去、当下和未来

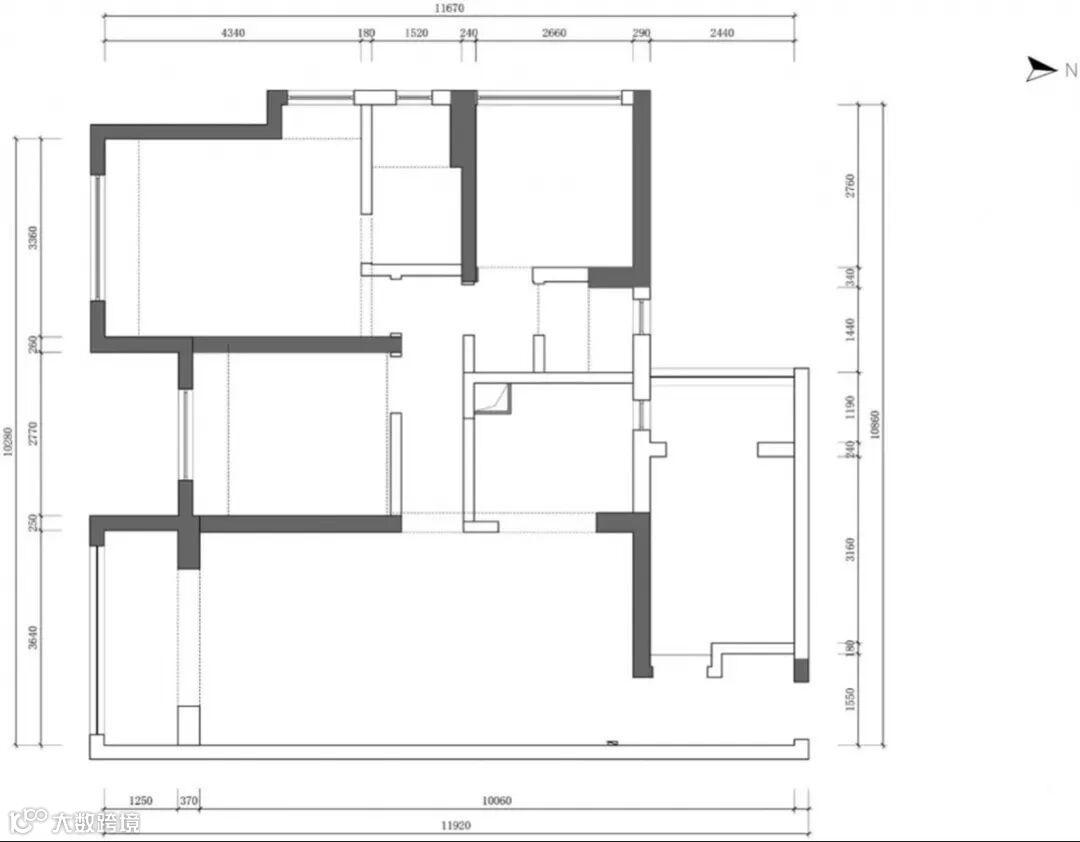
▲ 平面结构图

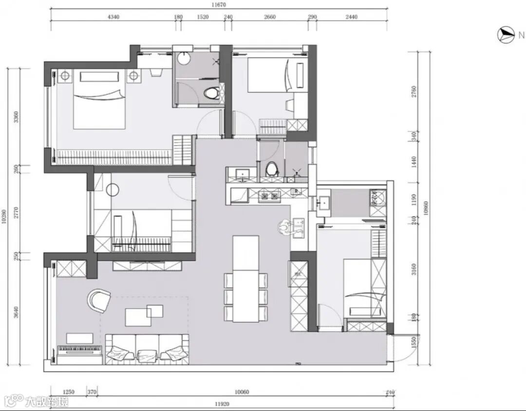
▲ 平面布置图

▲ 入户收纳系统与餐厨收纳结合,打开餐厨空间后,让家有了豪宅般的大气与优雅

▲ 餐区,LDK一体开放式设计告别小空间的压抑感,扩伸公区视觉张力

▲ 桌岛一体设计,上方悬吊一盏随性的线性暖光灯,用玲珑光影,点燃空间温馨

▲ 厨房,L型布局,与收纳柜结合,形成视觉延伸感,料理就餐一气呵成

▲ 静谧雅致的客厅,简约不失烟火气的餐厨区,告别浮华回归生活本真用空间表达时间的优雅居所

▲ 客厅纳入阳台,拓展空间,自然的光,温柔的风经过落地窗进入公区,木地板搭配无主灯顶面,浪漫落日灯作为补充光源,增加视觉层次

▲ 沙发背景墙选择质感微水泥,冷静的色调,与空间中的木质、奶油色形成视觉对照,软糯糯的奶油色沙发搭配同色系纹理地毯,砖红色艺术单人沙发造型别致

▲ 电视墙简洁素雅,一排木质悬挑抽屉柜提供收纳,饱满的抽象画色彩,在充满静谧感的空间中,进行增减与调和

▲ 收放自如的投影仪代替电视

▲ 儿童房,靠墙设计楼梯,作为上下高架床的通道,童趣十足,又能更好地保护孩子安全,高架床下方,是孩子的自由活动天地,通过对纵向空间的利用,无形中拓展儿童房可布置面积

▲ 飘窗改为邻窗的一体式书桌+卡座设计,为孩子留下休闲阅读空间

▲ 主卧为套房式结构,以木与白为基调,木饰面床头搭配简约大床,床尾空间设计整面高柜,满足屋主按季节收纳衣物的需求

▲ 利用床头小窗的采光条件,布置出一处安全感十足的安静阅读之地

▲ 卫生间,干湿分区提高使用效率,干区选择台中盆,下方增加一处悬挑的抽屉柜,洗漱用品收入其中,解放台面空间

▲ 壁挂式马桶,呼应空间简约风格,将排水组件尽皆隐入墙中,淋浴区挡水条与玻璃移门轨道槽一体打造,避免卫生间积水问题