
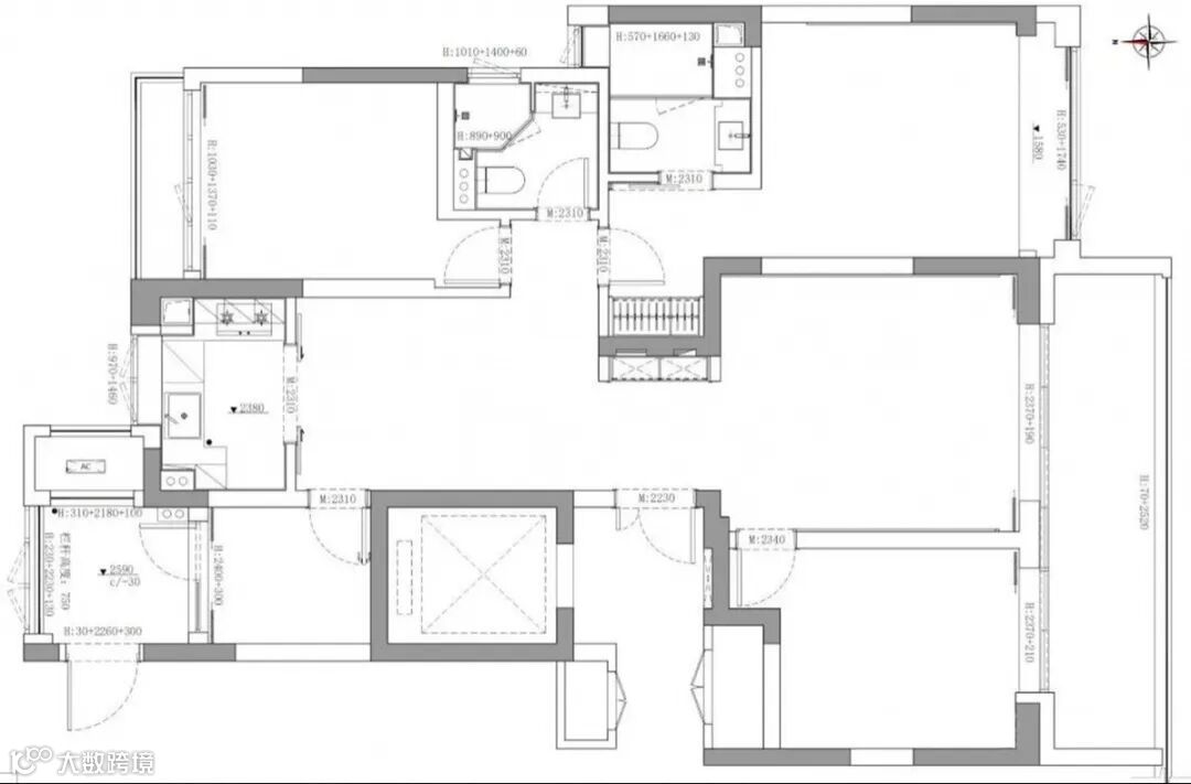
▲ 平面结构图

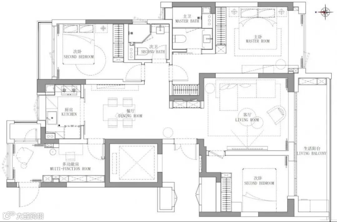
▲ 平面布置图

▲ 玄关,保留原有瓷砖地面,将原较深的柜门颜色做油漆改色,由原来的灰咖色变成现在的白色。

▲ 客厅,原客厅造型老旧,色彩沉闷,拆除原来墙面装饰,享受留白的魅力,打造刚刚好的氛围,让空间得体舒服,以更为精巧的手法渲染氛围。

▲ 灰色块状沙发搭配黑色不规则茶几,大尺寸抽象画与绿植,增加空间的艺术氛围和自然生机。

▲ 拆掉原灰色硬包加金属条的装饰背景,涂刷米色艺术漆,轻松打造品质感且不占据视觉空间。

▲ 将原先的窗帘替换成白色的梦幻帘,柔和有温度,一定的透光性可以起到保护隐私的同时也能补充室内光亮的效果。

▲ 餐厅,同样拆除过于繁杂的墙面装饰造型,墙面改涂为米色艺术漆,在硬装上进行简单却精细地处理,营造符合当下审美的空间质感。

▲ 餐桌侧面新加一组吊柜作为餐边柜提高餐厨空间的收纳,柜门带有小格栅纹理的款式,来增加设计感,黑色铁艺搁板,做展览性的收纳。

▲ 餐厅望向厨房,选择置顶长虹玻璃门取代原有移门。

▲ 餐厅望向客厅视角。

▲ 将阳台的隔墙拆除,两个空间合二为一,打造一处休闲空间。

▲ 儿童房入口,在连接柜门的转角墙壁,做一个带有曲面元素的展览空间,造型本身与儿童房元素一一呼应。

▲ 床头背景采用弧形元素做床头软包造型,吊灯和地毯都选择弧线元素,跳跃的色彩,柔和的线条打造出专属于小朋友房间的温柔与烂漫。

▲ 在柜体与床体之间的这块墙壁,用稍微小点的圆进行连接,柜门把手的造型以及颜色也在和床头背景呼应。

▲ 次卧,整体色调饱和度低,营造质朴的舒眠氛围,此空间满足亲友来访的需求,对于空间的装饰上以简单舒适合理为主。

▲ 在靠近衣柜的一侧床头柜,以结构穿插的形式展现更富趣味,悬浮柜的状态减少堆积感,增强空间的呼吸感。

▲ 主卧,简约的背景用灰色艺术涂料进行涂刷,一幅装饰画、一个吊灯轻轻松松地营造氛围。

▲ 一侧增加衣柜,蓝色柜门搭配灰白黑,满足正常衣物收纳需求,床头柜选的是更为轻巧的造型,很适合两侧空间不是很宽裕的卧室。

▲ 床尾,连接靠窗的承重柱向内延伸形成一个体块,与化妆桌形成穿插结构丰富空间造型感。