前言/PREFACE
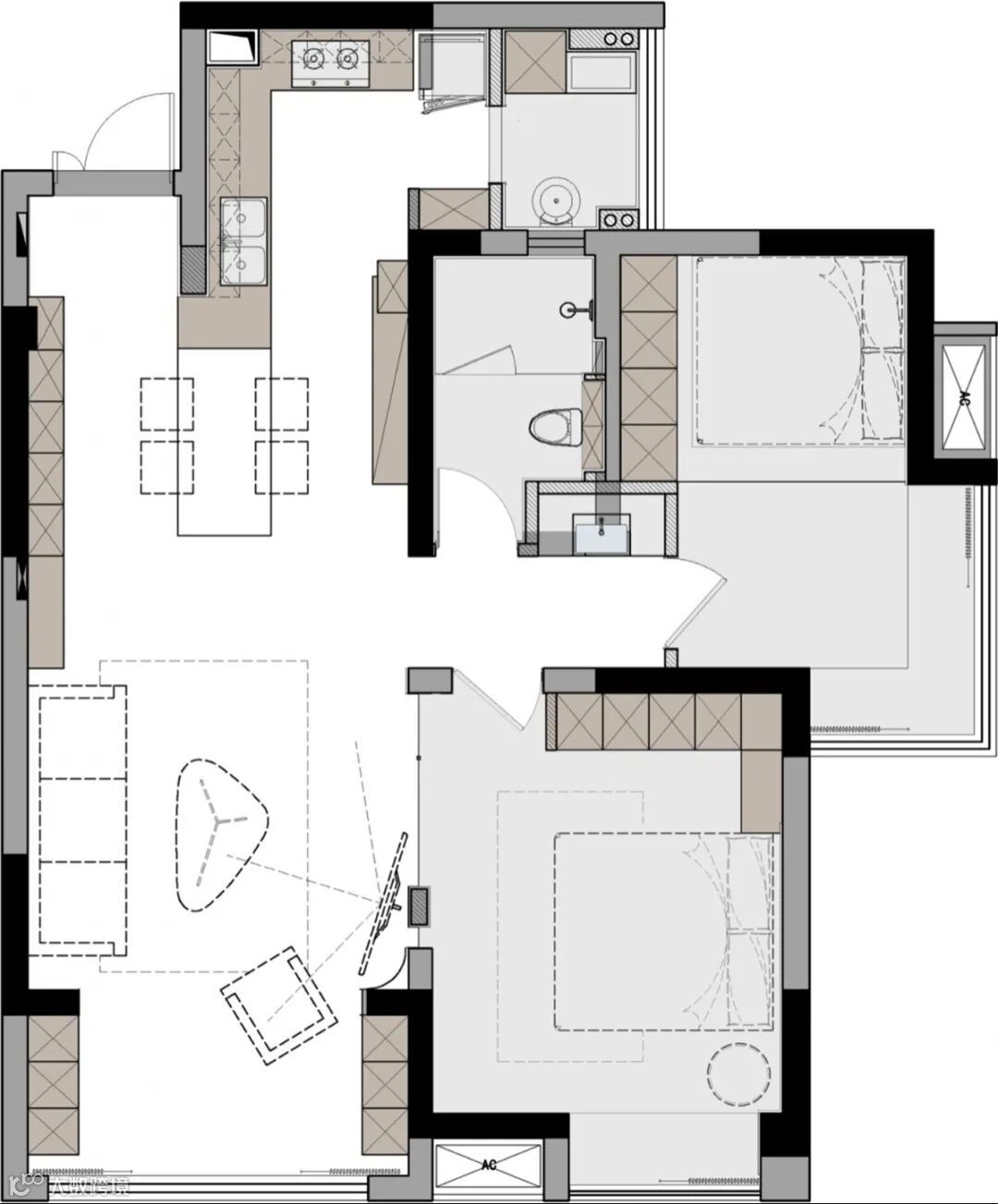
本案是一套面积为90平米的两室二厅,各个功能空间相对独立封闭,不够开阔亮敞。围绕一人居入住需求,开放厨房(优化动线)、纳入阳台(增加空间面积)、主卧一侧墙体改造为玻璃材质(开阔视觉感),对空间进行全面融合。下面我们就一起来看看吧!

微信公众号| 广西荣美装饰
官网| http://www.gxrmzs.com/
广西荣美装饰
前言/PREFACE
本案是一套面积为90平米的两室二厅,各个功能空间相对独立封闭,不够开阔亮敞。围绕一人居入住需求,开放厨房(优化动线)、纳入阳台(增加空间面积)、主卧一侧墙体改造为玻璃材质(开阔视觉感),对空间进行全面融合。下面我们就一起来看看吧!

微信公众号| 广西荣美装饰
官网| http://www.gxrmzs.com/